40㎡小蜗居大改造,实现一个人的理想生活
禧鑫装饰丨旧房翻新
2021-07-22
【导语】一个30岁的东北小姐姐,虽然单身但是对生活却一直充满了美好的憧憬。因为作为教育培训讲师要经常在家办公,所以对于家装的要求更加的大气随和。从空荡荡的房子再到每一个地方都有着生活过的痕迹,这种小户型也能拥有家的味道实在是很有成就感的。

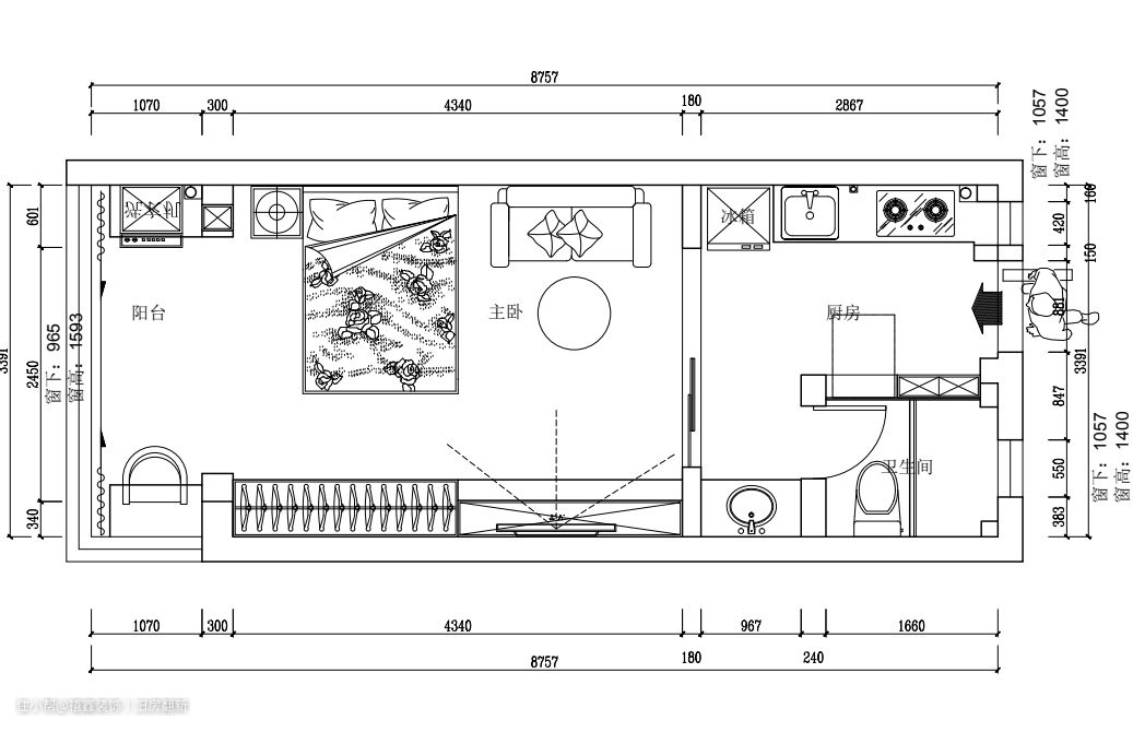
【结构】一字型的户型让空间既有局限性又能够分割明确,每一个空间都尽可能地合理规划,让小户型发挥最大的空间效果。



【玄关柜】玄关柜与餐边柜相结合在一起,因为空间有限,打开门就是玄关柜与餐厅,而餐厅又不能占用太多地方,所以将餐桌与餐边柜的柜门结合到了一起,做一个可以抬放伸缩的多功能家具。下方餐边柜柜门打开时实木色的面板在上方撑起就摇身一变成了简易的小餐桌。吃完饭后将餐桌板放下可以直接当柜门不占用任何空间。

【客厅】客厅的实用性与观赏性都同样重要,所以电视柜不再仅仅设计在下方,上方也可以打造吊柜让空间的每个角落都能够成为收纳的天地。客厅与其他空间之间设计玻璃门,能够让小空间也具有通透性,更加美观扩容。


【卧室】 客厅与卧室在此次设计中合而为一,但是并不影响各自空间的使用效果和空间效果。卧室的衣柜做了整体私人订制,除了与客厅的电视柜紧密连接以外,更是在空间的格局上做了扩展。透明玻璃+开放格+书架展示架和壁橱成为了衣柜超级收纳的设计理念。

【卧室】卧室的整体偏向少女清新的风格,每一个女性都永怀一个青春少女的甜美梦想。粉色占据主体,而墙上色彩则采用橘粉色作为过渡,使得空间美而不腻。

【卫生间】卫生间作为每个家庭不可或缺的一部分,不仅仅要满足功能还要足够的有品位。洗漱池外置不仅可以减轻卫生间的空间压力,更重要的是方便实用的同时还实现了干湿分离。壁挂式的洗漱池其实内部还是储藏柜,可以收纳物品。

【阳台】阳台柜的打造一定要提前测量好尺寸和想要实现的格子大小。上方做了一个双开门的壁橱,下方做洗衣机与烘干机柜子的分离。洗完衣服直接放到烘干机中再放到晾衣架上,省时又省力。最右侧因为空间不够充裕但也不想浪费掉,于是做了两个窄柜,依然能够收纳不少的物品。