北欧小清新——四室两厅两卫大平层
荣昌华浔品味装饰
2021-08-04
项目地址:重庆市荣昌区东邦海棠湾
装修风格:北欧小清新
面积:121m²
基装:7万多
全部装完:20万
设计师:黄金雄
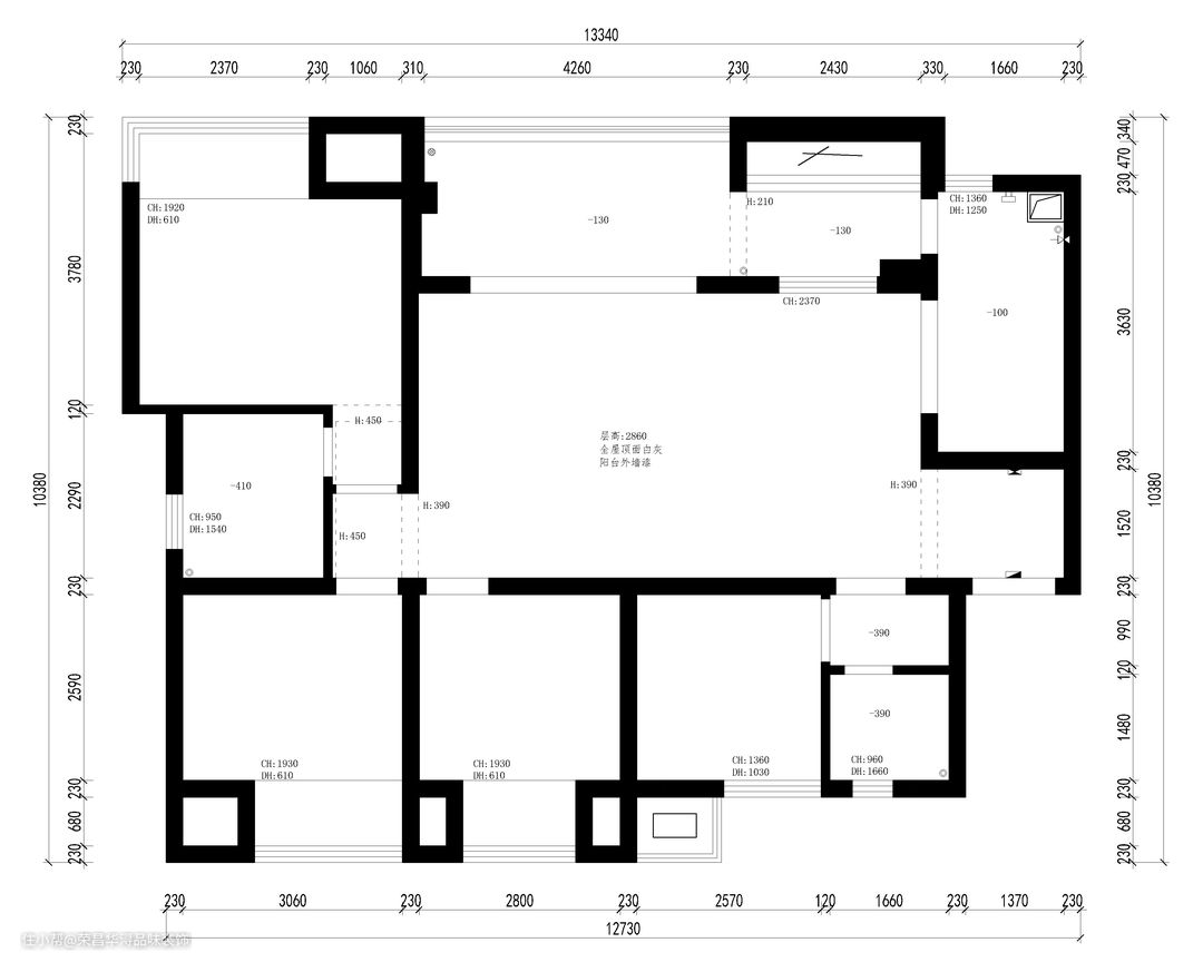
▼ 原 始 平 面 图 :

▼ 平 面 方 案 图 :

▼ 电 视 墙 设 计 图:
浅胡桃木色的木格栅+烟灰蓝艺术漆

▼ 餐 厅 图:
到顶餐边柜,既可以收纳还可以起到展示的作用。

▼ 过 道 图:
折叠玻璃门,可以增加客餐厅的通风效果。

▼ 阳 台 图:
墙面碳化木+落地窗

今天的分享到此为止,喜欢的朋友可点赞收藏,更多的想法评论区见。
愿你顺风顺水顺财神,朝朝暮暮有人疼!