室内装修开关插座布置表,太有用了!
设计师龙鸣
2021-08-16

很多家庭在进行家居装修时,不知道,不清楚家中的具体空间该装多少的开关插座,这个看起来每家都差不多的东西用起来却千差万别!一般都是按照设计师的设计方案,但是在使用中,觉得手边少了个插座,总是在关灯的时候发现开关离床头远了点......于是,家里的插线板就这里接一个,那里接一个,搞的家里乱七八糟不说,还不安全!!开关插座的安装时,我们可以如下原则:
1. 宁可多,不能少,不要因为觉得影响美观,而放弃合理布置,不然以后要后悔的;2. 不管有没有设计师,尽可能形成开关插座布置图,而不是现场去确定,否则容易出现遗漏;3. 多考虑,多斟酌,尽可能的结合生活习惯去布置开关和插座。
根据人体学制定的开关插座的高度标准(可根据自己的实际需求微调,以这为参考)

如何确定插座的总数量、高度、位置间隔
1、数量
室内插座数量可以按照面积每2㎡计1组面板(一个开关和一个插座)来计算,比如室内面积100㎡,则配50组面板就能满足基本的需求(包括各类常规开关、电源插座等)
不过这两年增加了越来越多的电器,许多业主为了生活更加便捷,以室内面积1.5㎡计一组面板来算总用量。那么100㎡的房子,开关和插座就可能用到66个左右!
2、间隔
由于一般电器的电源线长度大概是1.5m-2m,所以插座每隔3m留一个比较方便。这样在家的任何一个位置,都可以从左边或者右边接到电源,而不需要额外使用插线板。

3、高度
插座安装高度一般在插座下边沿距离地面30cm处,如果在桌子、柜子附近,应该安装在桌子水平面上15cm处,为了美观,同一墙面插座尽量安装在同一高度,相差不超过0.5cm,验收的时候各位意粉可以参照这个标准。
电视墙上的插座,要先考虑电视是挂墙还是台式,再确定高度。墙面安装的电视插座要考虑到电视柜的高度,一般距离地面100cm-110cm为佳,其他影音设备的插座还是保持距离地面30cm处,同时要考虑电视柜高度。
洗衣机的插座距离地面120cm-150cm
冰箱插座距离地面150cm-180cm
空调、排气扇、视频监控等插座距离地面190cm-200cm;其中视频监控的插座不要离地面太近了;分体式、壁挂空调插座根据出现管预留洞口的位置距离地面180cm,柜式空调插座在相应位置距离地面30cm处
厨房烟机、排气扇最好选用带开关的插座,靠近炉具上方不能安装插座!
卫生间内,选用防溅盒开关和插座!热水器插座应在热水器右侧距离地面140cm-150cm处安装,选用双极开关以确保安全!注意不要把插座安装在热水器上方;而且,卫生间必须做等电位连接!(这很重要)
阳台插座距地应当在140cm以上,而且尽可能避开阳光和雨水所及范围;最好选用防溅盒的插座!

常见户型开关插座的配置推荐
【一室一厅户型】


【二室二厅户型】


【三室二厅户型】


【玄关】

插座
预留1个
近期潮流:别省啊,万一以后买了智能鞋柜呢?
开关
与客厅开关处做双控
近期潮流:顺便做个遥控器开关,任何地点都能关灯,就更舒服了。
【客厅】

插座
1、电视2个
2、空调1个(三孔带开关)
3、沙发两侧各1个
4、预留1至2个
近期潮流:走地线,设置地面插座。
开关
近期潮流:使用遥控器开关,可以少装两个开关模块。
【厨房】

插座
1、排烟机1个(三孔带开关)
2、炉灶下1个(以防以后换为电器灶)
3、水槽下1个(可以装小厨宝-“小型容积壁挂式电热水器”/垃圾粉碎器)
4、水台边1个
5、操作台上2一3个(用于小电器/带开关)
6、微波炉1个(三孔带开关)
7、消毒柜1个(三孔带开关)
8、预留1个
开关
1、吸顶灯
2、操作台灯
【餐厅】

插座
1、电冰箱1个(三孔带开关)
2、餐桌边1至2个
3、预留1至2个
近期潮流:插头设置在餐桌内。
开关
1、吊灯双回路控制
2、装饰效果灯
近期潮流:使用遥控与面板双开关。
【卧室】

插座
1、床头两边各1个(电话/床头灯)
2、电视2个
3、空调1个(三孔带开关)
4、电脑1个(三孔带开关)
5、预留1至2个
PS:使用地线,飘窗处便能使用插座了。
开关
1、双控或双回路控制吸顶灯(门边和床头)
2、装饰效果灯开关
【书房】

插座
1、电脑1个(三孔带开关)
2、空调1个(三孔带开关)
3、书桌边1个(台灯)
4、预留1至2个
PS:于插座内加入USB插头、wifi等功能。
开关
装饰效果灯开关
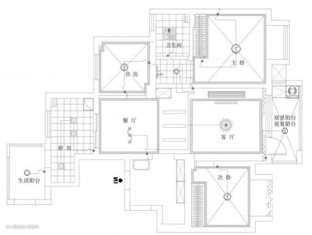
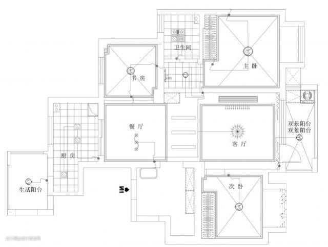
下面也看一下实际装修中开关和插座的布局
【开关布置图】

【插座布置图】

【开关布局说明】




【插座布局说明】






有用的朋友点个关注。