一梯两户,大横厅打通阳台,拥有了200㎡大平层既视感!
合肥飞墨设计师
2021-08-19
每个人对于家的审美不同,最后呈现的效果也不一样,而我就比较喜欢简约,合肥中海世家这套140㎡就很满意,一梯两户,硬装部分终于完工,全屋最值得夸的就是定制的柜子,“大横厅”搭配岩板背景墙,越极简越高级,第一眼就是200㎡大平层既视感,堪称完美户型!

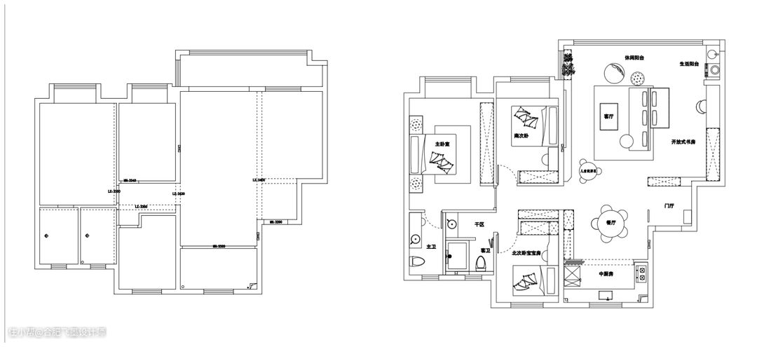
房屋装修前后户型图:

柜体安装等待柜门,包上薄膜可以起到保护和防尘的作用。

入户玄关打悬浮柜
这套房子有个缺点,进门见厅没有独立玄关,收纳好解决,可隐私问题难办,于是设计师选择了组合柜,玄关柜+悬浮柜,收纳力强也能遮挡入户视线,还不会影响采光,比任何隔断都实用!


玄关柜中间留空小台面放置随手物品,右侧预留换鞋凳,坐着换鞋多舒服,底部还要记得悬空,避免一进屋就是满地鞋子的尴尬。

接着看悬浮柜,周边留空不挡光,内部能收纳鞋子也能挂衣服,这可比砌墙更实用,柜子顶部都是有特殊工艺进行固定,保证不会掉下来!

柜子前后对比:

岩板+一体式电视背景墙
客厅面积一共48.8㎡,电视背景墙是定制染色尤加利木饰面+岩板,沉稳大气又有档次,底部利用岩板砌地台,中间嵌入抽屉,好看的同时还不忘收纳。


效果图和硬装图1:1还原:

注意岩板上墙要用欧松板打底,一来欧松板环保,二来它的握钉力强,后期不易出现松动和变形的问题,稳定性好,不会出现热胀冷缩的问题。

木饰面板上嵌入线型灯,打开后整体更加高级。

“大横厅”的优势业主完美利用,沙发不靠墙而是做隔断,后面隔出开放式书房,右侧是到顶的书柜,封闭式柜子不显凌乱不落灰。左侧书桌嵌入书柜,高度根据业主身高量身定制,头顶还有玻璃柜,内藏灯带,只需一眼就能看清里面的东西。


原本外面的阳台直接打通包进客厅,“大横厅”变得更加明亮宽敞,同时兼具休闲和生活两种功能,一地两用。

阳台柜左洗衣池右洗衣机,上下都有收纳柜,吊柜底部延伸25cm高的储物格,香皂、肥皂和刷子直接放上面,伸手就能拿到。

餐厅组合式柜体
餐边柜是木质柜和玻璃柜的组合,左边四段式,吊柜柜门选择了格栅混油,上下搭配格外好看,墙面铺上岩板,好看又防潮耐用。另一边的玻璃柜,装上灯带后,用来当酒柜也挺不错的。

餐边柜细节图:

厨房6.8㎡,嵌入式玻璃推拉门不占空间,开放式和封闭式来回切换,房子整体南北通透,采光和通风效果没得挑。

定制4米2长的橱柜,无把手柜门清爽又统一;台面铺岩板防水耐用易清洁;不用油烟机,改用集成灶更省空间。

三式分离卫生间
客卫三式分离,最外侧洗漱区约2.5㎡,洗漱盆同样选择岩板材质,下有浴室柜,上有镜柜,收纳空间充足。
施工图:

长虹玻璃门做隔断,保证光线通透,透光不透视,马桶区和淋浴房也用玻璃门隔开,分别是2㎡和1.5㎡,可以起到防止溅水的作用。


主卧门正对玄关,为保护隐私,特地设计成隐形门。
主卧和次卧衣柜的内部细节图:


好的设计真的能让房子看起来空间感翻倍,打通阳台,通铺地砖,定制充足柜子、岩板背景墙......这些亮点统统可以借鉴,这套房子装完半包花了20多万,光看硬装效果我就觉得很值了,你们说呢?

