常见的几种户型优化方案丨超详细干货
设计师秋晨
2021-08-29
1. 户型优化是什么意思?
户型优化是指:通过设计的专业手法,使得居住空间达到利用的最大化,居住的最舒适,视觉的最美观,如果能让居住者同时满足这些感受,那就是一个非常成功的优化方案。
2. 户型优化能改善了哪些问题?
①户型缺陷


②格局不合理
开发商原本的户型就存在一些鸡肋,比如比例安排不合理,没有玄关等……


③异形户型结构



④居室增减需求改造


3. 如何做好户型优化?
①功能分区要明确

一个合理的功能区划分设计是优质平面的基础,而合理的空间分区是设计后面优化的关键,功能区划分的合理性直接决定了空间的动线和功能完善性。一般以动静、公司分区两种方式来作为划分功能区的依据,有时候家务区和休息区的划分也可以用来作为划分的依据。

②简洁的动线规则
空间的动线决定了后期的使用以及居住的舒适度,合理的动线规划能减少很多时间,常见的动线分为:居住动线、家务动线、访客动线,三种。


动线的设计原则常用的就两个:最短路径原则and洄游动线原则
最短路径原则顾名思义,就是两个使用场景距离越近越好,最短的路程完成更多的功能,减少重复路径的动作。

洄游动线则是指在一个or不同的空间里,让动线能形成一条回路,且在回路中串联起不同的功能区,使空间的利用度最大化,减少日常生活中“反复走一条路”的表现。

③舒适的空间尺度



4. 常用的户型优化设计手法介绍
A.洄游动线(环形动线):上面介绍过


B. 游园手法:根据中国园林布局,将它应用到室内空间布局内,此手法多用于公共空间,能形成空间的叙事性并通过空间的一些转折、对景等等,将人们的心理进行转换。

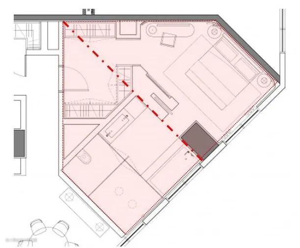
C. 线性切割:是户型优化中最好用的一种方法,简而言之就是将空间像切块一样切割,PS要注意:尺度,轴线,功能分区,空间均衡性,动线最短原则。

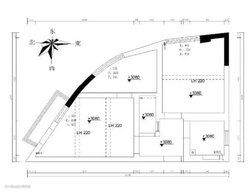
(异形户型案例:作者尼古拉花)

最后:和常规方法进行对比:

D. 钻石切割:顾名思义,将空间切割出钻石的形状,需要注意空间的比例和尺度感。







E. 置换与重组:空间置换,对房间的位置进行交换,比如客厅和书房交换这样。

空间重组:在多个房间或者一个房间内,把功能模块打散,再进行重组。

5. 优化案例分享





今天的分享就到这里了~还有什么想了解的装修知识,可以私信我或者评论区留言和我互动哦~