5万装出来的50平现代简约重庆北边的江景房,#原创案例#
重庆脸谱空间设计
2021-09-02
项目:东原嘉阅湾
面积:50㎡
设计师:媛媛

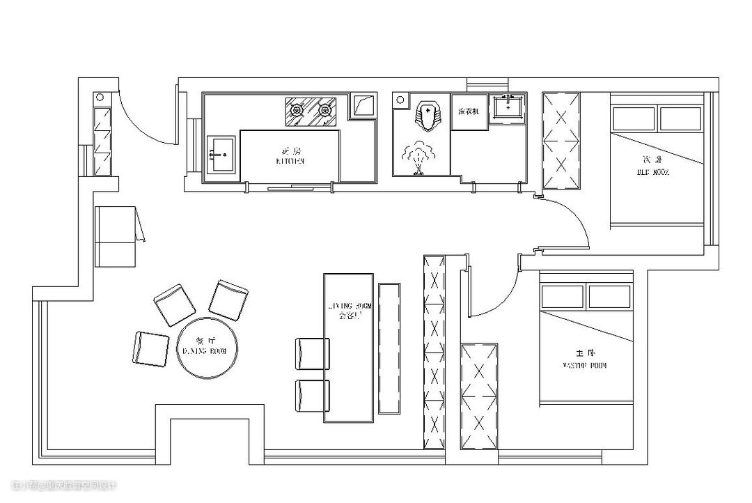
60平方的小两室,业主装来出租,从设计上选择了最简单的的传统设计,这是一套江景房,整体只拆除了原有飘窗,并没有动其他任何结构。原始结构布局。该户型是入户带入户阳台,但是没有生活阳台。整体户型没有阳台,均是内阳台,但是整体采光十分的好,已经视觉非常的宽敞,对窗外的景色一览无余。但是整体的卧室偏小。卫生间也做了干湿分区设计。











该设计版权归脸谱空间设计与重庆四季念家共同所有