原110㎡复式房,去客厅竟然要爬到二楼! 老房翻新痛点变亮点
极家精装总部旗舰店
2021-09-06
今天要分享的这套复式房,属于一看心情就会好的那种:不但功能齐备、采光通风良好,而且视野开阔、风景在线。
但其实,这套房子房子是业主买的二手房,在装修之前,并非如此——房子餐厅在一楼而客厅却在二楼,吃饭、休息、会客都要上上下下不堪其累,另外,一楼原本拥有的超级视野竟被各种隔断掩盖,太可惜……
那设计师是如何发掘出“它”的美好的呢?一起来看。
· 基本情况 ·
面积:110平米
房型:2房2厅2卫1厨
居住人口:3人
风格:现代简约

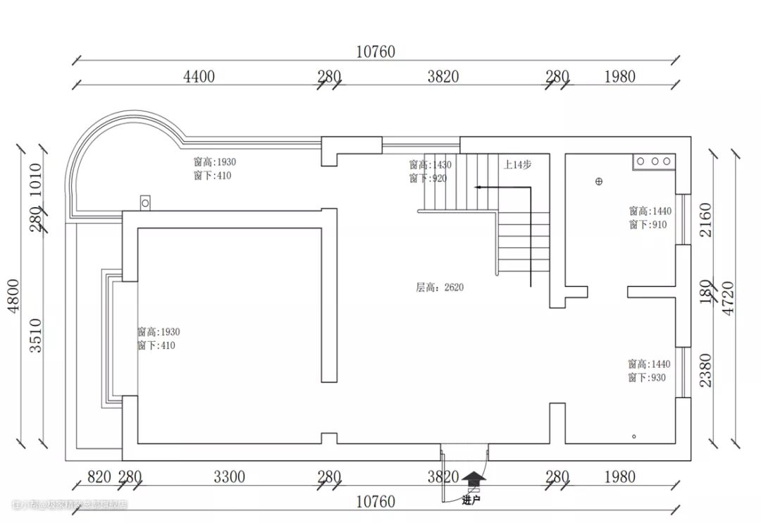
一层原始结构图

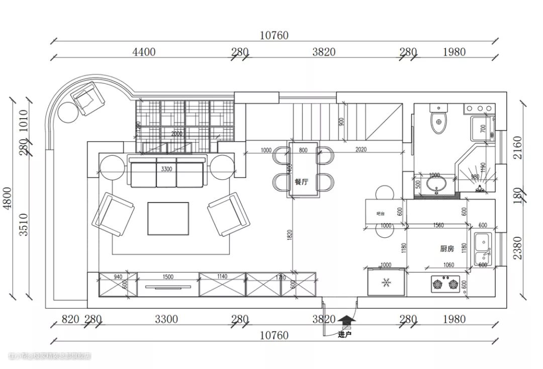
一层方案布局图

二层原始结构图

二层方案布局图

一楼卧室移到二楼,一楼的餐厅、厨房、房间、阳台之间的空间全部打开,隔断取消后整个空间视觉焕然一新,关系化零为整,浑然一体,明亮大气。
进户门选择了和玄关柜以及电视背景柜一致的白色,非常的和谐。玄关一侧的定制柜,既作为隔断也可储存鞋子,另一侧则巧妙的放下了冰箱,同时也起到了隔断的作用。
客厅简约干净,明亮开阔感,环绕的大大的落地窗带来极致的采光和景色。

大大的落地窗前顺势做了一个榻榻米,平时可以坐在上面俯瞰城市风景,还可以看电视,收纳、晾晒更是基础功能。

原L楼梯影响餐厅空间,空间琐碎话,没有整体性,通过借步转交将楼梯改造成一字型,空间大大释放。

餐厅家具和客厅沿用一贯风格,皮质与金属元素、大理石元素的结合,融入整体的白色中,舒适自然。顶部金属简约吊灯既补充光源,也增加了餐厅区域的现代氛围。

餐厅和厨房之间用可移动的小吧台来进行软性分割,通透敞亮。

U字型橱柜的布局,动线流畅且储物充足。冰箱一侧安装了可置物的收纳架,可挂可放,别有一番特色。

油烟机为了最新款的可收缩面板油烟机,工作时叶片打开,不工作时收回,颜值超高,钢化玻璃也非常好清洁。

二楼为业主和女儿的卧室区,房间分布在走廊一侧,线形吊灯将靠楼梯的走廊装饰的富有艺术气息。

女儿房以白色为主调,床尾为专属化妆区。

设计师保留了原始的屋顶斜面,使得空间充满灵动。

工作区域安排在弧形的阳台区域,双层窗帘灵活调节光线,空间简单无多余之物,便于工作的全情投入。

父母房同样温馨清爽,一侧的双移门衣柜收纳无敌。

卫生间天然大理石纹理时尚大气,悬空的浴室柜防潮而且便于底部打扫,芥末绿可移动置物架好用,也是卫生间的一抹亮色。

设计师私房妙招
1、装修时,功能分区非常重要,不但会影响居住在里面人的舒适性,还会影响房子的利用率。比如本套房子中,客厅在二楼,试想,如果家里来客人,得爬上二楼,就餐时又要下楼,吃完又得上楼,就很不方便。因此,有一个非常好记的法则“动静分区”:会客、就餐、休闲在一个区域,休息、工作在另一个区域,这个法则不但适合别墅、复式、同样适合公寓。
2、现代装修中,超大落地玻璃窗的安装越来越多,特别是居住在高层的用户,有时风力比较大,那么高层安装落地窗有什么注意事项呢? 首先明确一点,阳台落地窗大多数都是用钢化玻璃做成的,钢化玻璃的抗冲击力和耐热的程度都是普通玻璃的几倍,强度很高,而且就算落地窗发发生了破坏,也不会变成玻璃渣伤人,就像是我们的手机钢化膜一样,破碎的是呈圆形,不会伤人。所以阳台落地窗还是有安全保障的。在安装时,落地窗的材料要选择安全玻璃,可以是中空玻璃或者是夹胶玻璃。这样整体的落地窗户的安全性会更高,最好在选择玻璃的时候有3C强制认证的标志,这样的是最符合国家规范的。另外,还可以贴上玻璃防热膜,再装上窗帘,这样的隔热保温效果就很好,而且不会影响到采光。另外,高层大块的玻璃,特别是异形的玻璃,在安装时一定是由专业的施工方安装,有的玻璃电梯或安全通道无法送达,还需要借助机械吊臂等完成,消费者也完全不用担心。