深圳装修|231平现代轻奢风案例讲解
深圳东易日盛福田店
2021-09-23
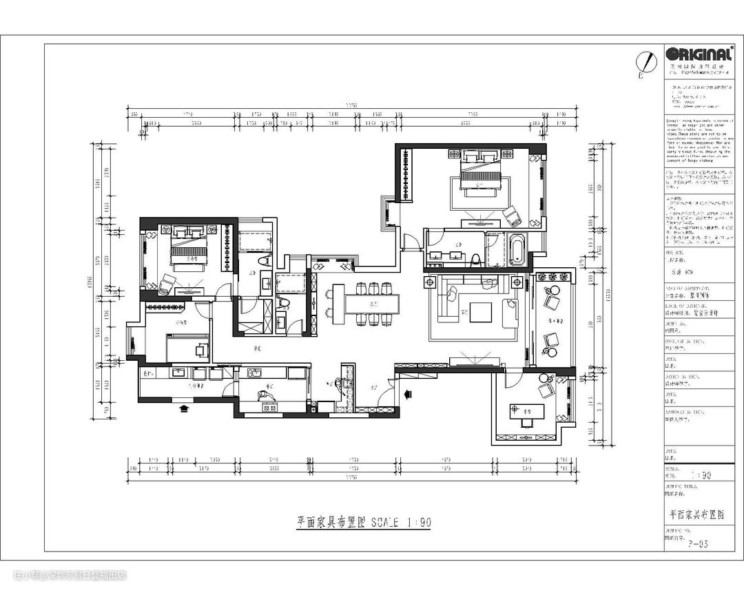
△建筑面积:231m²
△设计风格:现代轻奢风
△楼盘位置:水湾1979
△空间格局:客厅、餐厅、玄关、厨房、休闲阳台、生活阳台、主卧、小孩房、父母房、中厨、西厨、书房、主卫、公卫、套卫。

△户型缺点:整个房屋的通透性不太高,动区与静区的房间分布与业主需求有出入需深化。

△户型调整及设计思路:
玄关空间:做了敞开式玄关,使玄关部分与户型最大空间融为一体,一进门的感觉扩大整个房间的空间感,通透性更强,视野更开阔,给人一种大气、豪宅的既视感。

西厨、中厨空间:原只有玄关的部分开设了一个西厨,把玄关空间划分一半设西厨,不仅没有使玄关使用的空间变小,还因为一进门有西厨的存在使玄关部分层次感更高,视野更开阔,西厨与中厨的动线也很方便,考虑到业主平时工作累了或者买了菜回来可以第一时间放进厨房,中厨的大玻璃门也不影响中西厨的空间融为一体,交相呼应。

卫生间:父母房设有套卫考虑到老人半夜上洗手间方便,私密性增强,实用性和舒适度变高。

主卧与次卧:主卧次卧的房间采光、通透性都完整保留,主卧空间较大,主卧设有衣帽间、主卫有浴缸,房间的使用性更方便、私密。

