平层住宅的现代轻奢风设计,第一眼就爱上了温馨的客厅
华浔品味装饰集团
2021-10-09
本期要和大家分享的是一套现代轻奢风格的平层装修案例。业主是来自当地的一位企业高管,这位高管最近双喜临门,刚刚升职不久,又买下了向往已久的新房。之后业主带着一家人高高兴兴的找我们做新房的装修设计。
业主有一个幸福美满的家庭,夫妻俩感情非常好,还有个特别活泼的小女孩。所以业主希望这套住房在装修好之后能给全家人一个温馨浪漫的家庭生活空间。对于装修的风格,业主希望新房能有现代感,同时奢华一点,这样才能符合公司高管的气质。
基本信息
项目地址:浙江省义乌市
建筑形式:平层
装修风格:现代轻奢风格
业主对这套住房的装修工作十分上心,经过反复的比较和考量,业主和设计师共同确定要把这套住房装修成现代轻奢风格,并且在比对的过程中,设计师也逐渐明确了业主的具体居住要求:
- 业主十分注重文化素养,要求在每一间卧室都设置一组书桌方便随时读书。
- 给孩子预留一间单独的卧室。
- 在主卧设计一个小衣帽间。
- 要一个带岛台的厨房。
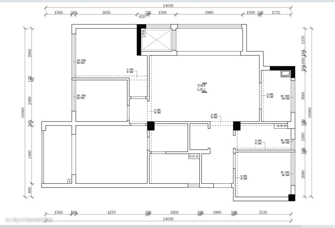
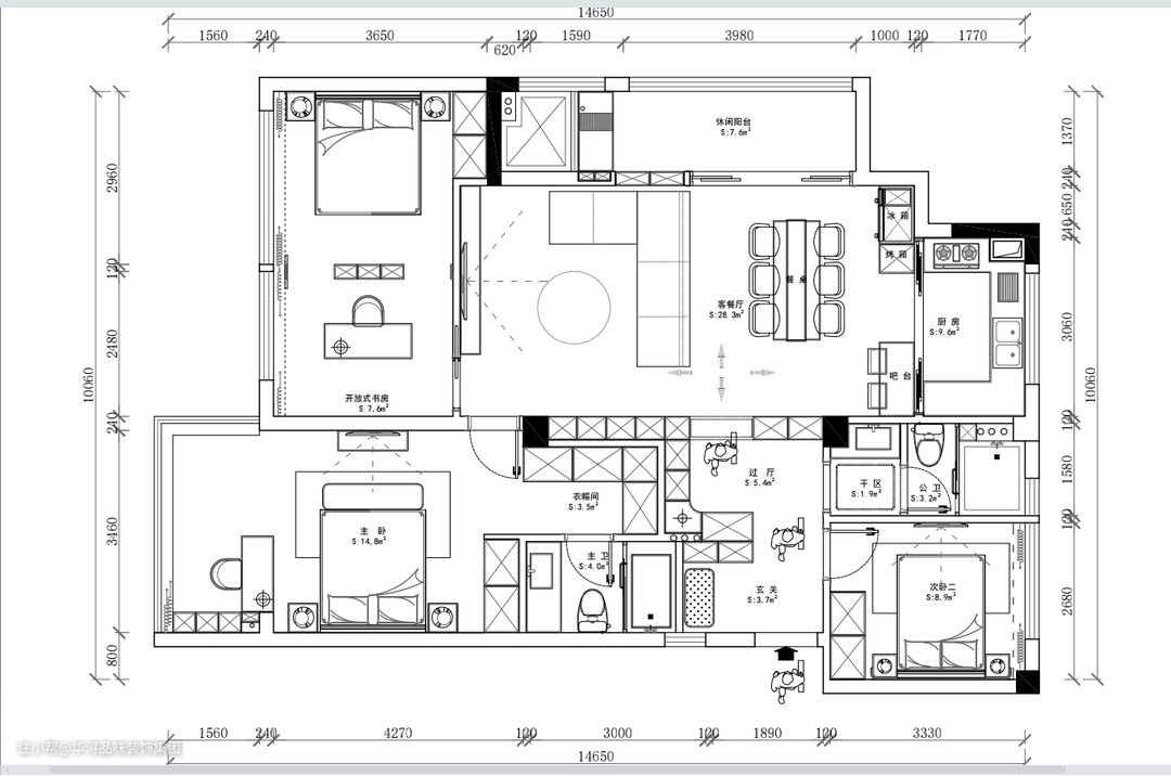
01原建图&平面布置图


在和业主沟通期间,业主还带着我们来到新房进行了现场实地测量,通过测量设计师更加了解新房的具体情况,并且根据业主的具体居住要求,对新房进行了如下平面布置:
- 入户门位置设计玄关,增加住房的层次感,营造豪宅感受。
- 客厅、餐厅放在同一空间,保证空间更完整,更有体量感。
- 在主卧室进门左手边的内凹空间,设计一组衣帽间。
- 厨房设计成U型,在靠近餐厅的一侧设计岛台。
02客餐厅

为了使客餐厅空间更加统一,这个区域的吊顶中间没有造型的变化,紧紧的将两个不同功能的区域融合在一起。在客餐厅靠近阳台一侧,使用了全玻璃的推拉门,让阳台的阳光全部洒如,保证了这片区域有充足的自然采光。
03客厅

具体来看客厅位置,在设计时将重点放在了温馨和奢华两个方向。在地面上使用地毯,隔绝了地砖的冰冷感,同时在家具的选择上,绒面的布艺沙发触感温和柔软,实际使用体验要好于其他材质。
家具表面的绒毛给人蓝丝绒一样的感受,质感更加高级。客厅灯光系统选择了暖黄色,在布艺绒面的共同作用下,营造出温馨舒适的家庭气氛。

客厅电视背景墙使用黑色大理石制成,搭配偏金色的边框,奢华感油然而生。在墙面上还设计有壁橱,透过玻璃门板,壁橱内摆放的书籍和饰品,更让客厅有了文艺的气质,展现出业主不落俗套的品味。
04主卧

在卧室的设计上,不仅仅是将地面的铺装换成了地板,在床头背景墙方向也使用了大量木材质,营造了卧室亲近自然,舒适放松的氛围,更有利于人放松身心。
窗帘内加了一层白色窗纱,在阳光强烈的时候可以把射入室内的光线变得柔和,在靠近阳台一侧设置书桌,借助这些柔和的光线,读书更舒服。
05厨房

厨房的橱柜柜体使用白色,突出干净卫生的感觉,这一点对于一个烹饪食物的空间来说特别重要。同时为了不让白色调把空间变得冰冷,厨房的灯光系统使用了浅黄色,地面也使用了反光效果更好的地砖材质,营造了温馨自然的环境氛围。
在靠近厨房外侧,靠墙设计了一组吧台,吧台高度和餐桌近似,正好作为简餐台使用。另外,吧台底部的柜体还能给厨房提供大量的储藏空间,实用性也非常好。
06儿童房

儿童房在设计时照顾到了小女孩的喜好。在选择窗帘时特意选择了现在这种类似公主裙裙摆的造型,并且在房间内专门摆放了模特,满足小女孩当公主的幻想。
在房间的软装和配色方面,使用了大量的卡通玩偶作为装饰,让卧室充满童真童趣。窗帘、床品等粉嫩的色调也更符合女孩温婉可爱的特点。床头背景墙的橘红色在丰富了卧室色彩的同时,更增加了卧室的视觉温度,更能让小女孩感受到温暖和安全感。
现代轻奢风格适用于别墅、平层等多种不同的户型,是一个可塑性和适应性都特别好的装修风格。并且由于效果比现代风格更华丽,受到了众多追求极致生活享受的业主喜爱,近年来在装修设计领域被越来越多的用到。如果您即将要进行装修,那么现代轻奢这种风格一定是一个不错的选择。