锦绣半岛142平米现代简约装修效果图
兰州东易日盛
2021-10-14
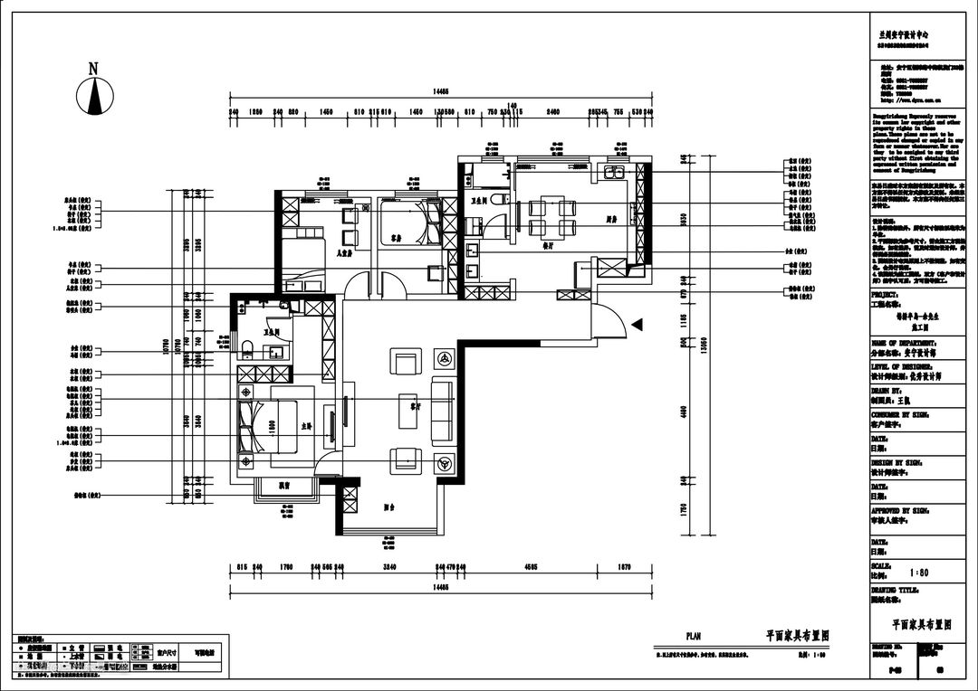
装修楼盘:锦绣半岛
装修面积:142平米
家装设计师:魏周鸿老师
装修户型:三室两厅一厨一卫
装修风格:现代简约风格

家装设计师设计理念:锦绣半岛住宅功能性为前提加创意,要有儿童房空间,装修风格为现代新极简,色彩以浅色为主。



锦绣半岛住宅装修是围绕现代新极简为主题,适合于20-30的三口之家居住,以简洁明快的设计风格为主调,简洁和实用是现代简约风格的基本特点。


兰州东易日盛
2021-10-14
装修楼盘:锦绣半岛
装修面积:142平米
家装设计师:魏周鸿老师
装修户型:三室两厅一厨一卫
装修风格:现代简约风格

家装设计师设计理念:锦绣半岛住宅功能性为前提加创意,要有儿童房空间,装修风格为现代新极简,色彩以浅色为主。



锦绣半岛住宅装修是围绕现代新极简为主题,适合于20-30的三口之家居住,以简洁明快的设计风格为主调,简洁和实用是现代简约风格的基本特点。

