上海小夫妻在44㎡里,装三分离卫浴、独立书房、衣帽间,太爽了
时尚舒适家171
2021-10-14
今天小编为大家分享的是一套面积仅44㎡的小户型装修案例,一室一厅的格局,原房子面积小且空间狭窄,收纳空间也不够。经过设计师爆改后,竟然能装下三分离卫浴、独立书房和衣帽间,太爽了!


▲原始户型图

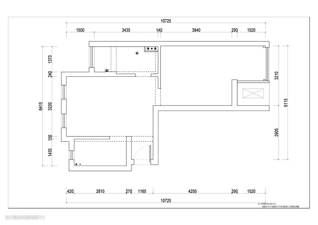
▲平面布局图



▲入户玄关,将进门左手边的隔墙拆除,让人一进门就有一种豁然开朗的感觉。进门右手边摆放了半墙高鞋柜,上面摆放装饰品,兼具颜值与实用性。连着鞋柜的是一个高柜,将烤箱、微波炉嵌入进去,充分利用了空间。





▲卫生间,将洗手台外移,并安装了玻璃移门,做彻底的三分离设计,解决了早高峰抢厕所的问题。整体以黑白灰色调为主,干净明亮,整体感很强。



▲客厅,布置的简约而温暖,矮靠背的双人沙发不占空间,并从视觉上拔高层高,让原本因为无主灯设计而显得敞亮的空间,显得个更加宽阔,毫不压抑。


▲开放式餐厨区,看上去更加宽敞通透,动线也更加合理。厨房定制了深灰色的L型橱柜布局,不仅收纳+操作空间充足,而且干净整洁易打理。





▲卧室一抹温柔的杏粉色彻底扭转空间氛围,让卧室更为温馨柔和。床左侧墙面安装壁灯,温暖的黄色光线铺洒在顺着墙面流淌到床头柜上,无比温馨。右侧是相同颜色的吊灯,长长的黑色灯线美观大方,线条感很强。


▲床右侧是一个阳台,阳台与卧室打通,增加室内面积和采光。阳台沿一侧墙面摆放电脑桌椅,具有书房的功能。沿另一侧墙面摆放两个衣架,足够悬挂日常衣物和需要换洗的衣物,具有小型步入式衣帽间的功能。