一切以实用为主,放弃“横厅户型”,客厅隔间卧室真是明智的选择
合肥飞墨设计师
2021-10-26
别人家装修都是想要横厅,而直接业主比较“奇怪”,放弃横厅增加一个卧室,不过业主最不后悔的事情,就是地砖通铺,厨房、餐厅、客厅和阳台4个区域视线无限延伸,越看越敞亮,虽然没有横厅,进门照样看着也很高级有品位,想要大客厅的不妨参考一下!

这是一套毛坯房,面积120㎡,半包花了11万,两室改三室,不过根据业主的要求,空间感一定要大,最终呈现的效果也是在视觉上扩大了20㎡,这下业主很满意了!
装修之前的样子:


下面再一起来看看硬装现场都有哪些值得参考的细节吧!
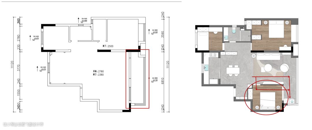
合理又有私密性的动线
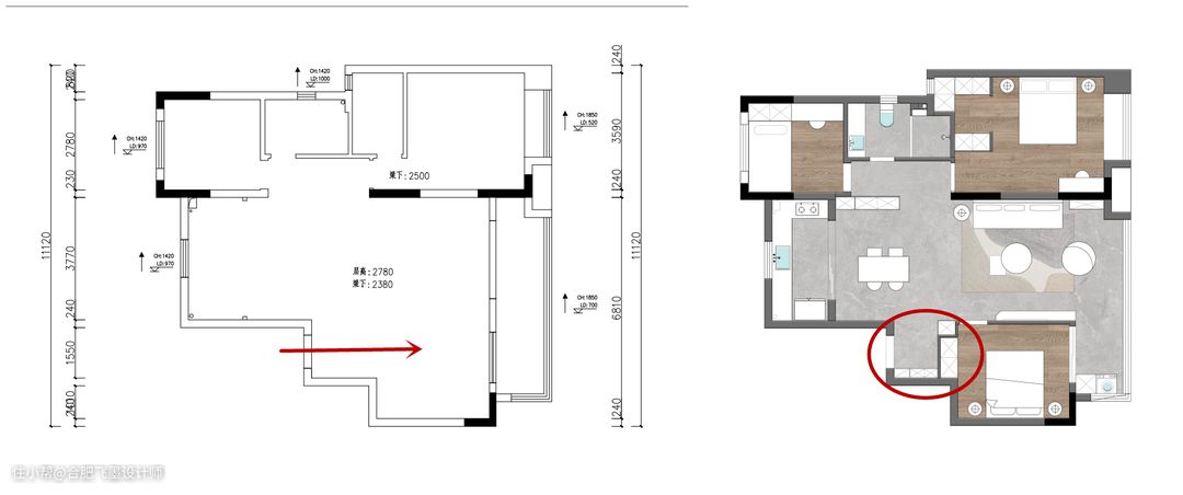
单从户型上看这套房子问题不大,不过设计师还是优化了家里的动线设计,比如:客厅阳台打通,这个设计十家有九家都是这么干的,主要是为了扩大视觉感。
他家特别的是在客厅里隔出一间卧室,保留卧室和阳台之间的门,这样平时也可以通过次卧进入洗衣区,避免拿着脏衣服从客厅经过。



隔出来的卧室门正对着客厅,利用隐形门来解决这个弊端,装修隐私好,又不会影响电视背景墙的整体效果。
原本入户门正对客厅,装修后隔出个卧室,刚好隔绝了入户视线,很好地保护了隐私。

餐厅位置正对卫生间门,隐私差,看着就没啥胃口,于是设计师延长餐边柜,增加收纳空间的同时,也完美解决了这个尴尬。

充足收纳才是正确打开方式
大家都知道要想保持家里干净清洁,一定要有充足的收纳空间,这家虽然没有太多的柜子,但全都安排在了它最合理的位置。

比如入户玄关右侧打个到顶的鞋柜,中间留空,底部安装了活动层板,这样女生冬天的靴子都能收进去了,不需要时再装上不浪费一点空间。

客厅里一般对收纳需求并不强,电视背景墙下面有一排抽屉,收纳一些发票、遥控器、电池这些小物件。

沙发背景墙旁边也有了展示柜。

阳台上也增加了储物柜,左下角放洗衣机,剩下的全都能用来收纳家里的清洁工具。

餐边柜是四段式,上面是玻璃柜,台面下面还有一排抽屉,中间墙面上安装了轨道插座,后期想要增加电器也不用担心插座不够了。

厨房里虽然吊柜不多,但超长的L型橱柜也完全能满足收纳,台面也足够宽敞。

次卧里嵌入式衣柜。

主卧利用两排柜子打造出了一个步入式衣帽间,对于女生来讲,拥有一个超大的空间来收纳自己的衣服、包包和鞋子是一件很有成就感的事情。


家里还有一间榻榻米书房,超宽的榻榻米分成上掀式开门和抽屉两种,这样更方便拿取。

还有到顶的大衣柜,底部一定要预留一点高度,防止后期铺完被子打不开门。最右侧是一张连体式书桌,下面有一排抽屉。


光从动线和收纳两个方面,这套120㎡的房子完全可以作为同户型装修模板,其实装修并不需要多奢侈豪华,做好这两点,相信能满足每个家庭都想要的舒适感,你们觉得呢?
