4平方1卫改2卫:小房子也有春天
自装能手☆糖小甜
2021-10-29
哈喽,我是糖小甜!今天来聊聊我们家的卫生间改造!
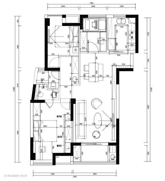
房子108.45平方,三室两厅一卫。先上原始户型图,和改造过后的户型图!我们家基本上能敲的墙都敲了,这样有了两个卫生间,并且还做到了干湿分离!厨房也能放得下双开门冰箱,整个户型看上去规整了不少。唯一的缺点就是次卧和儿童房变小了!

( 原始户型)


当时这个卫生间的问题纠结了好久,也咨询了很多装修公司和一些业内老师傅,有些装修公司甚至是说不能改造,最后是我看了好多案例以后,决定要做成S形分割!原来4平方的变成了两个2平方的,外卫台盆在外面,卫生间就是一个马桶和淋浴也还好,内卫嘛,说实话肯定是挤了,不过能满足功能已经很开心了!反正自己用的,别人也看不到!总结几点改造卫生间需要注意的事项:
1、 户型问题。
就是你的位置够不够改造的,我们当时是因为卫生间门口有一大块空余面积可以利用,所以决定改造的。
2、 防水问题。
卫生间做好防水大家都知道的常识,在进行一卫改二卫时,有些卫生间改造需要重做防水层,这不仅关系到自己的卫生间使用,也关系到楼下,为了避免产生纠纷,在进行改造工程时一定要做好防水。
3、 马桶类型。
一卫改成两卫之后离排污口肯定是有段距离了,当时我也是咨询了好多卖马桶的,也问了水电师傅!建议一个用虹吸的,一个用直冲的,虹吸的款式比较多,直冲的现在好多品牌都不做。PS:好多人说直冲马桶声音大,但我买了试过发现和虹吸的差不多。当时做装修的朋友建议我们是做墙排,我考虑到费用高,所以没用。
4、 管道。
如果改造的新的卫生间需要安装马桶,那么就需要延长排污管道,相应的地面就需要加高,卫生间的整体高度会有影响,并且在管道的选择方面需要格外注意,管道维修十分麻烦。
想想把我父母接过来住就完全没问题拉,上班时间也不用大家挤着用一个卫生间洗漱,化妆的时候也不用担心有人在上厕所,完美~~