现代风装修案例——在不如意的日子中搜索温柔
生活家装饰数智整装
2021-10-30
地址:星河湾小区
面积:206平
风格:现代
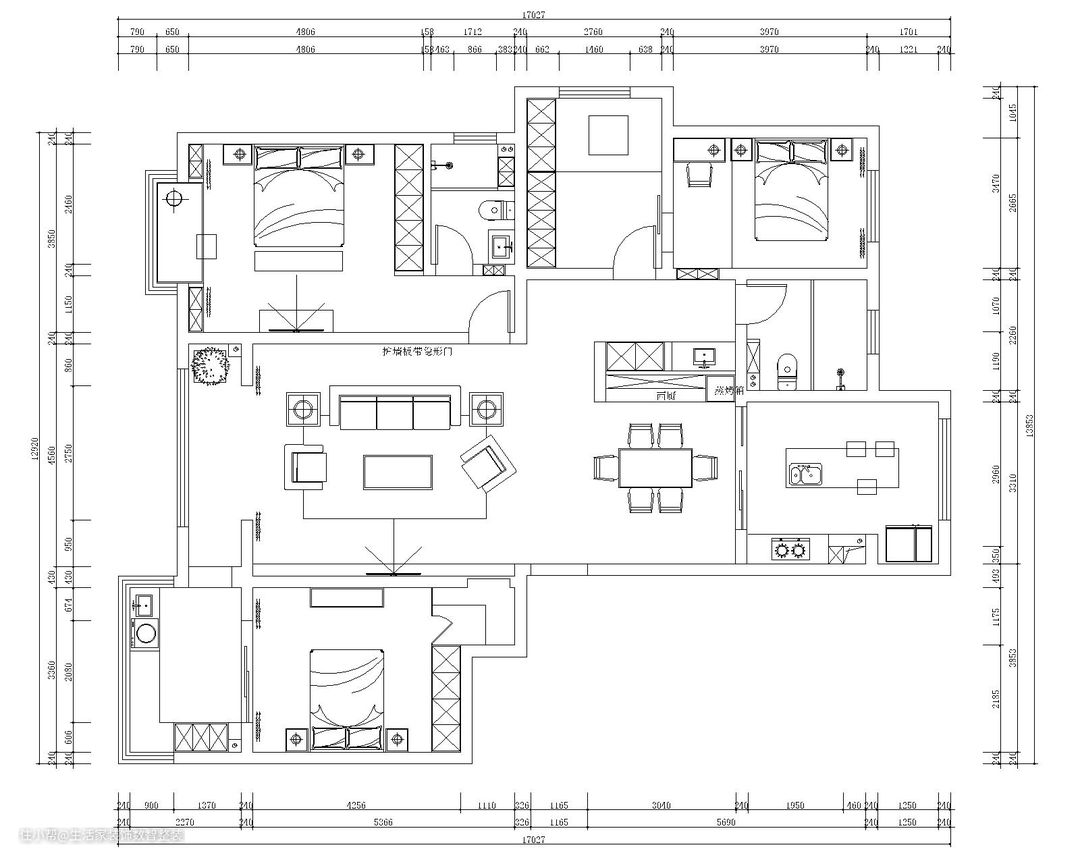
↓ 平面方案图

| 客厅 |

现代风的客厅空间,以橄榄绿为大面积撞色,饰以几何装饰画作为沙发墙,让空间充满华丽精致的高级感,现代艺术气息浓厚。

电视背景墙以冷硬简洁的大理石为底,加入右侧的储物柜,也显得更加华丽情趣。天花吊顶加入一圈金属线条的装饰,地面铺上深浅灰+浅灰互相结合的地毯,还布置了金属+岩板结合的茶几,让客厅充满舒适的精致与档次。

蓝灰色皮质凳,还有驼色休闲沙发椅与长条沙发的布置,加入金属小饰品、摆件与书籍的点缀,也让客厅显得更加高档而有格调。
| 餐厅 |

餐厅布置一张大理石板台面+金属材质桌脚结合的餐桌,搭配浅灰色+孔雀蓝拼接的皮艺餐椅,餐椅与墙面色系一致,使得空间风格趋于统一高级,餐桌上还有精致的餐具布置,让空间显得更加高级优雅而精致。餐厅与厨房以开放式的格局,中间加入一个金属框半透明玻璃推拉门的门洞,外置储物柜上浅下深的色彩搭配设计感满分,中间镂空可放置装饰摆件,让用餐空间也是充满优雅情趣的仪式感。餐厅餐桌上方加入造型设计感十足的吊灯,让用餐空间更加有艺术优雅的氛围感。
| 厨房 |

大面积大理石,灰白色系搭配现代冷硬感十足,搭台设计也将现代都市时尚气息充斥其间。
| 儿童房 |

儿童房将大部分面积空间留给了书房空间的书桌、书柜等学习空间的布置,飘窗改为榻榻米设计,利于学习疲累时的休息之用或是与朋友娱乐。将多余的空间留给日常的学习与娱乐。小面积俏皮的皮粉色与大面积清新的灰豆绿的搭配,富有童趣与活力。经久耐看,适合较长年龄段的孩子,不用担心当孩子年龄渐长,空间风格会趋于童稚。
| 次卧室 |

卧室大面积灰豆绿墙面底色,加上浅灰床品设计,清新自然,与书房一个门洞相隔。
| 主卧 |

浅灰色与白色为主色调的主卧空间,布置橘色+白色的布艺床、黑白陈杂的地毯与浅灰床单,床头墙也是浅灰色与橘色相拼接的的背景墙设计,让主人卧室显得简约而优雅内敛。飘窗改为书桌的设计为点睛之笔,橘色布艺椅子与床品背景墙相呼应,空间色调统一和谐。床头墙一侧的金属材质吊灯,布置石材台面的床头柜,也让卧室更加优雅舒适。
| 卫生间 |

内置设计造型简约,以直线条为主要设计表达方式,相对于传统卫生间设计,收纳柜的设计比重较多,满足家庭收纳需求较多的住户。