吊顶用木龙骨还是轻钢龙骨?
巴中华浔品味装饰
2021-11-04
装修吊顶不仅美化空间,还能隐藏横梁、电线、中央空调等物品,所以吊顶这个施工节点不容忽视。龙骨是吊顶不可缺少的组成部分,传统的吊顶采用木龙骨,近年来更多人青睐轻钢龙骨,到底选哪种比较好呢?今天为大家解读下木龙骨和轻钢龙骨。
木龙骨及安装工艺
木龙骨也叫木方,大多是由松木、杉木、椴木加工而成的截面是长方形或者正方形的木条,是一直沿用至今的材料。木龙骨易切削,可塑性高,可以制作多变复杂的造型,与木制品衔接变形系数比较小,价格比较便宜,但不防火相对没有轻钢龙骨安全。
在进行木龙骨吊顶前,先精确测量吊顶位置,在墙面做好标高、弹线,接着在木龙骨上进行开槽、咬口拼装,将木龙骨进行固定和画位置线,再进行安装施工,最后将吊顶的主次龙骨位置进行适当调整,确保整体吊顶的位置合理性。
轻钢龙骨及安装工艺
轻钢龙骨,是指使用密度比较小的钢做成的钢材,具有质量轻、强度大、防震、防火防潮性能,稳定性好施工快,使用寿命长,也可以做出各种各亲的吊顶造型,比起木龙骨,轻钢龙骨更适合在各个空间区域使用。
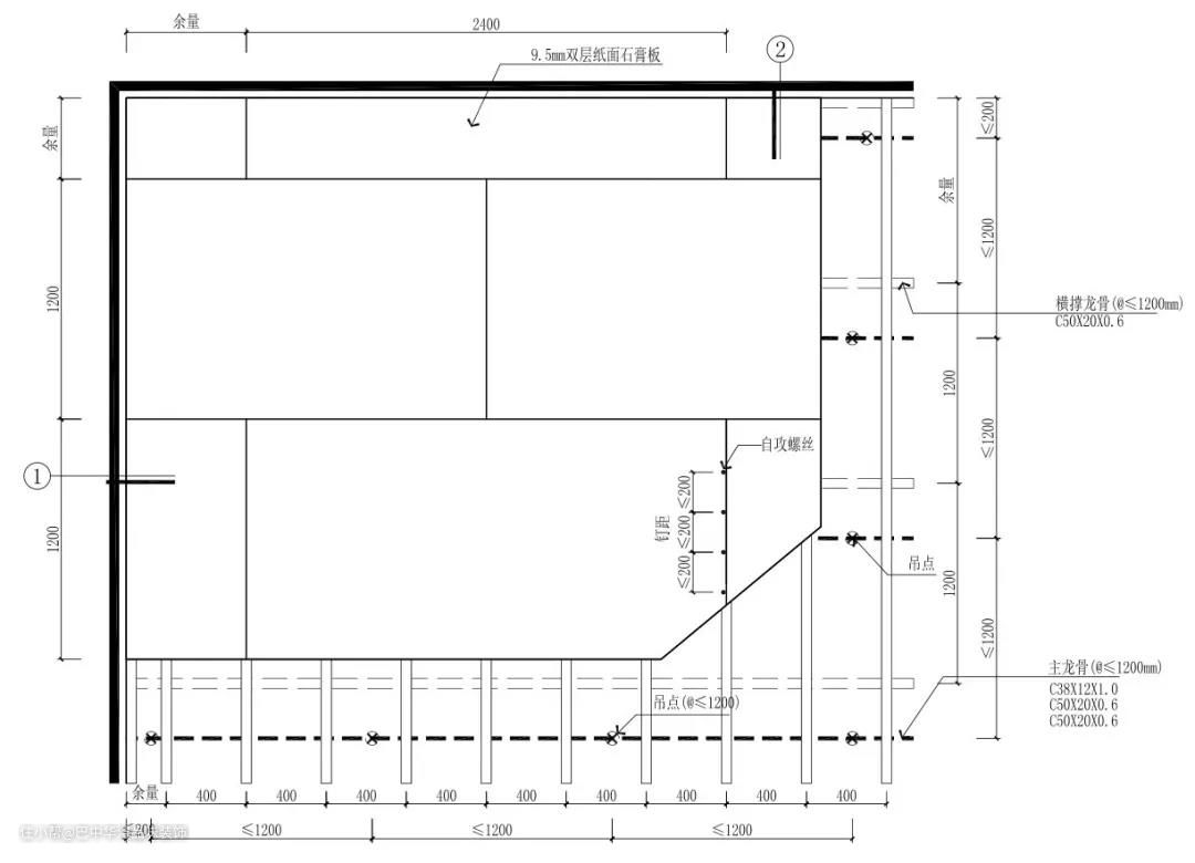
轻钢龙骨吊顶是由主龙骨、副龙骨、边龙骨、角龙骨、主副龙骨连接件、吊件、吊杆、主副龙骨连接件等所组成,铝扣板的配合度比较高,相当结实耐用,下面就以我们的施工工艺标准为例,阐述轻钢龙骨工艺的安装方法。

首先,定标高、弹出天花完成面线。安装龙骨前,需要按照设计要求对房间净高、洞口标高和吊顶内管道、设备及其支架的标高交接检验,并根据吊顶的设计标高在四周弹出天花完成面线,要求位置准确清晰。

▲ 轻钢龙骨吊顶平面图


其次,安装吊杆和龙骨。各种金属预埋件、吊杆在安装前应先做防锈处理,当然如果使用的木质吊杆、龙骨、饰面必须进行防潮、防腐、防火处理。在安装主龙骨时,间距应小于1.2m,主龙骨与墙体间距不得大于300mm。在安装主龙骨时,间距应小于1.2m,主龙骨与墙体间距不得大于300mm。

▲ 轻钢龙骨吊顶示意图
(1)安装边龙骨:沿四周墙面天花水平控制线安装边龙骨;用膨胀螺丝固定,膨胀螺丝间距不大于500mm,端头固定点不大于100mm。
(2)安装主龙骨:主龙骨应挂在吊杆上锁紧,单层板间距800-1000mm、双层板间距600-800mm;主龙骨宜平行房间方向安装,同时应起拱;主龙骨的接长应采取对接,相邻龙骨的对接接头要相互错开,主龙骨挂好后应基本调平。
(3)安装次龙骨:次龙骨应紧贴主龙骨安装,主次龙骨间距可按封板模数确定;次龙骨间距正常为300-400mm,最大间距(有障碍物时)不得超过600mm;次龙骨的两端应在边龙骨的水平翼缘上紧固定;两边拉通线或红外线校正,用调吊杆螺母升降的方法调平龙骨;吊杆、龙骨的链接必须牢固。

▲ 轻钢龙骨吊顶剖面
最后进行封板。板材应在自由状态下进行安装,固定时应从板的中间向板的四周固定。饰面板缝需进行防裂处理,而且板缝要顺直、宽窄一致、两板间缝隙为4~7mm,不同材质交接处或板材间交接处需要进行防开裂措施。
目前选用轻钢龙骨做吊顶的占比比较大,装饰经验丰富的公司,可以根据业主的需求进行专业标准的施工。