关于手枪型房子的新花样
鼎程装饰无锡店
2021-12-08
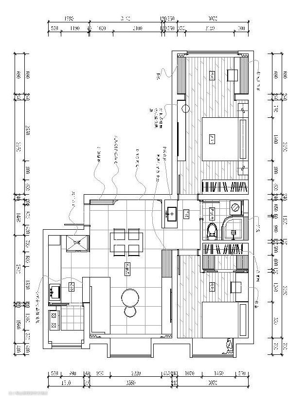
手枪型的户型其实与一字型的户型点差不多,公共空间很小,卧室很大,采光是一个令人头疼的事情,不过这个户型还有,有一个客厅,为了使入户空间开阔点,想过做开放式的厨房,但是担心油烟问题,还是决定做封闭式的厨房,既想有大空间又不想油烟太重,这是一个设计亮点,卫生间依旧是做干湿分离,使用起来会更加方便。
户型图

客厅


餐厅



厨房


卧室

鼎程装饰无锡店
2021-12-08
手枪型的户型其实与一字型的户型点差不多,公共空间很小,卧室很大,采光是一个令人头疼的事情,不过这个户型还有,有一个客厅,为了使入户空间开阔点,想过做开放式的厨房,但是担心油烟问题,还是决定做封闭式的厨房,既想有大空间又不想油烟太重,这是一个设计亮点,卫生间依旧是做干湿分离,使用起来会更加方便。
户型图

客厅


餐厅



厨房


卧室
