建筑面积82㎡,套内64㎡的三室一厅,用15万装修成慵懒风格
家物
2021-12-09
一套建筑面积82㎡、套内面积64㎡的小家,该如何装修改造才能让人觉得宜居又舒适呢?最近,一位姑娘就展示出了自己刚刚改造完成的家,你别说,还真挺漂亮的。
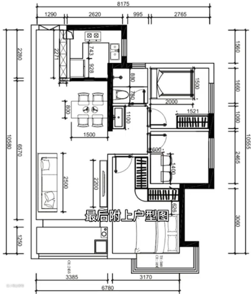
我们先来看看户型图再说吧~
房屋户型图

从房屋户型可以看到,这个家其实是小三室的格局,客餐厅、厨卫空间、次卧书房的面积都不大,只有主卧相对来说宽敞一些,但即便是这样,这位姑娘仍旧将其巧妙设计成了宜居的家。
入门玄关

入门的玄关是一个窄小的过道区域,姑娘利用一整面墙的空间,做出了通顶的玄关柜,上面是收纳日常杂物的空间,下方是鞋柜区域,中间则留出了开放式的柜格收纳钱包、钥匙等随身小物,非常方便。
客厅和阳台相连

客厅和阳台直接打通,做成一体式的设计,而且瓷砖通铺也减少了清洁死角,打理起来非常的方便。
客厅区域中,姑娘最满意的就是沙发的设计,四人位的浅灰色大沙发摆在空间中,看上去简单又高级。

电视墙的电视柜采用了“悬浮”式设计,白色的柜体搭配这种壁挂设计,带给人一种轻盈、灵动的感觉,高级感满满。

而阳台区域则分为了两个功能区,一边是洗衣晾晒的区域,另一边则摆上了小桌椅,当做休闲的下午茶区域,在这里晒晒太阳、看看书、小憩片刻,别提多惬意了。
餐厅和厨房的区域

餐厅和厨房的空间都不大,在餐厅中,一张一米五的四人位餐桌,满足家里人日常用餐的需求,桌面基本保持净空的状态,看上去整洁又干净。
而餐桌后方,就是家里的方形小厨房了。

厨房橱柜采用U形设计,平日里即便是夫妻搭配下厨,也不会觉得拥挤,而且这样的格局设计,也提升了收纳和烹饪便利性,看上去很舒服。
卫生间的设计

卫生间差不多是个“低配版”的三分离设计,洗漱区和里面的如厕区、沐浴区隔开,同时马桶也和淋浴房用玻璃隔断进行分隔,巧妙分开了干湿区域。
只不过,姑娘觉得有些遗憾的地方是卫生间的瓷砖,花纹选得有些复杂,让人感到些许的杂乱。

马桶区域非常窄,所以只好用一个窄小的垃圾桶放在旁边,倒是刚好填补了冗余的空间。
而浴室中,为了减轻这种狭窄的感觉,花洒也被换成了纯白色的,看上去明亮很多。
主次卧室

主卧空间相对大一些,一进门是L形的橱柜区,里面的床和飘窗相互连接,搭配天花板上的装饰羽毛吊灯,看上去温馨又慵懒。
而地板的人字形铺贴设计,也给视觉上带来了几分特殊的感觉。

最后,次卧的面积仅有7㎡,平日里当做客房使用,当然,未来如果有孩子的话,也会将这里改造成儿童房,所以目前并未做太多的装修。
总之,这位姑娘的套内64㎡小家,看上去真的是非常慵懒温馨,不知道大家喜不喜欢这种风格的设计呢?~
(图片来源于网络,如有侵权立即删除)