银滩花园98平米美式风格装修效果图
兰州东易日盛
2021-12-10
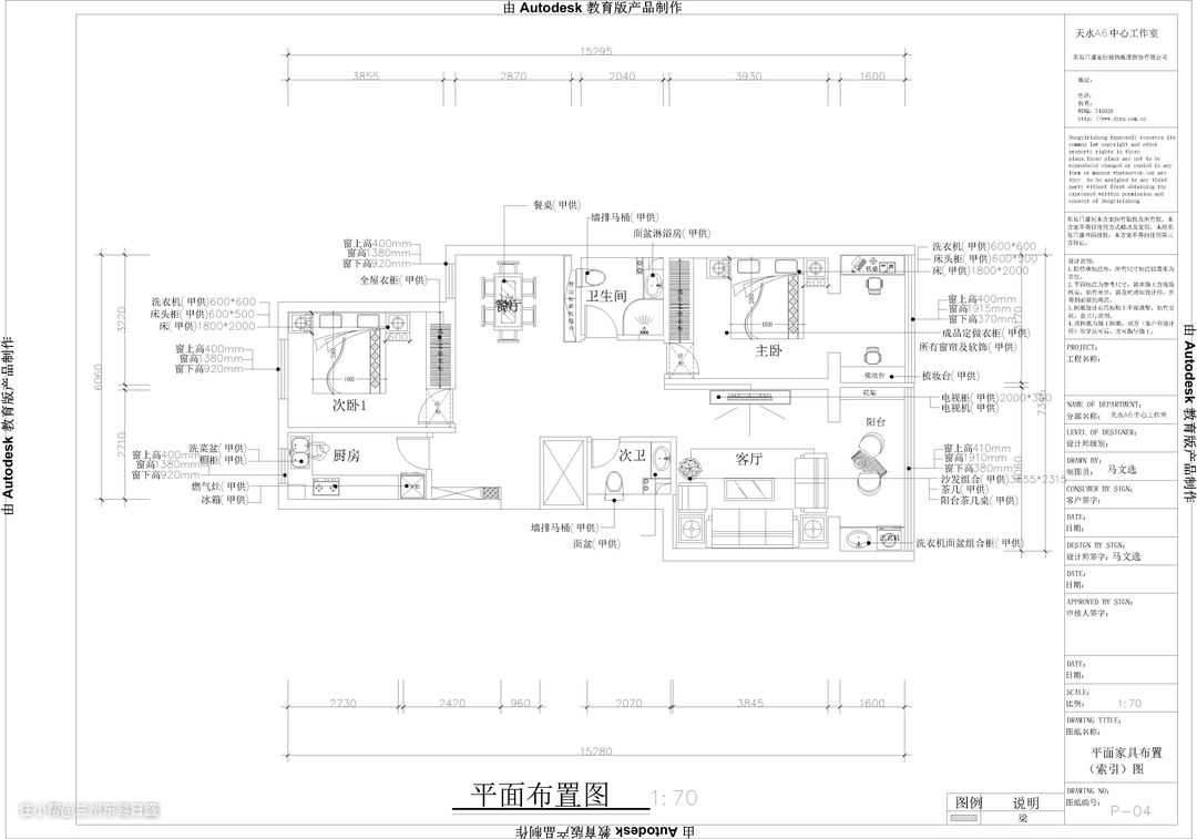
装修楼盘:银滩花园
装修面积:98平米
装修风格:美式风格
装修户型:三室两厅一卫
家装设计师:魏周鸿

银滩花园装修户型为平层三室两厅一卫。家装设计师在详细了解业主的需求后,把这个空间定位于简约浪漫的简美风格,从而为业主打造了一个轻松舒适的居住空间。

客厅墙面以白色主基调,将设计的元素、色彩、照明、原材料等简化到最少的程度,但是对材料的色彩质感要求很高。整体给人一种简约大气的气息,没有过多复杂的空间布局,每处都格外的干净利落,而且现代实用,无论是房顶的吊灯,还是脚下的地板,都没有琐碎多余的设计,表面光滑柔和,让人感觉温暖而舒适。

厨房墙砖使用蓝白黄绿彩色斜铺而成,在操作区域多了一丝温馨与浪漫


卧室作为主人的私密空间,主要以功能性和实用舒适为主,以淡蓝色为背景主色调,搭配浅色的木地板。使整个空间温暖,舒适。再用温馨,柔软的布艺来装饰,让业主在休息的时候,能够全身心的放松。

卫生间墙面使用爵士白半瓷砖为主基调,配以黑白灰马赛克做腰线,地面灰色瓷砖斜铺,整体感觉现代,简约。