效果图新作|290m²曲水风和演绎自然设计美学
布尔设计
2021-12-12
化繁为简 纯粹质朴
原 木 色 调 | 微 水 泥 | 极 致 简 约
项 目 信 息
HOUSEHOLD TRANSFORMATIONH
Location/地址
曲水风和
Area/面积
290m²
Style/风格
侘寂风



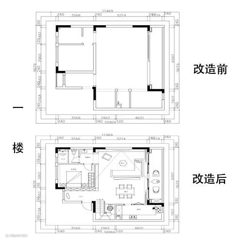
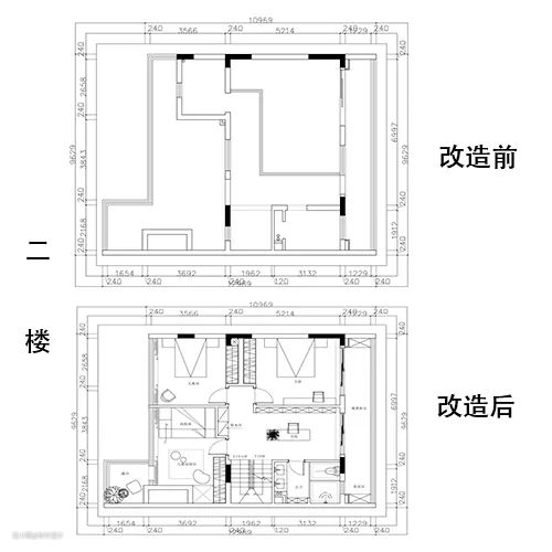
1.把一楼门厅面积扩大,增加储物空间。
2.一楼厨房面积增加,厨房操作更方便。
3.二楼改动比较大,设计三个卧室空间。
4.在三楼现浇露台,打造露台景观使得利用空间从180m²增加到240m²。

生活需要做减法,设计亦是如此,将一切复杂的变为纯粹,用更自然更清晰的方法去诠释生活。本次案例将极简风格与侘寂元素相融合,创造出一种更为简约质朴的氛围。设计师做到了削减到本质,却没有剥离它的韵,保持干净纯洁而没有剥夺生命力。
客 厅 篇
光透过窗桌上的花瓶,周身浸润明亮
影子呆在桌面,模仿指针的脚步
万物皆宁,空间只能听见时间走过的嘀嗒声


客厅整体采用高级黑和原木色来设计,诠释优雅的同时,还打造了出现代艺术之美。侘寂风很少见亮色出现,没有强冲击力的色彩,灰色沙发搭配原木家具,相比于艳丽的色彩,它显得更加耐看,更经得起时间的磨练。落地窗保证了空间的采光度,将窗外风景一览无余。
主 卧 篇

没有了白天的喧嚣与吵闹躺在床上让灵魂得以安静,是一种对极简、安静、纯粹、自然的生活的向往。
卧室规避所有浮夸繁复的装饰,没有多余的装饰,做到了极致简约。房间的配色比较柔和,在阳光的加持下,给人的感觉比较温暖放松。
次 卧 篇

整个空间用甜美温柔的粉色,搭配清新自然的原木色,看似简单却能令人怦然心动。纯洁的原木色柜门则能很好地提升房间高级感,营造令人安心的氛围,带来甜而不腻的感受。
儿 童 房 篇

上下铺的楼梯巧妙地做成了空间储物利用,收纳的习惯需要从小培养,小盆友才会有意识懂得管理自己的物品和时间。预留的亲子游乐互动区域比较大,陪同孩子一起玩,增加亲子互动,提升家庭幸福感。
茶 室 篇

茶室的吊顶与其他房间有所不同,采用木质吊顶使茶室变得自然质朴。忙碌中因为有了茶室的存在,生活的脚步也会随之放缓,获得片刻的沉思与宁静。
//////////
倦鸟归林,鱼翔浅底,落叶归根。
这都是对家的渴望,也是生命在追寻一种归宿。
The weary bird returns to the forest, the fish Xiang shallow bottom, the Getting Home. It’s all about wanting a home, and it’s all about finding a home.