曲江大华公园世家251㎡顶跃新中式风格
西安业之峰原创设计
2021-12-17
地址 | Address:曲江大华公园世家
面积 | Square Meters:251㎡
户型 | Apartment :顶跃
风格|Style:新中式
硬装|Construction:业之峰装饰
新中式风格是由中式慢慢演变而来的。将古典的中式风格与现代进行结合,打破了原有的传统中式风格比较沉闷的特点。是中式元素与现代材质的巧妙兼柔的布局风格,它同时与明清家具、窗棂、布艺床品相互辉映,经典地再现了移步变景的精妙。新中式风格还继承明清时期家居理念的精华,将其中的经典元素提炼并加以丰富,同时改变原有空间布局中等级、尊卑等封建思想,给传统家具文化注入了新的气息。
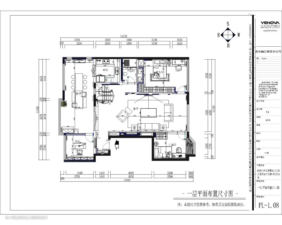
(户型鉴赏)
(一层)

1. 将原有门洞填上,将原来厨房窗户做成了进门,增加了厨房面积。
2. 将原有门洞移到最右边,并将原有门洞外移,拆除房间内的墙垛,使房间面积扩大。
3. 更改了进门位置扩大沙发背景墙使房间合理化。
(二层)

1. 将原来卫生间墙体右移扩大了景观阳台。
2. 墙体左移将原次卧位置改往右边并做了一个衣帽间。
3. 将原来卧室房间改为客厅
4. 将原来休闲区域改为
5. 将原房间右移腾出了露台的位置
(效果赏析)
(客厅)

新中式风格颜色的色调比较明朗,在家具的搭配上,也不像传统那样,全是实木家具,看起来线条比较生硬。新中式风格则是中式风格和现代风格融合的产物,它的格调沿用了传统的中式元素,带着典雅的感觉。

客厅吊顶、家具等方面又采用了时尚的元素,比如璀璨夺目的吊顶,柔软舒适的布艺沙发。整体搭配呈现出流行、简约、素雅、清新的风格。
(餐厅)

新中式为了迎合现代人的审美需求,在色彩和造型上都会有所改变,色彩硬装方面呈现以淡雅基色为主调,辅以深色系的点缀为辅,呈现以中国山水画式的点晴手法,再赋予禅意般的意境韵味达到丰富空间的表现方法,软装家具方面色彩传承古老色系基本保持不变。
(茶室)

更多变化是在造型上突显简洁明快的呈现方法,多用简单线块组成家具造型,简略了传统粗大壮硕块面的成型组合方式,达到了协调硬装完美呈现的表现方法。
(卧室)

新中式风格体现了中国人的含蓄、内敛、唯美以及太多的美好向往。新中式风格的设计还需要要融入到现代化的环境中,这也是对于传统中式风格的另一种诠释。
新中式装修风格最大的特点就是在之前传统中式古典的基础上,多了一份现代风格的简约,有一种细腻的文化气息,同时还有一种现代的时尚元素的掺杂,除去刻板传统的标签,新中式的美有一份深入骨髓的深沉和优雅。