人生中的第一个搭理我280平排屋别墅#空间美好设计
都都装饰(萧山店)
2021-12-21

1、厨房面积小,比较狭隘,平时经常会有朋友来轰趴,希望能拥有一个大些的厨房;
2、业主平时比较喜欢一个人带着喝喝茶,练练字,希望在现有空间内规划出一个茶室。



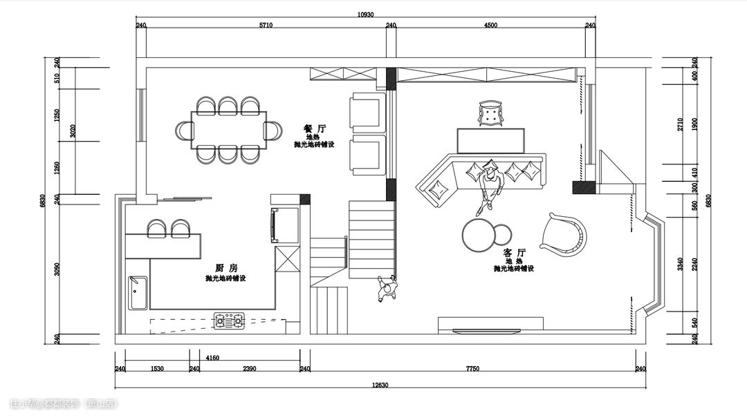
1、将厨房的阳台内包进来,开放式厨房使整体空间更宽敞明亮,增强互动性;
2、主卧阳台内包进来,规划出一个小型休闲区;
3、露台加顶,根据业主的生活习惯,规划出一个禅意十足的茶室。

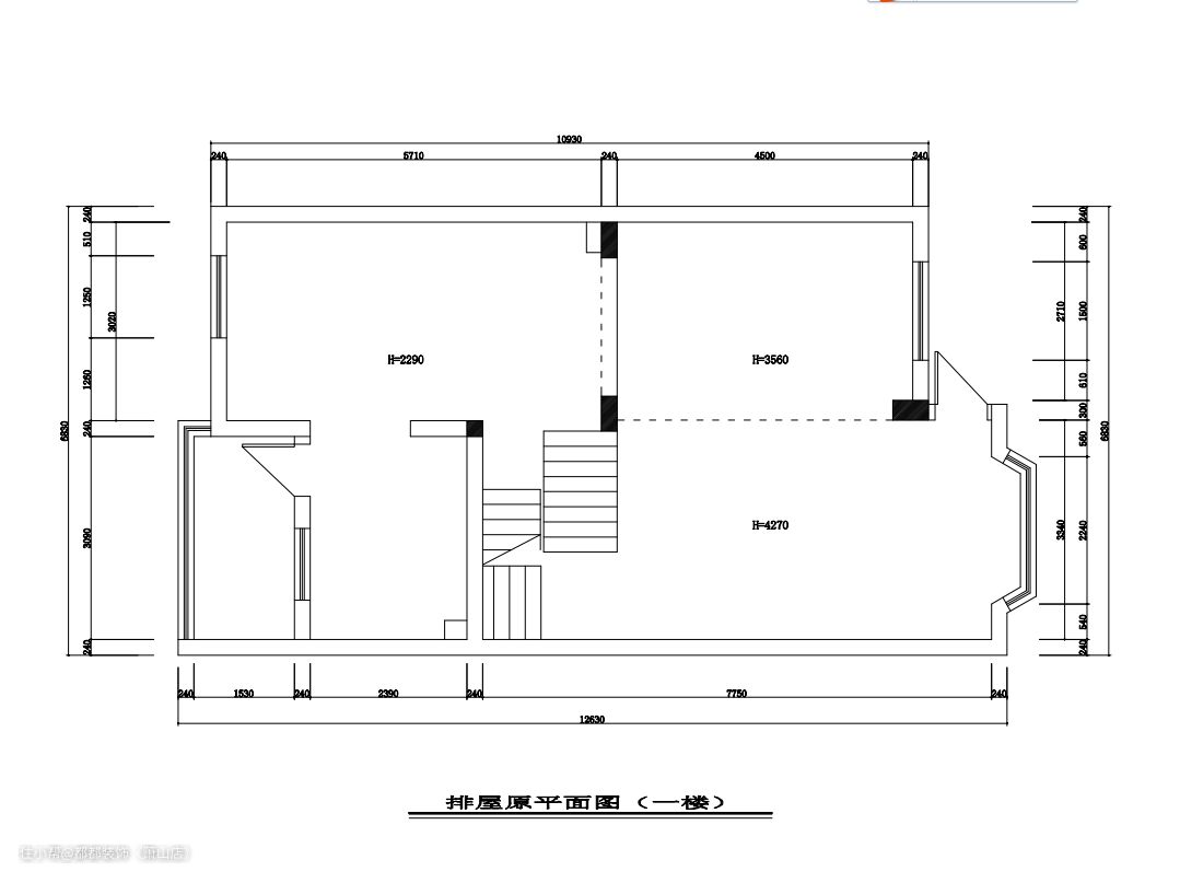
一楼格局比较特殊,是个小跃层。下方是书房和客厅,上方是餐厨,空间与空间之间互不打扰的同时,也实现了连贯和共享。

典雅、浪漫,摩登集合于一体,家具的选择大多为意大利品牌,皮质沙发轮廓明显,温暖柔软,配以温柔的獭兔毛保证,幸福的滋味由此而生。

客厅整体以开放式呈现,视线上增加了空间感和通透感,整体风格素雅极简,禅意的原木与现代时尚纹理,相互交错衍生出一种高级感。




轻奢风书桌自带设计感,简约不简单,为空间添加高级感。

将阳台包进客厅,构筑出一个放松的小吧台,透过大面积的落地窗,阳光倾斜而入,用光影构建出温柔而有力的空间氛围。

实木纹理柔和舒缓,带着漫长岁月的生命力,低饱和度的家具配色,清爽简洁,在这样的氛围中用餐仿佛置身于自然中,辛劳一天的身心得以解放。




整体白色开放式厨房,橱柜顶天立地,嵌入各种电器,与白色墙体融合在一起,视觉空间毫无压抑感,岛台的不仅可当做操作台,还可以用餐,简单大气。



一堵实木背景墙成为了衣帽间和卧室的隔断,开放式的空间视觉上清爽大气,阳光从两扇落地窗外照进室内,更显得原木暖意十足。

简约实木的原木风卧室剔除繁琐设计,用线条勾勒出木质的精致与温馨,呈现出一种返璞归真的优雅生活氛围。




细节处看似漫不经意的装饰,不经意间温暖人心。

阳台包进卧室,面积整体扩大,不论是白日看书,或是夜晚看着窗外万家灯火品酒,独自沉浸在光影律动的世界里放松人心,治愈感油然而生。

云想衣裳花想容,实木梳妆台简约百搭,储物格整齐有序,并以简洁的手法,传达出专属的优雅视觉质感。

深浅不一,张弛有度的高级灰调从床上蔓延开来,传递出高级宁静的居室氛围,莫兰迪蓝色抱枕、窗帘、沙发穿插其中,给予空间浪漫的生活情调。

虽然业主是单身,但提前预留了儿童房,宽敞明亮,整体色调以蓝色系为主,简单的云朵图案增添了几分童趣,营造出舒适放松的空间氛围。


次卧为老人房,整体装修去繁留简,简约淳朴,整体色调选择了让人放松的张蓝色和白灰,清雅素净,再配上沉稳的木质地板,令空间散发出自然之美



不论是独自,还是与三五朋友相聚,饮茶听雨都别有趣味。原本空闲的露台,设计师加顶规划成了茶室,柔和色调的墙面有着粗糙质感的肌理,实木茶桌沉稳大气,刚中带柔,整个空间弥漫着佛道的禅意。

卫生间做了干湿分离处理,灰色仿大理石地砖是个性与低调奢华的碰撞,典雅浪漫的浴缸则是享受生活的证明,在狂飙突进的生活里给自己一个放松身心的角落。


白色储物柜承包了阳台区域的收纳需求,底部预留空间,嵌进了洗烘机,洗晒功能全部得到实现,一台跑步机让生活习惯更健康。