深圳夫妻拒绝过度装修,坚持“穷装”90㎡新家,入住反而舒心
甜茶的极简生活
2021-12-22
很多人在装修房子时,都会陷入过度装修的误区,虽然钱没少花,装修效果却不尽人意。真正优质的装修,应该从居者需求出发,通过设计来提升人们的生活品质。
本期要为大家分享的,就是一套非常优质的装修案例,坐标深圳。屋主是一对新婚夫妻,在去年买下了这套90㎡的新房。对于装修,他们有着一致的见解,注重实用性,拒绝奢华浮夸的过度装修。房子的完工效果也很符合夫妻二人的心意,全屋极致简约,宛若“空无一物”,场面高级又治愈!
▲装修实拍图
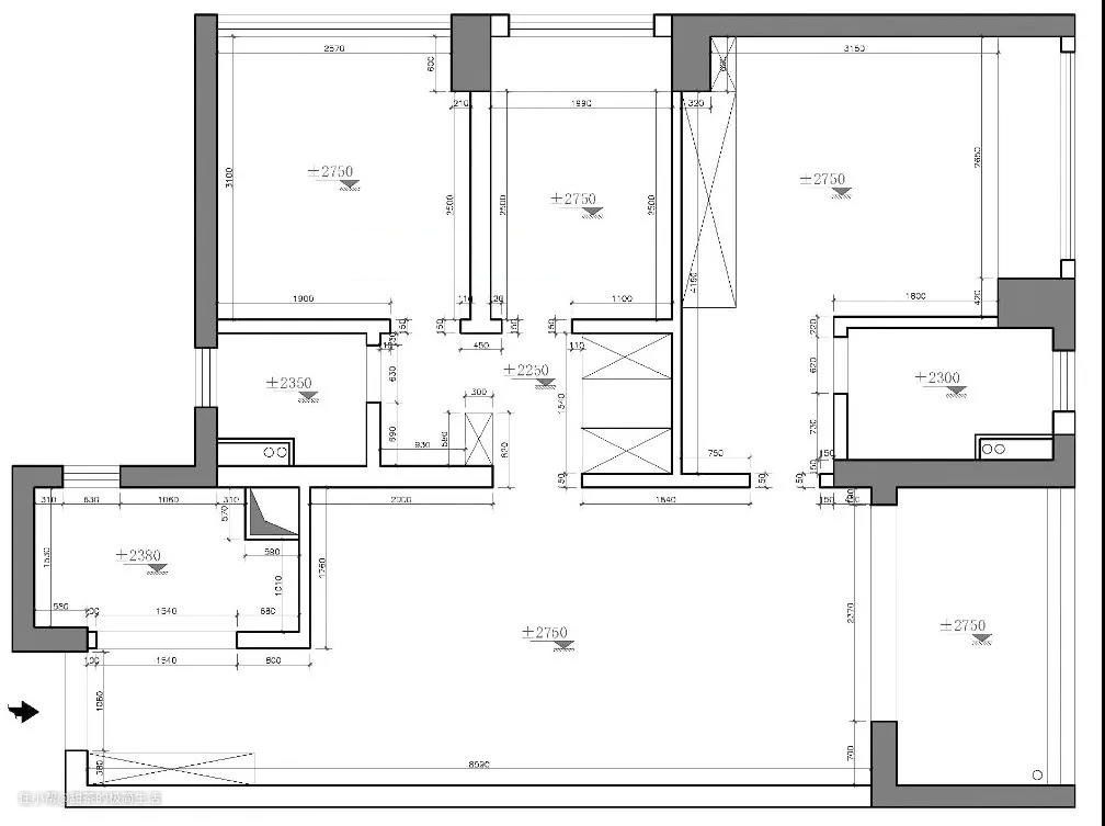
//户型分析//
整屋面积约90㎡,是三居室的户型,格局比较方正。客厅、主卧朝南,采光不错,而且室内的承重墙比较少,易于设计师调整布局。缺陷也比较明显,就是每个房间的面积都很小,这也是紧凑型三居室的通病。

▲户型平面图
//设计亮点//
①拆除厨房的非承重墙体,改做开放式厨房,提升入户区域的空间尺度。
②阳台和客厅之间不做隔断,以提升公共区域的视觉空间感。
③全屋规划隐藏式收纳,将储物空间化零为整,并降低柜体的存在感。

▲装修平面图
玄关
在原户型中,入户玄关比较狭窄,被厨房的隔墙占去了很多空间。设计师拆除了厨房的非承重墙体之后,也提升了入户区域的空间尺度,并在入户门的右侧,规划了顶天立地的嵌入式收纳柜。

▲玄关实拍图
玄关收纳柜的颜色和墙面颜色相近,搭配极简按压式柜门,确保了视觉上的整洁性。柜子的底部做了悬空处理,方便屋主摆放常穿的鞋子;柜子中间预留开放式柜格,用黑色的底板做装饰,内嵌隐藏式灯带和开关插座,用来摆放装饰品和小物件,以提升回家的仪式感。

▲玄关实拍图
厨房
厨房的面积不大,隔墙拆除以后,使用面积和空间感都得到了提升。内部格局是L型的,“洗切炒”三区合理划分,动线流畅。白色的橱柜搭配黑色电器,视觉感干净清爽,日常打理也比较方便。为了不影响采光,入户左侧的吊柜做得比较薄,柜门还采用了百叶设计,方便柜内的物品通风。

▲厨房实拍图
- 厨房内的烤箱、洗碗机均做了嵌入式设计,既美观又节省空间。
- 厨房的中央增加了中岛吧台,可作为操作台面的补充。

▲厨房实拍图
餐厅
餐厅与厨房是一体式设计,原木餐桌紧挨厨房中岛摆放,从视觉上形成了空间的延伸。为了契合整屋极简风装修,餐厅取消了吊灯的配置,用筒灯进行代替,也能减少层高上带来的压挤感。

▲餐厅实拍图
设计师利用餐厅侧面墙,定制了白色的餐边柜,分为吊柜和矮柜,中间预留出冰箱的位置,一点空间也不浪费。矮柜的高度约1.2米,是根据屋主二人的身高来选择的最佳尺寸,台面空间可作为吧台来使用,上面整齐地摆放着咖啡机、榨汁机等小电器。

▲餐厅实拍图
中岛侧面靠近餐桌的部分,安装了明装轨道插座,方便屋主用餐时给手机、平板充电。

▲餐厅实拍图
餐厅吊顶的左侧,预留了一排凹槽,内嵌隐藏式灯带,一直延伸到客厅,以提升室内照明的层次感。

▲餐厅实拍图
客厅
客厅,是公共空间的视觉中间,也是入户餐厨和阳台的连接点,布局简约大气,给人一种舒适放松的感觉。室内地面大面积地采用微水泥材质,搭配奶油色的墙面,细腻温柔,将简洁干净的气质延伸到空间的每一个角落里去。

▲客厅实拍图
设计师采用了留白的处理手法,客厅背景墙不做任何装饰,沙发和电视机之间只摆放一张小木墩,为了屋主日常生活腾出更多的活动空间。

▲客厅实拍图
沙发的款式真的很惹人爱,采用了奶绒质地,奶咖色和焦糖色的豆腐块进行拼接,方寸之间流露出生活的美好。设计师还在沙发后方的墙面上,增加了一盏黑色的壁灯,晚上屋主坐在沙发上看书时,可辅助照明。

▲客厅实拍图
电视背景墙是侘寂风设计,为空间增添了一份空灵感;底部预留部分空间,可放置路由器、游戏机等物品。

▲客厅实拍图
沙发右侧的墙面,做了凹凸拱门造型,巧妙地消弱了区域之间的边界感;前面用一株绿植进行点缀,宛若一幅自然装饰画。

▲客厅实拍图
阳台
阳台和客厅之间未做隔断,两个空间是连通的状态,延伸了公共区域的使用面积。为了减少横梁带来的压抑感,设计师特意做了弧线处理,让原本突兀的横梁变得更加柔和。

▲阳台实拍图
阳台的宽度约2.1米,比常规的阳台要宽不少,内部功能也很齐全,兼顾了清洗、收纳和休闲等多重功能。阳台的右侧是隐藏式收纳柜,内嵌洗衣机和烘干机,满足收纳的同时又保证了美观性。

▲阳台实拍图
阳台中间的休闲区和左侧的收纳柜,加入了一些中式元素,符合男主人的审美要求。平时,男主人很喜欢坐在阳台上品茶赏景,享受惬意的居家生活。

▲阳台实拍图
书房
走廊的尽头,是面积最小的一间卧室,被改造成了书房,入口安装了透明玻璃移门,可以很好地将书房的自然光引入室内。其两侧的室内门,也是无框隐藏式设计,简约大气,减少了走廊的拥挤感。

▲书房实拍图
书房原本自带了一个小飘窗,被设计师直接拆除了,扩大了书房的使用面积。

▲书房实拍图
平时,屋主夫妻都有居家办公的需求,书房对于他们来说真的非常重要,安静舒适的办公氛围,也能有效提升他们的工作效率。

▲书房实拍图
主卧
设计师更改了主卧的入口,并借助了一部分走廊面积,以实现步入式衣帽间,满足了屋主夫妻大量的衣物和被褥的收纳需求。柜子采用顶天立地的设计,原木色的柜体和木地板相契合。由于柜门尺寸较长,为了提升使用寿命,设计师在柜内增加了拉伸器。

▲主卧实拍图
调整之后的主卧,布局更加合理,睡眠区域也变成了方正和谐的空间。考虑到女主喜欢睡前阅读,所以床头特意做了软靠背的设计,靠在上面非常舒服。

▲主卧实拍图
次卧
次卧目前是作为客房来使用的,内部只简单地规划了床和衣柜,后期会根据需求调整为儿童房。室内大量运用了木质元素,在阳光的沐浴下,氤氲出质朴舒适的居家感。

▲次卧实拍图
柜子依然是顶天立地的设计,顶部连接着中央空调出风口,简洁利落。

▲次卧实拍图
【本期总结】
回顾本案,整屋设计虽不奢华,却处处流露着高级感。最重要的是实用性很强,屋内的每一处设计都围绕着夫妻二人的生活需求,真正实现“越住越舒服”!如果你也喜欢本期内容,欢迎点赞收藏!