320平现代轻奢风,星空顶的设计,孩子看了都说好!
HA艺墅设计院
2021-12-22
本案例是一款以现代轻奢风为设计主线的家装案例,业主就是做家居建材这一行,所以对建材的使用和后期的装修也有一定的了解,业主希望在后期的家装过程中,能够让各功能区都拥有自己独特的特点,特别是孩子的房间,因为孩子便是业主所有的中心。设计师根据业主的要求,采用现代轻奢设计主线,在儿童房融入了星空顶的设计,让业主和孩子双双拍手称赞。
基础信息
设计面积:320平方米
设计风格:现代轻奢风
所用材料:浅色大理石瓷砖,蓝色护墙班,星空顶墙纸,原木装饰板,亚克力高光板等
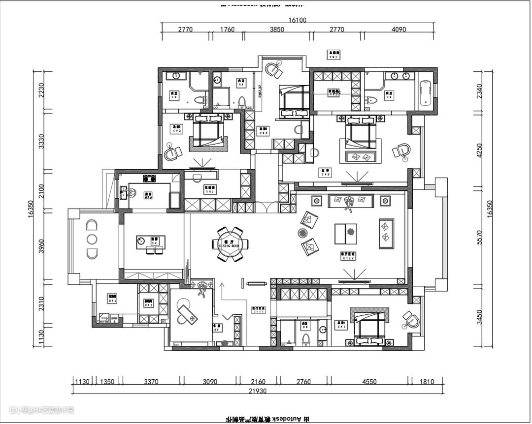
01原建图

平面布置图

从平面布置图中可以看到,房间建筑中间留有一处南北通透的设计,分别是休闲阳台、客餐厅还有书房,几大功能区能够让室内的空气流动更加畅快,其他卧室、衣帽间、卫生间等各功能区的设计错落有致,将房间内的空间最大化利用起来。
02玄关

进门玄关处地板铺贴了一款深灰色上面带有白色斑点的大理石地砖,密集的白色斑点让玄关处的地板看起来更具特色, 左侧墙面采用雾霾蓝色调的墙纸进行铺贴,色调大气温和, 中间配备了挂衣钩能够随手将外套放在这里。
另一侧打造了玄关柜,封闭式的柜门内部有收纳区域和鞋柜, 下方留有空白空间,配备了灯带进行补光,可以放置拖鞋等物品。
03客厅

为了让房间整体空间显得更加宽广,客厅和餐厅两大功能区的吊顶没有再做区分,而是二者形成整体,房间没有设计主灯,而是采用简单的筒灯进行补光,配备了中央空调用于取暖。
电视背景墙两侧采用深灰色饰面板搭配而成,中间采用白色带有花纹的墙砖作为电视背景墙,背景墙面积较大,中间配备了电视,下方打造电视柜,设计成为多个横向抽屉,可以将一些电器电线收纳到抽屉内,保证观影区的整洁干净。
沙发背景墙中间做了一幅中式山水画的装饰,浅蓝色色调的远山加上大量的留白处理融入了中式的元素,两侧原木材质饰面板让客厅看起来更显温馨。
沙发采用直排形式,布艺材质更显柔和,金属黑色调的框架 单人沙发十分潮流时尚,砖红色的配色也让色彩更加丰富。
04餐厅

餐厅的色调基本沿用了客厅的主色调,地板采用带有白色斑点的黑色大理石瓷砖通铺,地砖采用的是长方形结构,让客厅在南北纵向得到延伸拉长,整个餐厅背景墙的墙面采用多种材质进行铺贴装饰,其中有原木材质的饰面板,有浅灰色的墙布,还有灰色的斑点状墙砖和白色大理石墙砖,多种材质组合让餐厅看起来视觉效果丰富,不显单一。
餐桌选用圆形款式,上方配备了简约的餐厅灯,金属光泽十分好看,餐桌椅背处做了镂空处理,对餐椅进行了减重,拿取起来更为方便灵活。
05主卧

主卧为了营造更加舒适的休息环境,墙面大面积采用浅灰色 墙布进行通贴,没有做其他过多的装饰,看起来墙面整洁美观,其中有一幅亮色的壁画直接放置在地上,既增添了色彩元素,随意的放置又更显自然。
床头背景墙采用棕色的饰面板进行装饰,在床头处又打造了浅灰色墙面,一款包围式的床头倚靠上去更加舒服。床尾处设置了换鞋凳, 并且配备了电视一台, 能够收看电视节目。下方配备了电视柜用于收纳物品。
06次卧

次卧双方做了方形吊顶,采用石膏线做出勾勒,配备了一款水晶灯管的,水晶吊灯灯具晶莹剔透,犹如管制乐器又像是 一盏风铃,很是漂亮。床尾整面墙打造成为衣柜,柜门采用亚克力高光板材质,中间留有一处吧台,配备了电视机,满足观影需求。下方还留有一处缝隙,可以随手将换下的拖鞋放置在里面,保证次卧的干净整洁。
07儿童房

儿童房的墙面整体以深棕色的深面板和浅灰色的墙布通铺而成,地板采用木地板的设计,在床头一侧还挂有多幅现代轻奢感的挂画,用于空间装饰。儿童房最大的设计亮点,便是那让人喜欢的星空顶,蔚蓝色的星空看起来令人向往,符合孩子灵活爱动的特点,一款框架式主灯和星空顶相配合, 看起来更加美观。
08书房

建筑内部设计了书房一处,沿着建筑的走势,靠墙打造了多处书柜和收纳柜,墙体和柜门采用为蓝色色调的墙布进行通铺,部分柜门采用玻璃材质,还有留有的开放式的储物格用于放置一些工艺品。靠墙直接打造出一处简易沙发,靠在上面读书也是十分惬意。中间设置了一处写字台,框架式的结构不显笨重,斜向的放置也体现出随意的设计理念。综合看上去,这是打造的集现代美感和书香与一体的现代化书房。