180平现代轻奢风,灰黑色系运用,营造低调朴素居家环境
华浔品味装饰集团
2021-12-25
本案例是一款以现代轻奢风为设计主线的家装案例,业主是一对中年教师,家里有一个女儿,业主希望自己的新家能够装饰成朴素无华、低调内敛的感觉,并且要打造出一个女儿房,为女儿提供独立生长空间。
设计师根据业主要求,采用现代轻奢氛围设计主线,全屋以黑白灰三色为基础色调,不追求奢华的元素体现,然后低调沉稳贯穿设计始终,业主很喜欢设计后的风格和效果。
基础信息
设计面积:180平方米
设计风格:现代轻奢风
所用材料:灰色墙布,大理石地砖,灯带,硬包,深棕色饰面板等。
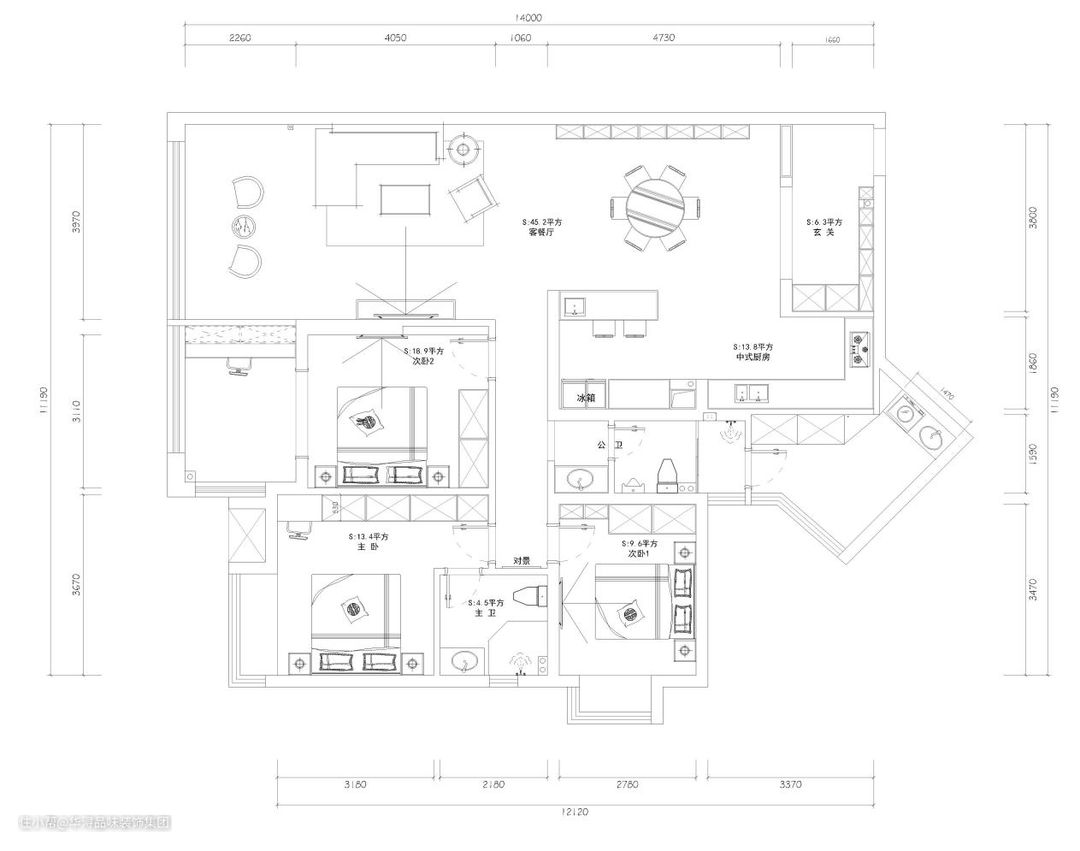
01平面布置图


从平面布置图中可以看到, 设计师压缩了三间卧室的空间, 释放出的空间用于客厅、餐厅和厨房等公共活动区域的改造,让休息区域更加紧密,让活动空间更为充足。
开放式的厨房设计让客餐厅等位置更加通透,拐角处的不规则建筑走势合理设计成一处卫生间。
02客厅

客厅配有向阳休闲阳台一处,二者之间没有采用推拉门等 进行隔开,让客厅的空间更为通透宽广,只是在上方做了两处方形吊顶用于空间的划分。
电视背景墙整体采用深棕色饰面板进行底色的铺垫,中间采用白色带有黑色花纹的大理石墙砖进行铺垫,黑色的花纹彰显出自由不拘束的设计理念, 让观影区显得更为好看。电视一侧顺势打造了一处开放式的储物格,隔断交错设置,很是美观、实用。
阳台靠墙也同样打造了开放式的储物柜,两侧同样的设计 既能形成呼应,又能增加储物空间。

沙发背景墙主要采用浅灰色乳胶漆进行墙面涂刷,太空漫步的色调时尚而又温馨。在墙上悬挂了方形和圆形的两处装饰画, 螺旋状的画面图案设计,既为客厅增加了时尚元素,又让墙面看起来更有层次感。
沙发选用直排样式,布艺沙发材质的选用更有居家生活感, 单人沙发座椅配置更为灵活方便。茶几选用一款框架式的结构,白色大理石台面更便于卫生的打扫。沙发上配备了蓝色和砖红色色调的抱枕,对空间进行了色彩点缀和升华。
03餐厅

餐厅地面采用黑色花纹大理石地砖进行通铺,形成了上下黑白呼应的设计效果。在餐厅和客厅交汇处设置了垂线型壁灯,既能补光拥有实用性,又能起到装饰的作用。餐桌是长条形款式,配有六把浅棕色的餐椅,餐椅采用包围质感的设计,非常人性化。

餐厅一侧靠墙打造成为满墙的酒柜,酒柜上下做了吊柜和 收纳柜,采用深棕色饰面板进行打造,中间留有空间设置一处吧台,吧台背景墙采用灰色大理石墙砖打造而成,配备了洗手池,在就餐前的洗手更为方便。
靠墙则是设置成为储物格,配有大玻璃门,灯带在内部打光,让工艺品的展示更显美观好看。餐厅和一旁其他功能区的交界处设置了金色色调的金属质感镂空隔断,即起到了功能区划分的作用,又让视线不被阻隔,让空间更为通透。
04主卧

主卧上方做了方形吊顶,沿着吊顶四周布置了一圈黑色金属质感的灯带,形成白黑撞色效果。床头背景墙采用竖向条纹 饰面板和棕色护墙板共同搭配而成,在背景板上配置了黑色动感装饰品,提升了主卧美感。
主卧配有窗户一处,能够增加室内采光, 若室内光线过于亮, 后期业主可以增设窗帘, 能起到隐私保护作用。床尾处设置了换鞋凳,衣物更换更为方便,墙角处设置了大型落地灯,为主卧起到别样的装饰作用。
05女孩房

女儿业主的宝贝,所以在女儿房的设计上重点突出。首先是女孩儿房留有面积较大, 配备了一处休闲阳台,能够保证孩子的休息娱乐空间充足。然后整屋采用白色和粉色作为基础色调,在背景墙上做了双色的拼装搭配,在背景墙正中间位置打造了圆形的装饰品,让女孩房看起来更为温馨。
然后房间设置了一款羽毛状的主灯,灯具非常好漂亮好看,也成为室内视觉上的焦点。在床尾处房间一角还配备了大型试衣镜,女孩子可以在出门前梳妆打扮,以最美好最漂亮的形象去迎接学习生活。女儿看了设计图后非常喜欢。