深圳装修:76㎡现代简约风,大改两房结构两厅不变,空间不压抑
深圳东易日盛南山店
2021-12-30
面积:76平
楼盘:化工大院工队
户型:三室两厅一卫
风格:现代简约
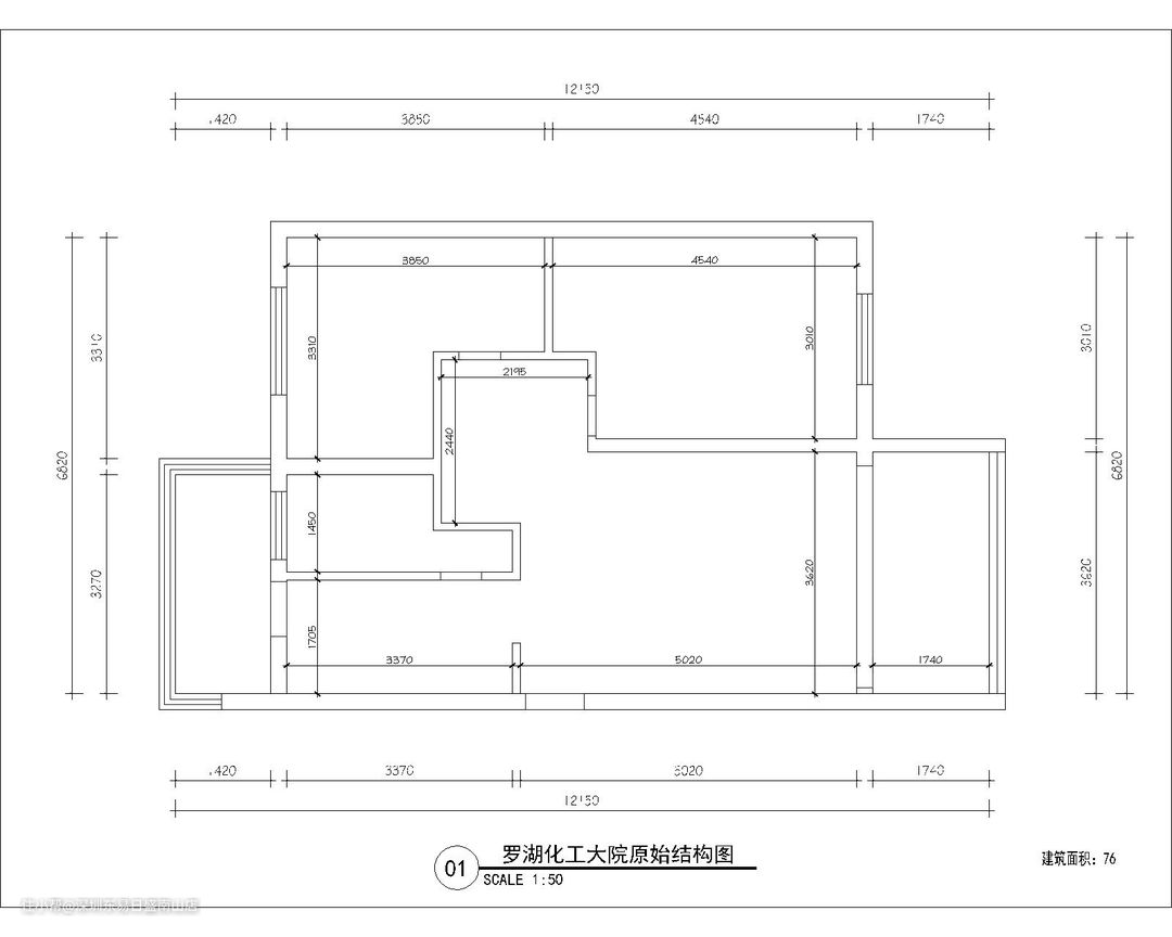
原始结构两房两厅一厨一卫,原始结构已经不能满足业主一家五口人居住,需要两房改三房,同时还是保留两厅,这是本期的一个难点

餐厅区域太鸡肋,导致进入房间的动线非常不舒服,卫生间原始也不合理,

结合三房的需求,重新划分了区域,保证了每个空间功能足够舒适的同时,将立面视觉做到丰富,后期从软装上装饰,可以保留餐厅区域,餐桌可以做成抽拉的,平常不用就收起来,把空间留给孩子来玩耍。

合理规划了主卧空间,大衣柜贴墙,使整个空间不压抑,空间大面积留白,给人很干净,很整洁。
