110m²的简约风,用最简单的颜色打造最纯真的美!
华浔品味装饰集团
2022-01-04
业主是一对年轻的夫妻,这套房子是用来专门供孩子上学用的。女主人特别注重对孩子的教育,希望房子装修的简单一点,但一定要保证孩子有足够的学习空间。
设计师摒弃了传统的装修布局,大胆想象,用最简单的颜色打造了一个不简单的现代简约风格。
基础信息
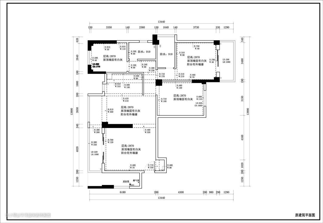
建筑面积:110平方米
项目地址:南安市
设计风格: 现代简约
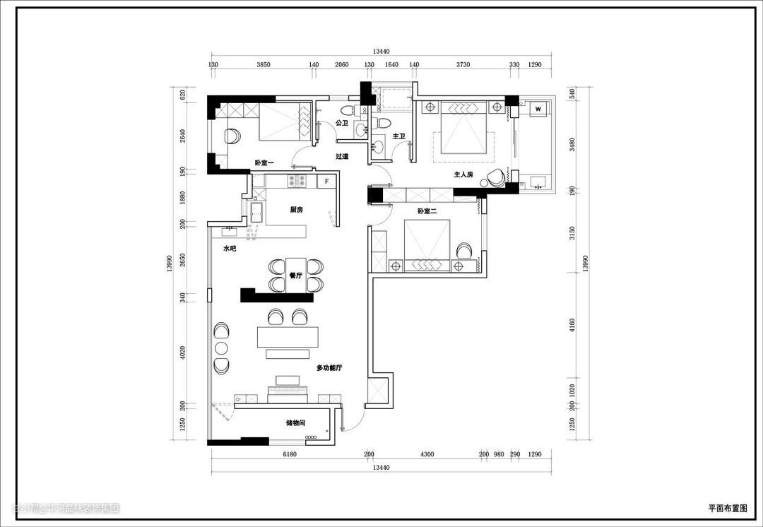
户型
因为是学区房,主要的目的是为了孩子的学习。所以将原本客厅的位置改造成了一个学习区域,方便孩子的学习。
把原本的阳台封起来之后,拆除了原有的推拉门,将阳台纳入到客厅和餐厅里面,让空间显得更宽阔,同时视野和采光也变得更好。
原本厨房位置不是很大,设计师巧妙地设计了半开放式厨房,扩大了使用空间;主卧室和次卧室之间把原本的隔墙拆除了,用嵌入式衣柜来分隔两个区域,满足了储物的同时让主卧室的面积变大。


01客厅
用书桌、书柜取缔了传统客厅的沙发、电视,将原本的客厅打造成一个大大的学习区域。用原木色的地板代替了瓷砖,让空间变得更加温馨。而且地板没有瓷砖那么冰冷,即使赤脚走在上面也很舒服。在地板上面随便放上一张地毯,就成了孩子的娱乐天地,可以在上面拼乐高,玩飞行棋,游戏学习两不误。
中间放置了一张长方形的大书桌,平时孩子放学之后可以在这里写作业。业主平时也可以在这里办公。墙面做了两组对称的原木色书柜,开放式的设计方便书籍、资料的拿取。
两组书柜中间搁置了一架钢琴,女主人每天晚上的必修课就是带着孩子在这练习钢琴,优美的琴声回荡在空中,月光透过窗帘洒在地上,整个空间形成一幅和谐美妙的画卷。

02餐厅
餐厅和客厅原本是两个不同的区域,现在将阳台打通了,两个区域仿佛是一个整体。通过中间的一堵隔墙将两者分开,保证了每个区域的功能性和隐私性。
餐厅的位置不是很大,靠墙的位置放置了一个四人的长方形餐桌,平时就一家三口居住,也满足了使用。
餐桌顶上圆球组成的吊灯是整个空间的亮点,大小不一的圆球给人一种俏皮可爱的感觉,活跃了用餐的氛围,让吃饭变成一种享受。

03厨房
厨房采用了现在装饰比较新颖的半开放式的设计,平时大部分的时候可以打开做成开放式的厨房。
偶尔需要炒菜,有很重的油烟的时候,可以将折叠的钛合金玻璃门和折叠的钛合金玻璃窗关起来,形成一个封闭式的厨房,避免油烟弄得全屋都是。一个厨房同时具备了两种使用方式,大大增加了厨房的实用性,也方便了打理。
U字形的橱柜完全满足一家三口的使用,同时将折叠窗下面的橱柜延伸到了阳台上面,在阳台的位置做了一个洗菜池,平时洗水果,或者饭前洗手都很方便,不需要跑到洗手间去了。

04主卧室
通过户型的改变将主卧室的面积扩大了,显得不拥挤。顶面选用了无主灯的设计,让空间更加开阔。
墙面只用油漆简单的做了一个调色,没有过多地装饰线条让空间显得简洁。浅灰色的墙面挂上几幅装饰画温馨又和谐。
主卧自带了一个阳台,平时大都用作晾晒区,所以阳台没有封起来。卧室和阳台之间做了一道深灰色钛钢玻璃门推拉门,平时可以将门打开,让新鲜的的空气进入室内。
双层的中空钢化玻璃,睡觉的的时候又能起到隔音降噪的效果,即使生活在繁华的大都市,关上门也可以远离车水马龙,拥有一份自己的宁静。

05儿童房
儿童房的面积不大,用榻榻米代替了单人床。靠窗的位置做了一组书桌,小主人晚上可以在这写写作业,看看书。
原木色的书桌连通衣柜,两者结合成一个整体,纯白色的衣柜门搭配原木色的柜体干净的色调搭配就想孩子的内心一样纯净,没有一丝杂念。
榻榻米旁边的墙上做了一个世界地图的装饰,孩子可以通过它来了解世界的各个地方,增长知识,同时对墙面也起到了一定的装饰作用,用知识打造了一片别有洞天的景色。
