深圳星河丹堤,别墅装修案例,户型图1000平,现代轻奢风格
德派装饰&君尚软装
2022-01-19

项目地点:星河丹堤别墅
项目地点:深圳市龙华区
项目面积:1000㎡
风格定位:现代轻奢风格
服务模式:一站式整装
设计理念
时尚,优雅,清新,大气。
以现代轻奢的设计手法,展现前卫的设计格调。
本案以优雅的设计风格演绎精致时尚的现代轻奢风格,化繁为简,在现代风格基础上,通过一些精致、时尚的软硬装搭配凸显质感的风格。结合屋主需求,设计师多采用带有高级感的中性色,来演绎一种“低调的奢华”,令空间质感更加饱满。
现场照片

一层入户玄关
玄关以深色且亮、镜面特性的石材铺陈地面,与白色天花板、浅色石材肌理的壁面,交织安定沉稳人心的气息,且铺设出贯串公领域的廊带,成为串连室内的轴线,并放大宅邸尺度,辅以金属黄铜材质的设计元素点缀,奠定了空间轻奢的基调,整体质感非常高级。顶部的黄铜吊灯,凸显空间质感与奢华感,红色软装的运用也给空间带来了独特的气质。

一层会客厅
窗明几净、宽敞怡然。落地玻璃窗引入自然光,在自然光线中,整个会客厅通透明亮、熠熠生辉。延续玄关装饰风格,墙地面采用天然的大理石纹理,营造出通透且简洁的空间氛围,精致的线条、和谐的色彩以及顶尖的材质,碰撞出独特的时尚会客厅。

二层主卧
主卧移植精品套房的灵魂,开放维度中承载了休眠、更衣与阅读起居。温暖的色调搭配,柔软的床品、地毯,营造出舒适放松的睡眠氛围。
以白色为主的空间简约大气,干净又耐看,不易产生审美疲劳,带来舒适的生活体验。
个性化定制柜体,满足收纳需求,井然有序的置物架让空间干净利索,结合氛围灯光,让工作、阅读都有不同的舒适体验。

三层客厅
中间镂空,双层楼间的超高视觉,给予空间更多的深邃感,楼梯皆以金色不锈钢包边+大块清玻围合防坠护栏,保证安全性也使空间更加通透。
金属、皮革、轻木质都是营造轻奢风格的绝佳元素,玻璃材质把空间营造的很精致。充满艺术感的吊灯,造型别致的摆件,柔软的布艺皮艺沙发……多种材质和谐搭配,打造富有腔调的轻奢空间。

四层小孩房
小孩房以明朗色彩呼应活力四射的青春。几何图形拼接的背景墙,与设计简约的卧床和谐一致,克制有序,蓝与黄的点缀色为稳重的空间注入鲜亮轻快的活力。

五层主卧室
空间以简约纯净为主,清简的线条是岁月的痕迹,淡雅的色彩是生活的滋味,蓝色床与床头背景、窗帘为空间带来静谧,精巧别致的金属装饰线条带来活泼的氛围。落地窗旁摆放米白色沙发躺椅,屋主可以坐在这看书,享受音乐,后面的薄纱窗帘,既能过滤光线又不会显得沉闷昏暗。

地下室文娱区

影音室、台球厅既是业主放松、休闲的好去处,也是高品质时尚生活的重要体现。在台球厅打打球,带走一身工作的疲惫,在影音室放松心情,与家人共度浪漫时刻。

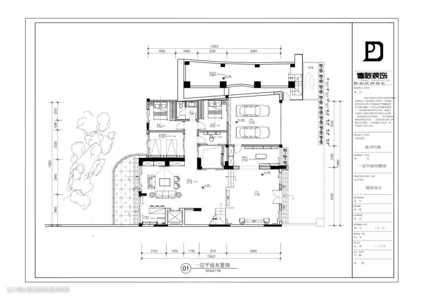
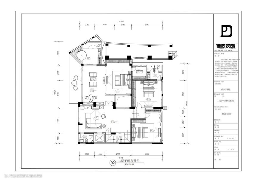
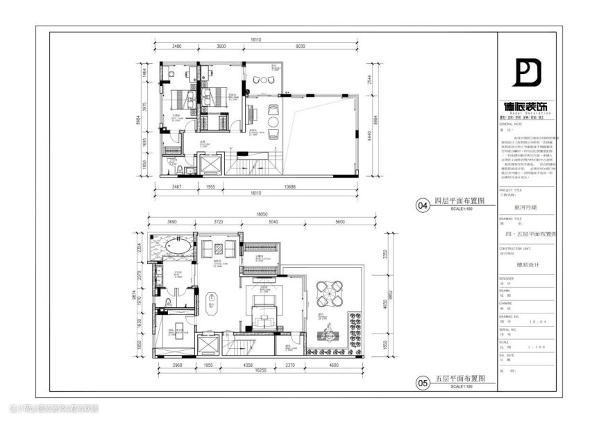
平面布置图
一层

二层

三层

四、五层
