牺牲两间卧室换一个超大餐厅的魄力,你有么?
居然之家自营家装
2022-01-24
户型:复式
面积:156㎡
常住人口:三口
所在城市:北京
施工费用:12万
主材+软装+家电:48万
装修方式:乐屋个性化

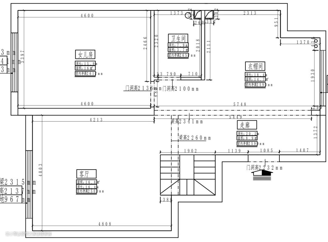
▲▲一层原始图

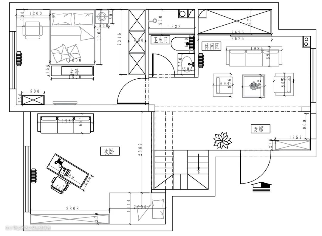
▲▲一层布局图
业主陈先生的房子是一套复式,上下两层,平时只有三口人,偶尔会有老人来。业主对装修的要求是:在省钱的基础上要有格调。满足基本需求就好,希望有茶室、书房、每个家人的独立空间。

男主人热情好客,交友广泛,喜欢家庭聚会。因此在厨房和餐厅规划上,设计师花了一些心思。将一层原来的厨房,隔出一半做了客卫+洗衣房;另一半墙体拆除,做成开放厨房,打通原来的卧室二和卧室三,连成餐厨一体。就餐空间宽阔,非常适合家庭聚会。

▲▲餐厅效果图
设计师非常大胆的牺牲掉两间卧室,改造成了西厨+餐厅,在寸土寸金的北京可谓是一件非常“奢侈”的事情。空间布局改造,要充分考虑业主需求。本案业主家里平时并不需要那么多间卧室,没有必要为了一年也许只来一两次的“客人”而留着"客卧"。这个大胆的改造,给男主人带来了利用率极高的宽敞餐厅。

▲▲餐厅实拍图
我们去采访的那天,业主正在家里招待客人,男主人非常开心的给宾客介绍我们的设计师,对他的设计非常满意。厨房门口有一排大大的储物柜子,嵌入蒸烤一体箱。旁边操作台可以做个水吧,放置小家电,使用起来更方便。吊柜下方预留灯线,安装灯带,明亮温馨,更具氛围感。

▲▲餐厅实拍图


▲▲隐藏床铺
大理石台面+实木桌腿的餐桌造价昂贵,业主陈先生非常喜欢,“下血本”购入,足可见热情好客的男主人是多么的热爱聚餐。餐厅的另外一面是个酒柜,放置男主人的酒和杯子。左边看上去是个柜子,其实是个隐藏式床铺。拉出来就可以变成床,偶尔家里来人也可以住。

厨房的推拉门,上吊轨,下面没有轨道,打扫更方便。看上去似乎没什么特别?但是当推拉门推到一边时,却可以继续向内推,变成平开门。


▲▲厨房推拉门,关上、打开状态


▲▲厨房门平开状态


洗衣房
客卫
原厨房的一半改成中厨,另外一半空间改造成了这间洗衣房+客卫。纯白色的整体空间,看上去干净整洁。一整面墙的定制柜子,收纳清洁用品和打扫工具。跟满是洗脸盆、扫帚、拖把的乱卫生间说再见!
打扫用具


家政柜
柜子里预留了电源供吸尘器充电,柜体板搭配一些收纳工具,可以把吸尘器配件悬挂起来,一目了然,方便拿取。


洗衣机柜
洗衣机柜的上面柜子里预留了水口和电源,柜子下方角落留有下水口,所有管子都隐藏在柜体里,拯救“强迫症”。上面的柜子里可以收纳洗衣液和清洁用品,强大收纳力。


客卫旁边的这个“门”很特别,看上去更像一块墙面装饰板,没有门把手,整体性更强。


向内推开,首先映入眼帘的是洗漱区,尽头是淋浴+马桶区域,左手边是主卧门。


原来的楼梯朝向客厅的方向,给客厅形成压制感,令居住者感觉压抑、不舒服。设计师改变了楼梯的朝向,这一神来之笔,既宜居舒适,又多了一组入户玄关柜,收纳鞋和外套。


▲▲客厅
陈先生的一个基本诉求就是尽量控制预算,但是又不能降低品质。所以设计师并没有在墙面装饰上花费太多预算,以简洁大方为主。全屋胡桃木色的定制家具,既符合业主年龄的沉稳大气,又不像纯实木家具那么老气。

▲▲二楼原始图

▲▲二楼平面布局
原来客厅上方的挑空位置,被设计师加了钢结构建成了书房。男主人喜欢书法,全屋到处可见还没来得及悬挂的收藏品。



书房在二楼相对安静,在角落放置一个单人床,累了的时候也可以休息一下。设计师将胡桃木色系融入现代家具设计中,色调没有黑白灰的轻佻,细腻的木纹也保留着时光的痕迹,时尚且有质感!

男主人喜欢喝茶,在二楼专门设有茶桌,提前走好上下水,使用起来非常方便,陈先生对此设计赞不绝口。二楼外面还有一个露台,夏天的时候还可以烧烤喝酒,宴请宾朋。


▲▲二楼卧室


二层
卫生间
业主陈先生有很多装修行业从业的朋友,经过了多次对比,从设计、产品、施工工艺、环保等多方面进行了比较后,最终选择了居然装饰。尽管我们在价格上并没有优势,但是毕竟房子是要长期居住,舒心、省心最重要。
业主陈先生爽朗的笑声和直爽的性格给我留下了深刻的印象,人生就该是这样,在舒适的家中与三五好友,偶有小聚,或推杯换盏,针砭时弊;或笑闹生趣,回忆往事。