三面环窗的空间,通过动线梳理,最大化引入光线
介间设计
2022-03-31
说在前面
这是一个三面环窗的项目,室内划分出房间后,光线会逐步衰减,如何把光线大面积引入室内,是我们对这个项目思考的出发点。在满足业主功能需求的同时,我们把公共空间最大化的释放,让不同空间产生联系和对话,例如客餐厅的直线互动,书房与公共区域的对话,干区与餐厅的联结,我们通过一系列动线的梳理,使每个功能空间都有自然采光的引入。
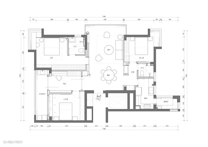
户型图

改造前原始户型的缺点:
1.入户区域没有足够的独立收纳空间,满足入户时需要的挂衣和放鞋的功能需求
2.外卫的开间尺寸较大,让原本较小的厨房操作空间更为紧凑
3.卫生间没有干湿分区,对于三代同堂的家庭,外卫使用起来极为不方便
4.书房尺度过小,放成品书桌会更压缩空间,而且位于每日都必去的洗晒阳台的动线上,行走起来更为拥挤

设计策略:
1.置换主卧的动线,让主卧衣柜不占用床侧的空间,增加主卧的开间的舒适度
2.打破传统干区的隔墙,让干区的空间跟公区空间联动互通,增加客餐厅的空间感受
3.把户型中间的书房功能做开放式处理,让孩子房和书房的空间可以利用转轴门的转动方式有机地联动起来
4.缩小外卫的开间尺寸,扩大原厨房的功能开间,增加了独立的储物间收纳
5.充分利用墙体厚度,最大化老人房的收纳衣柜
6.生活阳台的位置,我把家政区隐晦地藏起来,增加了整屋的私密性
客厅


在满足业主功能需求的同时,我们把公共空间最大化的释放,客厅、餐厅、干区、书房、阳台相互贯通,在家具的组合上,我们选择了更轻松的家具组合方式,让小空间更显轻盈感。
我们没有刻意去遮蔽空间原始结构中的梁位,而是选择性的让结构本身去承载空间的层次和情绪。机能的建构也是基于原有结构之上,穿插的层次制造力量感。在灯具的选样上,我们把控灯光的色温,控制灯具的数量,使顶部更为简洁干净。

电视背景及主卧房门由全屋木作定制统一制作,很多业主房门与衣柜采用不同的供应体系来制作,会出现尺寸衔接不上,有色差等问题,全屋统一定制可以增加定制品的精致度和品质感。我利用悬空柜子的设计让开间得到最大化地释放,利用金属包覆的处理把原建上的阳台落水管得到更好地隐藏。客厅区域的小件收纳可以更好地藏在定制电视柜中,让客厅更显干净。

虚实材质的交替,让场域有了光影的变化,随着时间的推移,切换不同的氛围感。家私的配置与质感也是由我们精心把控。用吊钟和玻璃瓶局部点缀后可增加沙发区域的生活感。

悬空的电视柜是有全屋木作定制而成,在设计阶段需要业主配合把电视机的尺寸提前预留好后,可让电视机的黑色体块更隐藏地融入电视柜,曲线柜门更好地隐藏了柜门的接缝。

自然属性材质的置入,温润了空间,让空间更显朴实,我们在块面中勾勒细节,丰富空间的层次,或碰撞,或穿透,或交融。大面积白色的艺术涂料留白,让孩子在空间中不显拘束,更方便业主打理。

电视背景中波浪造型的门板相对隐形,增加客厅小物件的收纳,非常实用,电视机的尺寸提前预留出,安装伸缩式的电视架调平至柜面齐平,让功能和美感结合在一起。

主卧门向位置的改变为书房创造了空间,我们通过设计手法将主卧房门隐形处理,与电视背景融合,打破传统固定电视背景墙的设计,让功能柜与房门,电视机,收纳三方结合在一起。 主卧动线的改变为房间创造了大量的衣柜,收纳配置大幅提高。合理地规划动线有利用空间更好地收纳,隐形门的处理让柜门和房门更好地结合在一起,让功能和美感得到更好地结合。
餐厅

客厅、餐厅、厨房的空间关系非常明朗,动线流畅舒适,最大化的将室外光线引入室内。保留了原始户型的梁位涂刷艺术涂料,让空间更硬朗。

家具的选择上也可以增加空间感,金属腿的餐椅为空间增加了质感,透明座椅使餐厅不会过于闷实。
书房

书房设计在儿子房区域,书房通过转轴门的置入使空间可开可合,承载孩子房不同的场景可能性,空间更为灵动。敞开式书架的置入结合木饰面和铁件的工艺更好地营造出空间的轻盈感。



轻薄的钢板作为书房的置物架,减少收纳空间的压抑感,同时拿取也很方便。转轴门的设计,是本案中的一大亮点,我们利用两扇玻璃转轴门,将书房空间变成可开可合的场域,打开时与公共空间形成交流,封闭时也能满足小孩有一个相对安静的学习空间。
地面材质从客餐厅贯穿至房间,铺面的延伸增加了空间视觉的连续感。空调的内机位置利用柜子的深度,将检修口预留在柜子里,风口整体定制加长,进一步延伸空间的长度,无边框风口比传统风口更为精致,且很好拆卸打理。
书房作为联结多个场域的空间,其收纳在机能上也满足了多功能,既能收纳小孩学习的书籍,也能展示女主人的收藏品,另外还有一些高柜来补充玄关的收纳。
卧室

艺术漆便于卧室墙面的打理,同时不会占用空间的使用面积,阴角处我们作了弧面的处理,弱化空间的边界感,在弧墙背面的空间同时增加了主卫空间的收纳,可放置洗面奶等小件物品。
厨房

由于承重墙的限制,厨房空间较小,我们利用走道的深度,设计了一组西厨柜,增加厨房的配置。悬空双面的干区设计,可双向使用台盆,扩大公区的视线和增加干区的利用率。
卫生间


定制金属台盆隐藏了下水管,使干区空间更干净美观,拉丝银的材质在大面积留白中跳脱出来,丰富空间的层次。地板与地砖间摈弃了常规的压条,用极细的不锈钢条来收口,细节处提高精致度。
傍晚场景

不锈钢的质感配合落日黄昏,用材质把黄昏带进了客厅,是个很不错的思路。

钢板材质与空间中的金属元素相呼应,书桌下方暗藏LED灯带,创造出温馨柔和的居家氛围,晚上也能成为孩子房起夜的灯光更显人性化。

晚上睡觉时伴随着一盏机械感的台灯,让入睡充满故事。

黄昏下的餐厅空间,让空间情绪感十足,也可以很好的居家拍摄。轻盈的家具方便女主人日常打扫时的移动,在家庭聚会时也便于家私数量的切换与调整,同时给空间营造轻松的生活氛围。

晚霞时刻的客厅,可以把白色客厅空间渲染更有情绪感的氛围,增加了居住时的趣味感。

圆弧不锈钢的金属质感与干区定制台盆相呼应,随着时间的更替,反射质感的材质也会有光影和颜色的变化,为空间氛围增添了不少意外的惊喜。

落日时一抹阳光进撒到桌面上,很有戏剧感。
项目信息
项目坐标:无锡 新河湾
项目面积:143㎡
设计时间:2019.04
拍摄时间:2020.12
设计公司:介间建筑设计
设计总监:郭恒博 苏阳
执行设计:陈凌燕
空间摄影:徐义稳 陈凌燕