干货丨衣帽间设计需要了解的尺寸,小户型也可以搞定
麻吉空间设计
2022-02-07
从感性出发,步入不进去的衣柜,无法体会到被心爱的衣服、包包360°环绕的愉悦感。看小时代的时候,就被顾里的衣帽间震惊到了,果然贫穷限制了我的想象。
衣帽间的优势是集中收纳衣物,减少过多的家具对空间的瓜分。有时候一个衣帽间远比每间卧室标配一个衣柜更省空间。但在寸金寸土的房间里,总有各种大小的问题,让人对衣帽间的设计,望而却步。

可拥有一个衣帽间,并非很难,只要好好的规划,小空间的衣帽间,还是会让生活变的更加舒适整洁。
//在详细讲解衣帽间类型前,我们要先打好基础!
衣帽间的3大关键尺寸:
1、深度
衣柜的深度决定了你悬挂衣物的空间,以及悬挂时衣物是否会出现褶皱。
①柜体整个深度在600mm(570mm柜体+30mm的柜门),可以根据实际情况减少到400~500mm,这个深度比较适合悬挂衣物。
如果是用于存放饰品、内衣裤等小物件的部分,可以考虑缩减至300mm。

2、过道尺寸
想要保持正常行走以及穿戴衣物,衣帽间过道最窄不得少于600mm,否则将无法正常行动。

3、内部尺寸
内部则有多个尺寸需要考虑:
①挂衣区:挂大衣要求不低于1400mm高度;挂普通上衣要求不低于900mm的高度;
②裤架区:如果使用衣柜裤架,尺寸需在650mm左右;如果用衣架挂,需保留700mm;

③叠放区:宽度需330~450mm之间,高度不低于200mm;层板与层板间距在400~600mm之间;
④存放区:存放鞋子尺寸要求在250~300mm;存放被子则不低于400mm最佳;存其他旅行箱或者背包等物品的高度尺寸比较灵活,可以根据衣柜整体情况设计。

//大致了解尺寸后,小伙伴们想必已经迫不及待想知道衣帽间有什么样的设计方案了吧?我们将衣帽间大致分为四种样式
衣帽间类型
01
一字型衣帽间
这种衣帽间比较简单,所有的柜体都在一条直线上,非常节省空间。
衣柜的进深在60cm左右。走道的完美深度在90cm左右
装修设计做法:用屋内的一面空墙,做一排半开放的衣柜,兼顾收纳与展示。如果卧室空间充足,也可以在卧室内用衣柜做隔断,做一个衣帽间。

走道之所以最好90厘米深,需要考虑两个因素:
1. 衣帽间能让两人同时进出,足以侧身而过。
2. 当抽屉拉出来时,伸手拿棉被、行李箱,都能保留站立、后退及转身的空间,这样的空间是最舒适不拥挤的。

02
L字型衣帽间
这也是一种比较狭长的衣帽间。L型衣帽间长宽比例建议为250*210cm,衣柜60-90cm的进深最为实用,抽屉的安装高度不要超过130cm。

03
二字型衣帽间
也就是双排衣帽间,宽度一般是2.4m以上,一排衣柜进深至少为60cm,两排衣柜之间至少有80cm的走道。可以利用过道的狭长空间来做成这种衣帽间。

04
U型衣帽间
U型衣帽间适合大空间设计,功能可以相对丰富一点,可以设计衣柜、梳妆台、首饰台等,U型衣帽间多为正方形,衣柜的进深60cm,中间活动的区域最少要有80cm,这样才能满足在过道里转身、下蹲取衣等,那么这个衣帽间最好有2m的宽度。

//没有衣帽间,也可以创造一个!独立式衣帽间做不了,我们就退而求其次装一个实用型小衣帽间总是可以的。
衣帽间空间选择
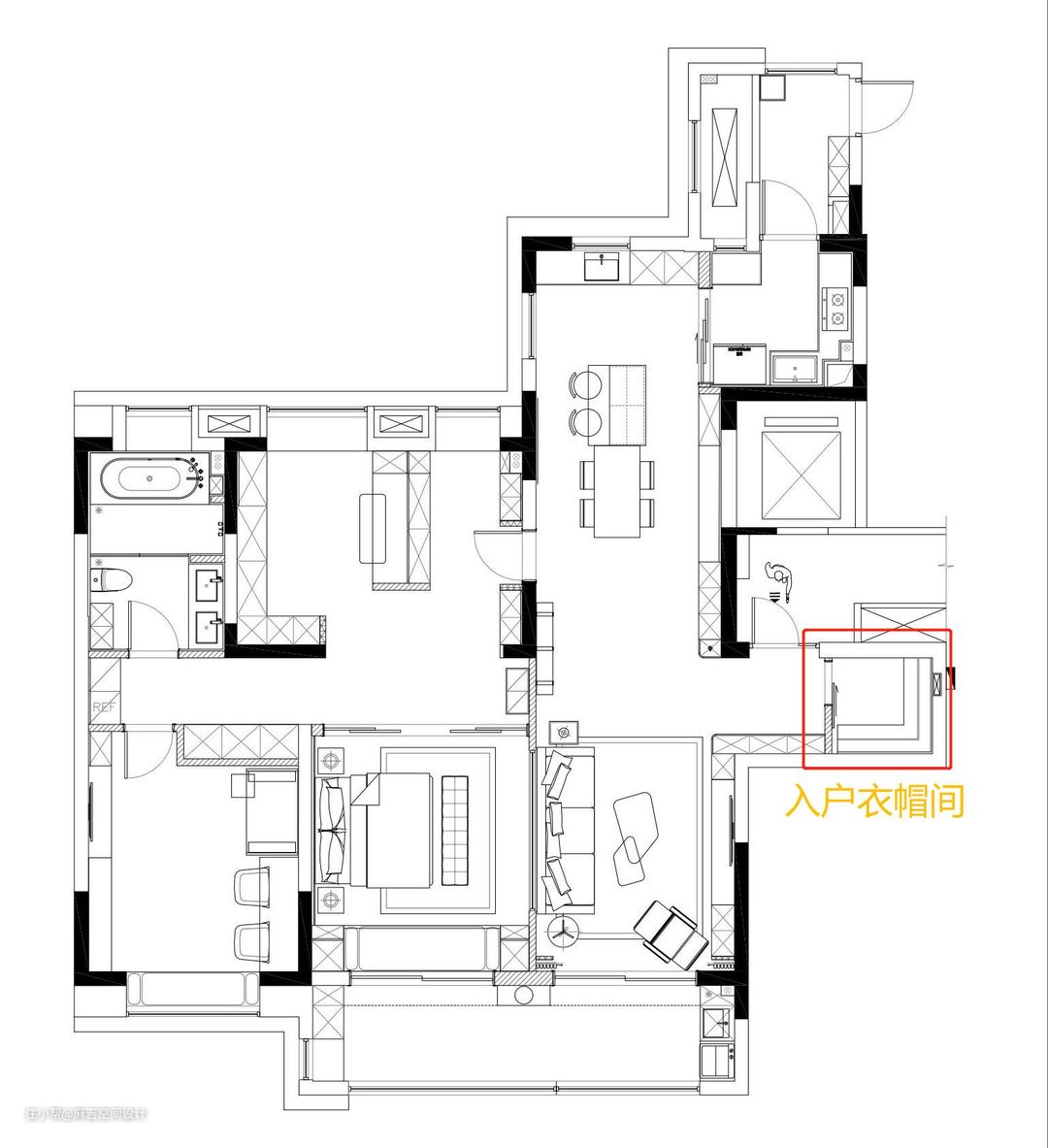
玄关
一般情况下,衣帽间靠近玄关,是最符合动线的。

玄关设计成实用的柜体隔断,提供了充裕的收纳空间,出门鞋帽包包拿放很顺手。定制移门穿衣镜,出门前检查着装搭配不要太方便啦~

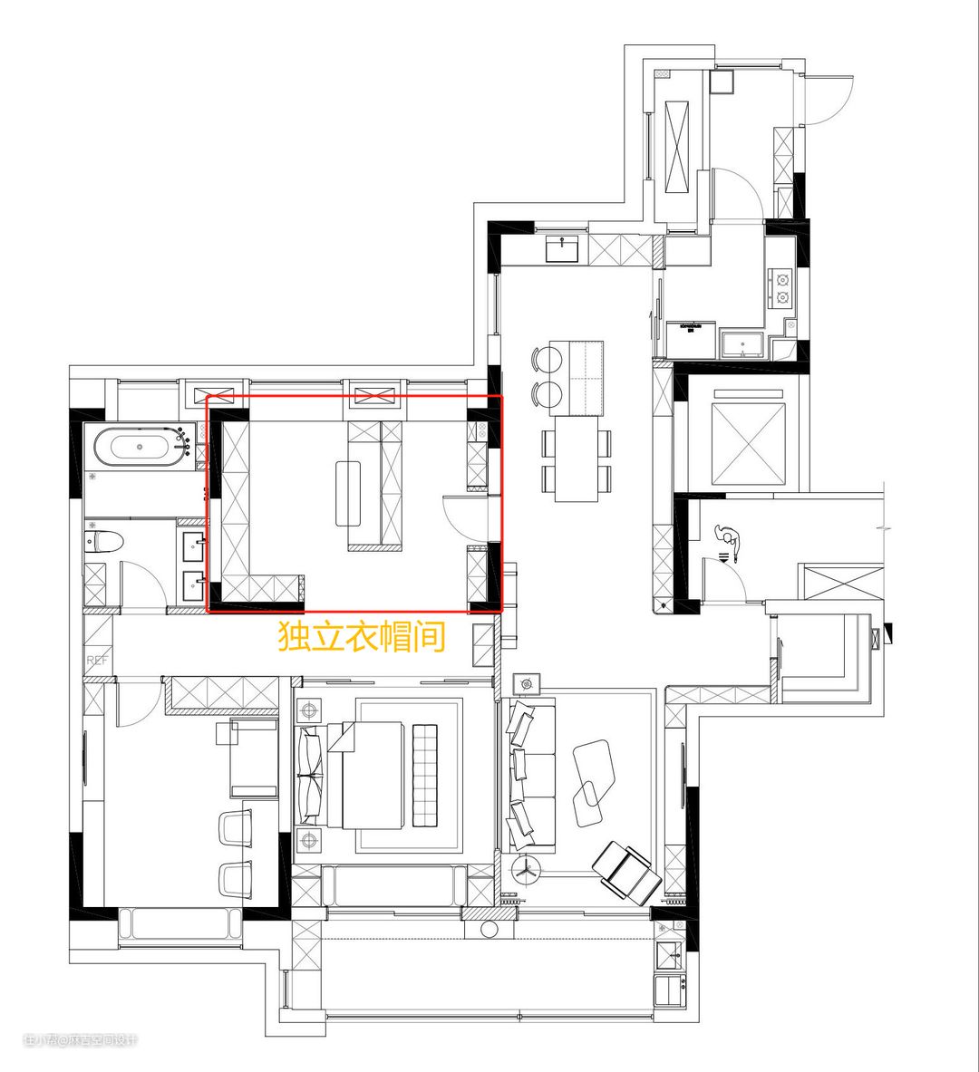
主卧
不特意界定卧室、衣帽间、卫生间等空间界限,开放式的格局让空间的幸福感更强。
①床头背景打造衣帽间

②床对面打造衣帽间

次卧改独立衣帽间
除入住硬性需求外,不要纠结要不要留客卧,客卧能用到的几率真的是太太太小了。

只有一两个人住,用不到那么多卧室,就会把一个房间直接拿来做成衣帽间,并和主卧一起做成独立的套间,立马就能住出豪宅的气势。别犹豫,改它!

不用过分在乎动线
对于小户型,只要能塞下衣帽间,就解决了很多问题。
符合动线当然最好,即使不是那么特别符合动线,依然瑕不掩瑜,比起没有衣帽间的杂乱,可以接受。