54㎡奇葩户型,卫生间还能1改2,他家绝了!
住范儿
2022-02-09
今天给大家介绍的这篇设计师案例,严格意义上是个“狭长的奇葩户型”。
最宽处4.3m,长15m,不论改造前后,去到主卧唯一的路径是穿过玄关,穿过客厅。这种长条户型统一都有一个难点——采光不通透。

而咱们这期屋主的家更难,不仅是老破小,还是承重墙很多的一楼,唯一好的一点是,坐南朝北,楼距不紧,主卧采光不受影响。
屋主是一对刚结婚的小夫妻,未来计划生娃,房子是父辈那代挪出来的。结合两人好客、又需要工作的诉求,这个房子不论收纳、布局、卫生间使用上都显得局促。
改造后不仅拥有了独立的两室两卫,还通过开放设计增加了工作区和餐厅,收纳面积也直接翻倍,就连宝宝换纸尿布的地方都备好了。

有个小彩蛋,这期的屋主就是案例的设计师~
设计师:王帆
面积:建面63㎡使用面积54㎡
户型:两室两卫一厨一厅
花费:25w
位置:北京 石景山
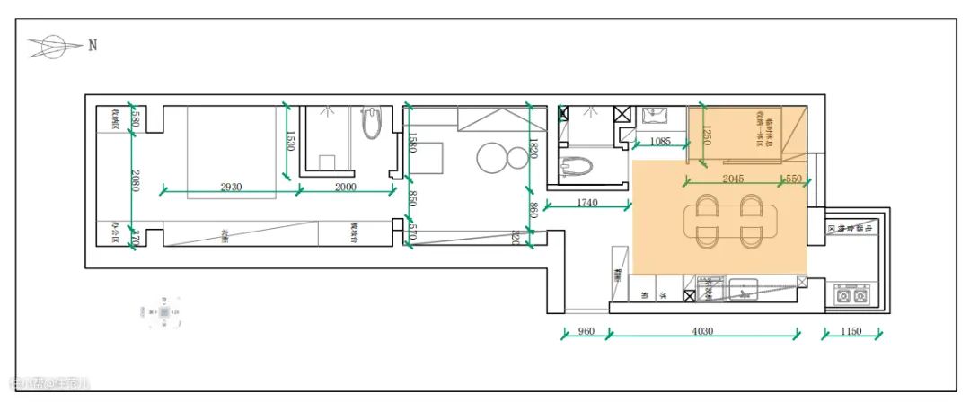
- 改造前

原始的户型里,本就拥有两室一厅,但因为宽度限制,卧室都很小,放下一张床、再放些柜子和桌子,走起路来都很费劲,这让原本不大的家显得更逼仄。
加上布局不合理,屋主好客又想要工作区的想法就只能落单,在敲掉非承重墙,尽可能让空间变得开放后,房子格局成了下面这样。
- 改造后

- 具体怎么改的?
· 拆掉原有厨房的墙体,打造厨房、餐厅和小次卧一体的开放空间,又能随意进出的客厅
· 用多层实木板结合榻榻米造型,打造可开可合的小次卧,同时增加收纳面积,也可成为临时的住宿区

· 抬高地面20cm后,在主卧新增独立卫生间;并将原有公共卫生间外扩了15cm,台盆外置后做干湿三分离
· 用卷帘做隔断分开主卧与阳台,阳台随时化身单独的工作区,也可增加采光
· 全屋增加了超20㎡的定制柜,增加收纳空间。

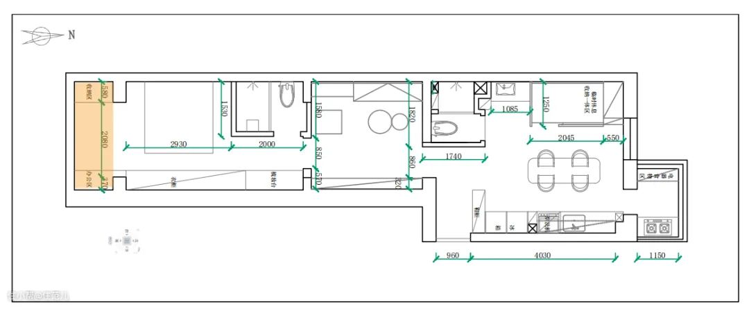
- 01玄关

原有的户型中,是没有玄关的。
改造后,设计师在门口靠左手边置入了一组高约80cm的鞋柜,鞋柜由开放格+一组封闭式柜门组成,开放格放近一周内常穿的鞋子,拖鞋等,封闭柜里放不经常穿的鞋子。

鞋柜的下方特别预留了25cm的高度,方便扫地机器人打扫;鞋柜上门可以放一些出门的钥匙,也可以成为临时的展示台。

从玄关望向卫生间
进门的右手边,屋主提前在某宝上购置了一个可在墙面固定的小坐架,可收可拉开,收起来不占地儿,拉开方便换鞋,很实用。
这种方式之前在另一个很狭窄的小户型案例里也介绍过,有三色可选,可承重240斤,才200块,还很容易安装。
某宝直接搜“折叠换鞋凳”即可!

- 02厨房

改造前的厨房是一字型靠墙放,再加一个只有0.6m的过道,很拥挤!
改造后,屋主撬掉了这面墙,让厨房、餐厅和多层实木板特质的小次卧变为一体,成为以餐厅为主导的会客中心,大约10㎡,满足屋主喜欢交友的诉求。
旁边就是公共卫生间,动线上干啥都方便许多,也不会过于打扰其他家人。
全屋通铺多层实木板+无主灯设计的两个小心思,让空间更显大且解决了“奇葩户型”的采光问题。

下面我们把这个空间分为两部分,厨房、餐厅和小次卧,说的详细一些。
厨房其实是由靠右边的墙体和外延的阳台一起组成的,通过玻璃门隔开。
玻璃门的作用也很大,既能阻隔油烟,还能增加开放间整体的采光!

沿着墙边,做通顶的定制柜+悬浮吊柜、地柜组合,就拥有了10㎡的收纳空间。
通顶柜和吊柜之间其实是有30cm的进深落差的,下图应该能看出来。

就这30cm,直接暗藏了一个嵌入式的冰箱,打开是这样的!
屋主选用了底部散热的独立式的冰箱,一个261L,两个刚好够6人使用。然后提前量好高度,预留嵌入尺寸,并联系定制柜公司做统一的门板。
一个独立封闭的嵌入式冰箱就做好了,好看又实用!
这点喜欢嵌入式设计的小伙伴可以参考~
上面多余的部分,还能用作杂物收纳,一点不浪费空间。

往前走是小型的家政区,下面装洗衣机,上面原木色的收纳区放洗衣服的清洁用品。

悬浮吊柜下还特别安装了磁吸感应灯,即使洗菜、切菜,也不会变黑。

打开玻璃平开门,有一个大约2㎡的外置阳台,阳台左上方定制了面板,可以切菜,做饭很方便;下面做小家电的收纳。
右边是集合了蒸烤箱一体的优格集成灶,这样就省出了油烟机和走管的空间,简直是小户型拯救神器!

- 03开放式的小次卧+餐厅

改造后,由实木多层板组成的小次卧看似更小了,但内部榻榻米的设计既能增加储物空间,又能当床用,结合会客这个需求,也不失为一个不错的解决方案。

原木色的板材自带的纹理,效果朴实自然不用多余装饰。

桌子不大,全部坐满时可容纳6人,榻榻米打开也能成为一个座位。

- 04客厅

客厅与玄关、餐厅之间只有一个门洞隔开,没有门。

屋主希望“这个家是敞开的,开放的”,即使是只有夫妻两人,一人在客厅看剧,一人在餐厅做饭,也能看得到彼此,互相交流。
这个客厅是个“无电视客厅”。

小夫妻两都是85后,平时工作很忙,早就丢弃了看电视的习惯,加上两人都是材料多、书杂又喜欢收集手办的人,两人就心照不宣的选择了半墙开放格。
对他们来说,相比于封闭式书墙,开放更容易找东西。
开放墙的上面裸露另外半墙,成为投影仪的大屏幕区。

加上奇葩户型采光差,关掉沿墙一圈的线性灯后,这个暗区反而增加了投影的画面呈现效果~

客厅的另一面,用多余的实木板沿墙定制高约0.5m的坐区,搭配地垫,替代传统大客厅购置的双人大沙发,风格统一且实用。

人太多时,增加一个可随时挪动的单人座椅做补充。

在家里开私人小影院也就是这感觉了!
- 05主卧+卫生间

主卧+卫生间是规规矩矩的长方形,不算阳台的面积是12.6㎡。
光一张床+沿墙的这一排定制柜,就占去了卧室面积的三分之二,不过也是这12㎡的定制柜,未来将拯救一家三口的所有收纳,现在是夫妻俩~
定制柜右边与阳台衔接的墙垛是配重墙,为了保持与定制柜齐平,配重墙边上做了开放格,成为单独一排的展示区。

在主卧门后延伸出的半墙定制柜,成为一个长2m,进深50cm的桌面。

定制柜下方,用来囤女屋主的化妆品,常用的就放在右手边的弧形台面上,随拿随取不碰手;
它也能成为未来宝宝换尿布的操作台和临时的办公桌。

主卧沿用了厨房、客厅的线性灯设计,为了方便使用,屋主在主卧进门处单独设计了不到3㎡卫生间。
为了预埋管道方便下水,卫生间的地面特别抬高了20cm,下面这张图清晰可见。
这也是很多小户型改卫生间的解决方案。

从主卧走廊望向客厅、餐厅方向
卫生间墙面铺了60x60cm灰色墙砖,防水还耐污;还做了干湿分离和小型的洗手台。
墙角的位置也不浪费,弧形的贴角置物架放洗澡时的瓶瓶罐罐,很实用!

- 06阳台变身工作间

主卧的最前方,也是这个奇葩户型的尽头,是阳台。
有一说一,站在这里时,采光是一级棒,敲了原有户型的推拉门后,阳光也更容易进入主卧。
不过设计师将这里打造成了一个可开可合的工作区。

用传统的竹席做卷帘,合上就是一个独立的工作区,拉开就是主卧!
原木色的卷帘材质和定制柜搭配,视觉上毫不违和,在正午的阳光下喝茶晒太阳,应该很惬意!
工作区沿用了卫生间的一样的灰色墙砖。

为了避免刺眼的阳光照射,保护隐私,设计师选用了白色的百褶窗帘,它可以固定在窗户的任何高度,随时调节。
价格也不贵,坏了随时替换,相比于窗帘盒的窗帘,省空间又省钱。
- 07公共卫生间

公共卫生间位于客厅与小次卧之间,其实一进门就是,不过朝向在小次卧那边。

这也是原始户型里卫生间的位置,不过设计师在原有基础上,向走廊借了15cm扩大卫生间,这才能做干湿分离,在墙上装下壁挂洗衣机。

装壁挂洗衣机的这面墙是承重墙,装起来很复杂,需要提前预埋管道走水。
这个卫生间和主卧卫生间一样,地面抬高了20cm。

好了,这就是今天的“奇葩户型改造案例”,希望其中的一些小点对你有用!
做个小互动,如果是你,怎么改这个小户型?或者在评论区分享你对这个案例的看法,别忘记“收藏+关注”呀~