中国院子300㎡新中式风格案例解析
山水装饰集团
2022-02-12
项目地址:中国院子
面积:300㎡
风格:新中式
户型:别墅
设计师:朱彤



在简约风大行其道的今天,带有明显传统文化特色的新中式风格,凭借更具格调和诗意的空间氛围,受到众多顶奢住宅业主的青睐。本文带来的这款案例,便是一套300㎡的新中式风格别墅住宅,上下三层空间,功能分区明确,将中式古典之美融入现代家居中,既有诗意,也有格调,古与今碰撞出理想之境。
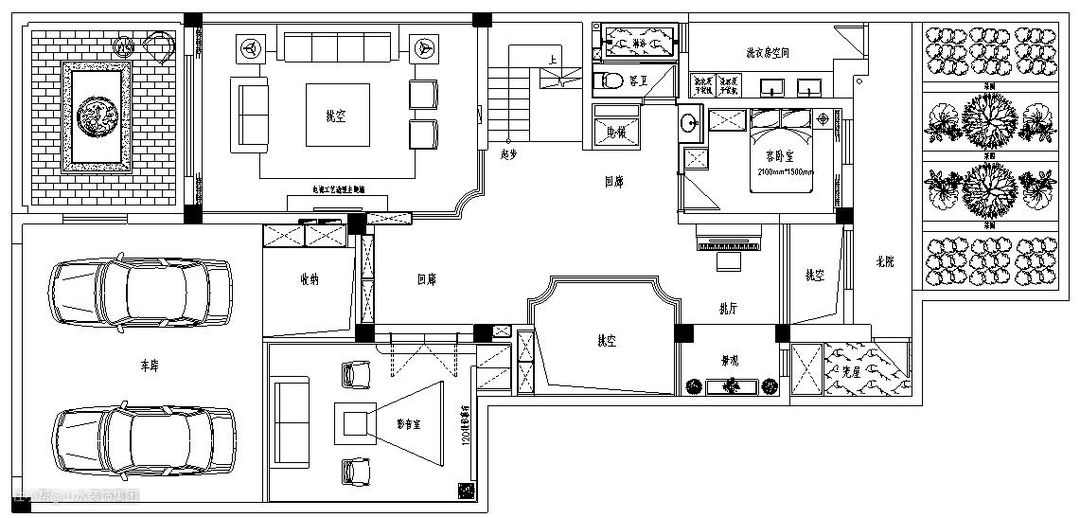
一楼布局:
一层作为主要活动区域,起到待客、休闲活动等功能。空间布局上,主要设计为入户玄关、客厅、餐厅等,以满足一家人的基本生活需求为主。

由于空间结构的关系,入户玄关是一个宽敞的过道式设计,沿着墙面定制了一组高柜,深咖色的柜面搭配着金属线条,尽头处则设置成一处端景,灯带修饰的墙面做了圆形镂空设计,以借景手法让空间产生交互。



进入客厅,红木色的家具搭配着米色软垫,避免了大面积深色所产生的沉闷和压抑,视觉呈现上更加轻盈。墙面则以护墙板、岩板搭配着金属线条、木格栅,有中式古典的优雅和庄重,也呈现出现代家居的舒适与简约。


餐厅极为宽敞,以大面积的落地窗引入充足的自然光,同时将窗外的景色引入室内,内外之间形成巧妙的联动。白色的岩板餐桌搭配着红木餐椅,一束鲜花、几株盆栽点缀,营造出温馨雅致的用餐氛围。
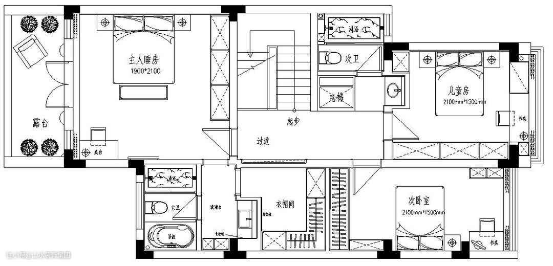
二楼布局:
拾级而上,便进入二楼,主要是一家人的睡眠空间。作为别墅大宅,套房式设计几乎已成为标配。主卧配备有独立卫浴和衣帽间柜体选用统一的深咖色和金属线条,床头背景墙的部分则通过加入砖红,彰显新中式的典雅和韵味。



男孩的房间以灰色作为主调,除了睡眠功能之外,利用飘窗打造了休闲区和书桌,增加休闲和学习等功能,实现一房多用,也给足了孩子自由成长的空间。

女孩的房间在白色主调中,增加了些许粉色点缀,更显唯美和活泼。与此同时,女孩房同样增加了书桌椅,以满足孩子阅读学习等需求。

老人房的布局要简洁很多,选用了深色实木家具,搭配着蓝白相间的床品,整体给人以温馨、庄重之感,迎合了老一辈的审美,也避免了过多的元素导致凌乱。
三楼布局:





三楼主要是休闲区和书房。其中书房的设计以男主人的喜好为主,红木色的书桌是空间的主角,搭配着舒适的老板椅,同时增设两把扶手椅,方便待客、会谈等。
负一层布局:


负一层存在采光不足的问题,我们便利用下沉庭院引入自然光,保证休闲区的宽敞明亮。


为了提供方便,负一层在茶室设置了水吧台,为屋主的日常生活提供方便。



顶奢住宅业主更注重空间质感和生活品质的表现。这套300㎡的新中式别墅装修案例,在明确功能分区的基础上,通过融入大量实木、岩板、护墙板、金属线条等元素,强化家居空间的品质,迎合居者对奢居的美学追求。