166平现代轻奢改造,最爱当属L型厨房设计
欧碧雅装饰老房翻新
2022-02-18
户型:四居室
风格:现代轻奢
面积:166
位置:上海
前言介绍:
本案是位于松江区的一套下叠式别墅,套内面积166平,业主是一家六口居住(包含一个保姆),有一个非常可爱的小女孩。

女主有着很好的品位和生活情趣感,把家布置得精致而温暖。每一个家居细节都美得很高级,每一样物品的摆放都是自己喜欢的样子,用简单的装饰品布置出高质感的人生,不仅颜值爆棚,而且格调满满。

户型问题:空间虽然大,但收纳功能毫无章法,东西经常堆砌在一起,既不美观翻找起来也不方便。
布局问题:客厅和主卧区域面积较大,利用不合理,造成空间浪费。一楼没有玄关柜且因为卧室房门朝向使动线不顺畅。
业主要求:除了满足日常生活的所有功能外,同时需要有一个影音室、衣帽间和书房。喜欢轻奢简约,追求雅致的生活气氛,希望能打造一片能让自己身心完全放松的家居环境。
设计思路:以现代轻奢的软装设计风格,使整个空间平和而富有内涵,以其独特的优雅描绘出主人的生活态度,帮助业主打造一个悠然舒适的享受空间。
户型图:
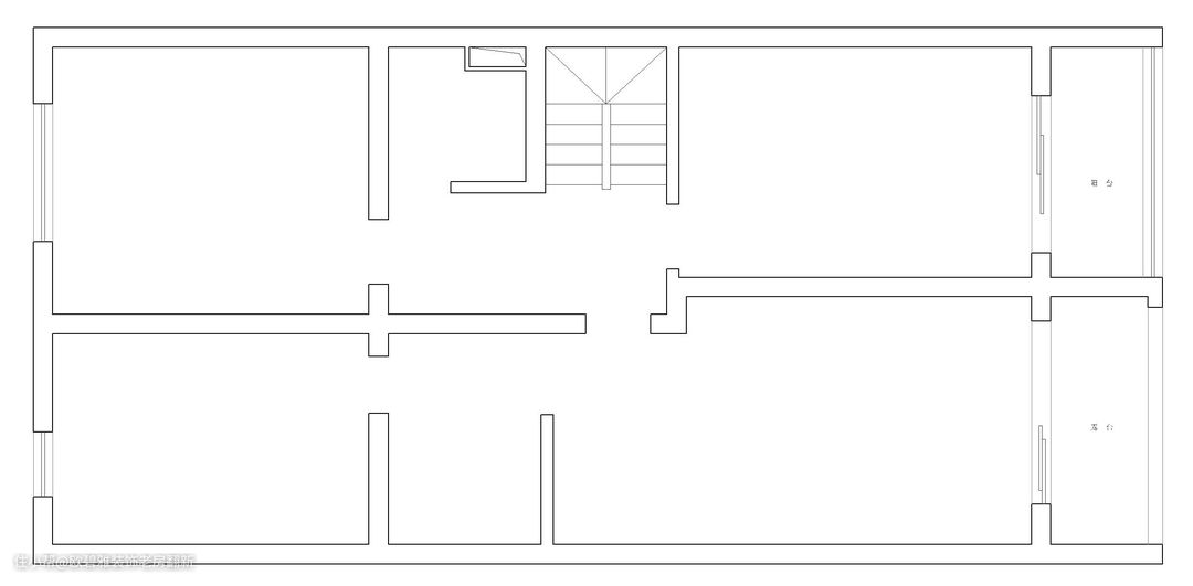
一楼原始结构图:

1.玄关:开门便是厨房,没有换鞋和挂衣区,进出家门不是很方便。
2.卫生间:作为一楼公卫未进行干湿分离,不美观也不实用。
3.客厅:客厅空间较长,形成部分区域浪费,空间利用不合理。
一楼平面布局图:

1.玄关:向主卧借空间,增加玄关柜设计,中间和下方做镂空设计,美观又方便打理。
2.卧室:将房门移至卫生间干区处,保证厨房至客餐厅的过道完整性。有效隔离油烟等问题进入房间。
3.卫生间:将空间进行干湿分离,就餐时也不会觉得尴尬啦~
4.客厅:满足客厅需求增加多功能区域,不仅可以作为展示墙还可以喝酒、办公或与外界产生互动。
二楼原始结构图:

1.卧室房门直面楼梯处,没有隐私还要想着随手关门问题。
2.靠里的卫生间面积较大,布局不合理。
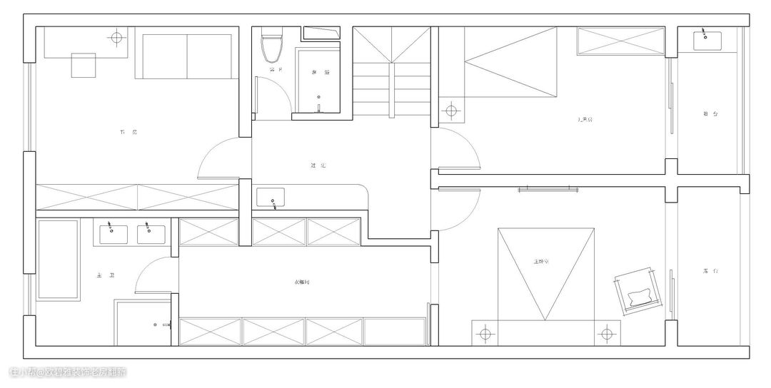
二楼平面布局图:

1.卧室:调整卧室房门,优化原始空间缺陷。
2.卫生间:缩小空间面积,增加衣帽间区域。
3.衣帽间:向卧室与卫生间借空间,满足业主需求。
4.过道:增加吧台区,解决茶水和储物问题。
地下室原始结构图:

1.门厅:空间利用率低,物品摆放杂乱,像一个杂物间。
2.楼梯:楼梯下方空间浪费。
3.采光:空间相对较暗,自然采光一般。
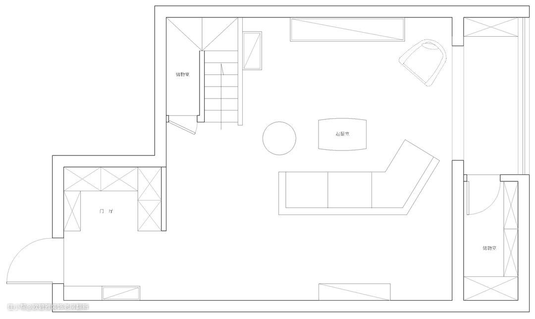
地下室平面布局图:

1.门厅:设计U型玄关柜,满足收纳、储物等多种功能。
2.楼梯:下方设计储物室,增加家庭收纳空间。
3.客厅:设计投影仪,满足业主影音室需求。
4.天井:设计多功能储物室
客厅:

客厅长4.6米,考虑到房间的利用率,设计师将沙发作为分界线,在沙发后方留出1.1米的多功能区域。两边设计通顶储物柜,既可以储物又可以用来展示收藏品。中间是女主最爱的壁炉组合啦~嵌入式取暖仿真火焰,尽情享受别具一格的温暖生活。

整个客厅地面选用斜铺的方式并与黑色花纹波打线进行空间分区。搭配简约灰色调的家具摆设,并在家具细节加入金属质感的设计,让空间显得闲适轻松而又有档次的氛围感。

从多功能区看向客厅,出彩的地方便是电视背景墙的设计。一块完整的白色花纹大理石浑然天成,两边的金属线条搭配,冷暖结合又突出质感,凸显业主品味和档次。电视墙顶部采用筒灯点缀,增加了整体的温馨氛围,一侧的置物架也与整个空间相得益彰。
沙发旁几何形状的地毯点缀,丰富了视觉层次感,带来时尚品位,搭配两张现代感简约的小茶几,撞色的设计展现不同的美感,实用美观。
餐厅:

精致的餐桌椅连接着一旁的吧台,黑金沙大理石台面和钢琴烤漆板大气十足。既可以用来储物又可以分担厨房的配菜功能,超级实用。

靠墙一角采用内嵌式家电和储物柜组合,可以减轻厨房与餐厅处的收纳压力。

生活,从来都不应该被讲究。餐厅优雅的线条,大气内敛的气质与客厅空间相呼应,让业主与生活来一场高颜值的生活恋爱吧。
从客厅向厨房看去,整体空间宽敞明亮,餐厅与厨房之间以透明玻璃门隔开,空间通透而又有层次感。
厨房:

厨房白色橱柜与黑色大理石搭配形成强烈的视觉冲击力,极简线条设计和灯带巧妙融化了空间的冰冷感,营造干净、不繁杂的厨房空间,让生活充满想象与灵动。

主卧:

整个户型采用超薄日立中央空调和石膏板设计,减少空间的厚重感,让空间看起来更通透

衣帽间:

主卧步入式衣帽间独立而又私密,可以藏下业主所有好看的衣物,在这里实现完美变身,视觉上也让空间更显开阔。

卧室与衣帽间之间利用白色的吊柜移门隔开,有点谷仓门的设计效果让家居生活变得更加惬意更加有情调。
卫生间:


为了让卫生间显得更加敞亮,设计师采用了墙砖地砖一体式设计,在灯光的映衬下,让这个“不起眼”的空间也能格调满分,让家从此“浴”罢不能!
楼梯:

黑白钢琴烤漆楼梯材质细腻,复古气息十足,雕花设计给楼梯增光添彩,墙面别致的小墙灯也给楼梯增添了不少的生机。
二楼过道:

一路向前—休闲独处的下午,伴着一曲爵士、咖啡或茗茶,放空身心,任思绪飞扬。

地面木板柔和的色泽和舒适的质感,让整个空间都展示出一种无可比拟的美和精致。
地下玄关:

从车库进入地下室玄关,采用U型储物区和鞋柜设计,既有换衣的便利性,又有鞋柜的实用性,可以说是一举两得。


地下客厅:

地下室客厅采用无主灯设计,顶面利用筒灯+灯带进行合理分布光源,加上引光入室进行空间照明,这样相对简洁且没有厚重感。

在灯源控制上,屋主选用了智能控制系统,可以根据生活活动范围对每个区域的灯光进行调控。

楼梯下方的2m²也有大大的储物天地,可以储放业主换季的衣物和生活用品。

地下室空间兼具休闲和玩耍等多种功能,并没有做很复杂的设计。