实景新作|南山郡164㎡ 简约纯粹中的几抹温柔
布尔设计
2022-02-24
基本信息
Essential information
项目 | Project :南山郡
面积 | The measure of area :164㎡
户型 | House type :三室两厅
风格 | Style :现代简约
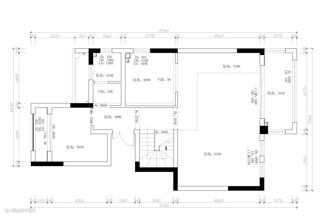
Before transformation
原始户型图


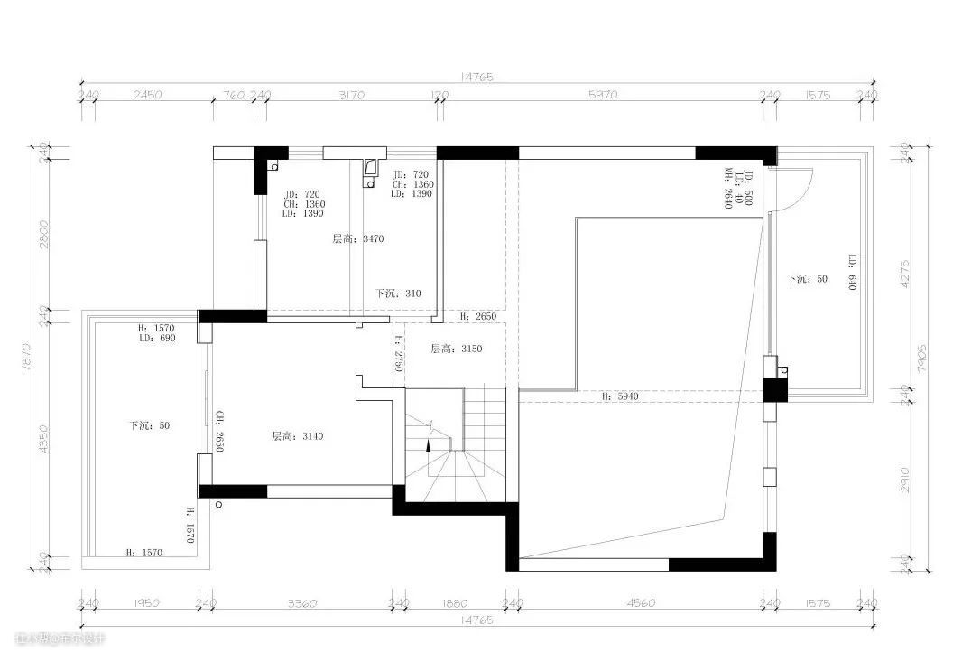
After transformation
改造后户型图


Transformation highlights
户型改造亮点
① 原始入户门厅进门的视觉比较拥堵,不够开阔,现将入户门后移,占用少许公共空间,使进门的视觉感增强。
② 一楼原始厨房是封闭式厨房,先将封闭式厨房改成开敞式厨房,采用餐岛一体的形式,使整个空间视角感更加开阔,整个客餐厅更有互动性和仪式感。
③ 二楼原始只有一个卫生间,现将这一个卫生间一分为二,楼上两个房间的配套更充分。
④ 二楼女儿房处把原始露台改成女儿房的阅读区,使整个女儿房的功能布局更充分。
· 客 厅 ·
Living Room
简单是一种生活态度,不需要繁杂多情的装饰,回归本初,追求简单到不能再简单的质朴色彩。整个空间以现代简约的黑白灰为主,不复杂的颜色,利落纯粹的线条,象征着居住者的沉稳大气。
Simplicity is an attitude towards life. It doesn't need complicated and affectionate decoration. Return to the beginning and pursue simple and simple colors. The whole space is dominated by modern simple black-and-white gray, uncomplicated colors and neat and pure lines, symbolizing the calm atmosphere of residents.








就算是简约的黑白灰色调,也能在其中找寻到属于它们的一抹温柔。黄色休闲沙发椅,有生命力的绿植……皆是它们的温柔。颜色的跳跃,让整个空间更加灵动有活力。再加上大面积的白色墙面,搭配落地窗帘,整个空间尽显温柔与通透。在最亮至最暗的明度变化间,黑白灰将现代简约的尊贵与低调悄悄上演。
Even the simple black-and-white and gray tones can find a touch of tenderness belonging to them. Yellow leisure sofa and chair, green plants with vitality... Are all their tenderness. The jump of color makes the whole space more flexible and dynamic. Coupled with a large area of white walls and floor curtains, the whole space is gentle and transparent. In the lightest to darkest brightness changes, black, white and gray quietly staged the dignity and low-key of modern simplicity.
· 餐 厅 ·
Dining Room

世界如此辽阔,我们能够把控的也只有自己的小千世界。把原本封闭式的厨房改成开放式,流动的空间下,将厨房、餐厅与岛台相连在一起,使其之间有更多的互动性,也让整个空间的视觉更加开阔,生活多了些浪漫和仪式感。
The world is so vast that we can only control our own little world. The original closed kitchen is changed into an open one. Under the flowing space, the kitchen, restaurant and island are connected together, so that there is more interaction between them. It also makes the vision of the whole space more open and life more romantic and ceremonial.





阳光透过白色的窗帘,铺在餐厅的不同角落,与家人围坐于此,感受洒落的阳光,感受彼此的爱意,感受简单的生活……此刻,我们更能体会,平凡世界里,简简单单才是生活的真理。
Through the white curtain, the sunshine is spread in different corners of the restaurant, sitting here with your family, feeling the scattered sunshine, feeling each other's love and feeling simple life... At this moment, we can better understand that simplicity is the truth of life in the ordinary world.
· 厨 房 ·
Kitchen


开放式的厨房,与岛台和餐桌相连,让空间的每处都能得到完美利用。在色调层层晕染的进退之间,黑白灰将现代简约的时尚气息尽情展现。黑白是所有颜色的尽头,就像生命一样,干净而纯粹。
The open kitchen is connected with the island and dining table to make perfect use of every part of the space. Between the advance and retreat of the hue layers of halo dyeing, black, white and gray show the modern and simple fashion breath heartily. Black and white is the end of all colors, just like life, clean and pure.
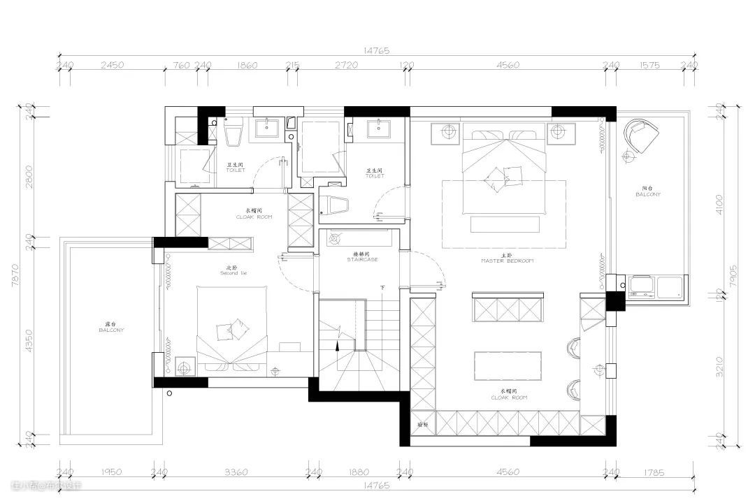
· 主人房 ·
Master's Room
主卧的设计以白色、灰色和蓝色调为主,躺在床上闭上眼睛,就像与夜晚的星空和云朵为伴。梳妆台点缀跳跃的橘色,整个空间告别单调,予人希望的同时,又不失舒适和高级。这让我想起一句话:重要的不是什么都拥有,而是想要的恰好在身边。
The design of the master bedroom is mainly white, gray and blue. Lying in bed and closing your eyes is like accompanying the stars and clouds at night. The dressing table is dotted with jumping orange, and the whole space bid farewell to monotony, giving people hope without losing comfort and advanced. This reminds me of a sentence: the important thing is not to have everything, but to have what you want right next to you.




· 儿童房 ·
Children's Room
每一个女孩,都会有属于自己的公主梦,这是美好又幸福的存在。小时候的公主梦,长大后就交给自己的女儿来实现吧。整个儿童房的空间以梦幻的粉色为主,粉色与粉色层次间的搭配与跳跃,让空间多了些灵动和质感。空间结构布局简约舒适,干净利落的线条,通透的窗……满足了小女孩所有的少女心,充满童趣和希望。
Every girl will have her own princess dream, which is a beautiful and happy existence. The princess dream in childhood, when you grow up, give it to your daughter to realize. The space of the whole children's room is mainly dreamy pink. The collocation and jump between pink and pink levels make the space more flexible and textured. The spatial structure layout is simple and comfortable, with clean lines and transparent windows... It meets all the girlish hearts of the little girl and is full of childlike fun and hope.




