360平新中式复式住宅,这样的品茶室太有禅意了!
HA艺墅设计院
2022-02-25
接下来为大家带来一套新中式的复式新房的设计方案。业主是一位大学教授,学术水平很高,但是随着城市的扩大,原来的家不在像以前那么安静,为了让自己有一个安静的环境做学术研究,业主特意在城市边缘购买了下面这套复式住宅。
业主十分喜爱中国传统文化,同时也十分追求舒适的现代生活体验,因此对于这套新房,业主希望我们的设计师能为他和他的家人拿出一套既有中式文化韵味,同时又能有舒适居住体验、满足一家人高端生活享受的设计方案。
基本信息
建筑形式:复式
装修风格:新中式
建筑面积:约360平方米
为了能设计方案能够更好地满足业主的居住需求,设计师在开始设计之前详细调查了业主的具体需求,并将这些需求记录如下
1家里有一儿一女两个孩子,要给这两个孩子单独设计卧室.同时,两个孩子还在练习钢琴,所以要专门设置一个练琴区。
2业主不喜欢凌乱的空间,为了保持空间的整洁,需要设置一个储物间储藏杂物。
3需要给业主预留一间书房和一间茶室,如果空间允许,再设计一间客房。
4需要设计一间专门的影音室供业主休闲观影使用。
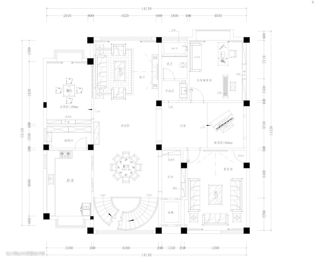
01平面布局设计
带着业主的需求,设计师来到新房现场进行了测量,并在这之后对新房进行了如下的布局设计


1玄关右侧房间设置影音室,影音室正对的房间设为书房,两个房间之间设置练琴区。
2过道右侧的活动区,靠窗一侧设为客厅,另一侧设为餐厅。
3客厅左侧房间设置为品茶区,而厨房则设置在餐厅的左侧,在厨房内部设置一个储物间提供储存杂物的空间。
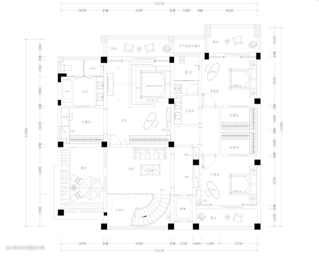
4顶上一层作为主要的休息区,设置业主的主卧室和两个孩子的卧室。
02客厅

客厅选择原木色的传统造型家具,既奠定了中式古典的空间风格,同时保证了空间自然温馨的氛围。在客厅中使用了大量的祥云纹屏风作为装饰和空间隔断,更加强化了客厅的中式气息,而电视背景墙角落瓷器中的中式画作更点明了业主作为文化人的身份,让空间更有文化底蕴。
03餐厅

餐厅在客厅旁边,由于比客厅少了很多的自然光线,这里的灯光更能展现出自己原本柔和、昏黄的特点,这让餐厅空间更显得温馨、轻松。餐厅选用圆形的餐桌并搭配了带有软垫的新中式的餐椅,既保证了空间的中式格调,又能为业主和家人提供舒适的使用体验。
04品茶区

品茶区选择了矮桌子,并在四周摆放蒲团,让这个空间更加有禅意。在茶桌正上方安装了传统灯笼造型的吊灯,简洁流畅的线条让品茶区更有趣味。在品茶区侧面墙壁上则定制了传统造型的博古架,并在博古架上摆放书籍、瓷瓶等装饰,让茶室增添了更多的古典美。而茶桌正面悬挂中式画作条幅,则更是为空间注入了中华传统文化的神韵,让整个品茶区更加灵动。
05练琴区

在书房和影音室中间设置练琴区供业主的两个孩子练琴使用。为了让空间更有层次,在这里做了个地台并将钢琴放置在地台之上,而在钢琴的后面则做了一个极具中式韵味的影壁,并且利用影壁中树枝的褐色与钢琴的黑色近似,让两者完美的实现了中西合璧的效果。
06影音室

影音室中使用了遮光效果更好的窗帘,在观影时将窗帘拉上,能够保证空间足够昏暗,让观影效果更好。此外,为了让业主能有更多的休闲方式,还在影音室中安装了点歌、麦克风等设施,让影音室同时可以当做家庭KTV使用。为了让影音室的空间也有中式的韵味,在墙壁上安装了中式的画作,将中式文化气息带到影音室中,实现房屋整体空间风格的统一。
07书房

书房的设置处处体现中式古典美学,这里的家具均选用集成传统造型的新中式家具,并且在书房中还摆放了中国传统的琴,业主平时读书劳累之后还可以弹奏古琴作为娱乐方式,这更让书房充满古典气息。
08二层过道

作为一个过渡空间,在这里摆放了沙发、茶几,并搭配了吊灯、台灯、背景墙等设施,组成了一个小客厅,在过渡的同时还兼具了临时会客、临时休息等功能。在垭口方向上还定制了一组嵌入式、带开放格的中式柜子,在提供储藏空间的同时,兼具了展示的功能。
09主卧室

主卧室主要营造轻松惬意的空间环境,卧室选用了榻榻米让休息区域显得更随性,在榻榻米上使用支撑性良好的床垫并在四周围上纱幔,既保证了舒适的体感,四面合围的纱幔又能缩小睡眠空间,让人在心理上更有安全感。在床边设置了架子和梳妆台,供业女主人日常梳妆使用。
10主卧卫生间

主卧卫生间作为一个独立的空间,在设计上更贴近现代风格。墙面、地面都选用了瓷砖进行铺装,并且瓷砖几乎都用暖黄色,这让卫生间空间显得更加温暖。在盥洗室的地面上做了一个拼花的地砖,这块拼花地砖的边缘使用了中国传统的回字纹,这让卫生间中带上了中式的味道。而在拼花旁边还定制了一个浴缸,并在上方悬挂了西式的油画,再度用中西合璧的方式,让空间绽放出强烈的艺术气息。
结语
由于文化的影响,中国人对中式的家装设计有着天然的喜爱,但是传统中式装修在很多地方不符合现代人的生活方式,导致居住体验不好,而将现代风格和传统中式融合在一起的新中式风格完美的解决了所有的问题,用这种风格设计出的房屋既有中式文化底蕴,同时居住体验也更好,所以对于喜爱中国文化且对自己生活质量有要求的人,可以把新中式作为自己装修的首选风格。