信达公园里140㎡轻奢风格案例解析
山水装饰集团
2022-02-26
项目地址:信达公园里
项目面积:140㎡
项目户型:平层
设计风格:轻奢风格
施工单位:山水空间装饰
设计师:丁国兵
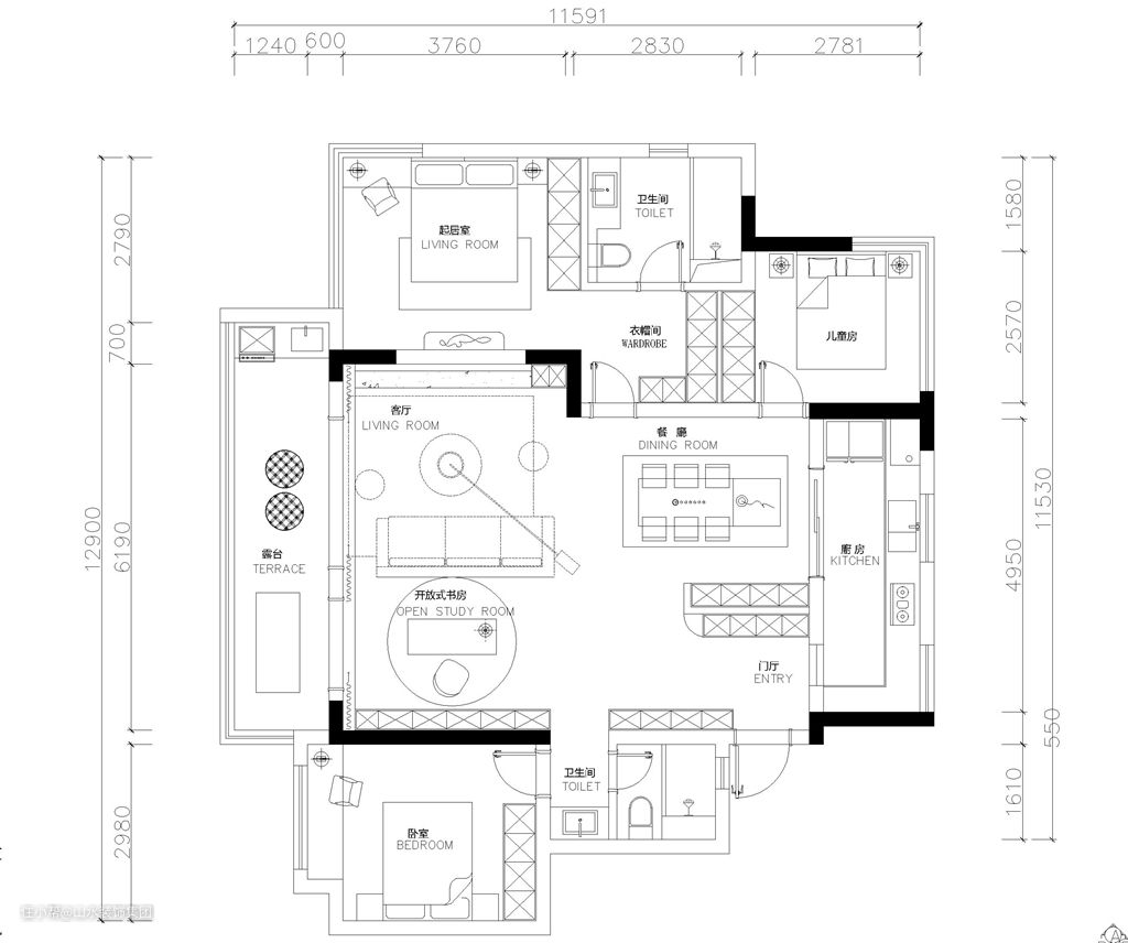
平面布局图

近两年,轻奢风格可谓是大行其道,成为很多年轻人装修的首选风格。本案140平米的新居,业主是一对年轻夫妻,他们希望新居能成为潮玩空间或者彰显生活品位。在此基础上,设计师以轻奢风格为基调,为他们打造出一个兼具潮流时尚与舒适实用的轻奢风格新居空间,生活与时尚艺术结合的恰到好处。
入户

门厅运用质感十足的材质打造出一组实用的玄关柜,结合灯光、摆件的布置,看起来既简洁大方,又时尚精致,轻奢气质由此延伸到室内。
客厅

整体以干净白色为基调,摈弃传统轻奢的奢华感,搭配现代简洁的布艺沙发、别致座椅以及浅灰色地毯,刚柔并济,很好的平衡了空间气质,时尚精致又温馨舒适。


值得一提的是利用沙发后面空间设计的小书房,既满足了日常居家办公、阅读和学习的需求,又充满时尚气质。
餐厅

延续客厅的精致、时尚感,简洁的长方形餐桌椅搭配亮眼的灯光设计,加上现代轻奢的摆件、装饰,无形之中营造出浪漫时尚的用餐氛围,轻松舒适。
卧室


主卧空间明净、舒适,整体以木质家居为主,搭配合适的灯光照明设计,让人倍感轻松惬意。


儿童房与父母房间的设计,相对更加强调实用性,并在局部点缀蓝色与绿色元素,清新淡雅,舒适宜居。尤其是儿童房,休息区与学习区域的配合,给孩子提供了一个舒适的学习和成长空间,静静的释放出现代简约的空间之美。