用红木装饰,将560㎡异形复式变成书香四溢的中国风!
HA艺墅设计院
2022-02-28
业主夫妻俩都是饱读诗书的大学教授,房子的户型比较大,所以选择了传统的中式风格,浓郁的中国风也很符合业主夫妻俩的气质。
基础信息
项目地点:江苏徐州
项目面积:560㎡
项目风格:中式
户型
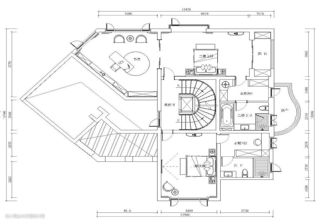
这套房子的户型比较奇怪,是一套多边形的异形户型。设计师通过将空间内部隔墙巧妙的设计,原本奇怪的异形户型,变成了比较方正的正常户型。满足了房子的正常使用,又利用异型户型的特点打造出了不一样的特色。
一楼主要是会客区,偌大的客厅和餐厅,可以满足亲朋好友来聚会。二楼主要是休息和学习的地方,空间的隐私性会相对来说好一些。


01玄关
进大门映入眼帘的就是一个五边形的玄关空间,墙上的荷花装饰画给人一种“出淤泥而不染,濯清涟而不妖。”的脱俗雅致。半圆形的实木门框,让人有一种置身于苏家园林的感觉。
顶面也选用了实木结构的吊顶,配上一盏中式风格的吊灯,整个空间显得古香古色。
地面选用了白色的大理石配上花纹繁琐的波打线,让石材的通透与繁琐的线条相结合。更彰显的中式风格的大气。

02客厅
客厅原本也是一个异形的空间,设计师通过内部隔墙将他打造成了一个方正的空间。它的装修称得上是富丽堂皇。白色石材背景墙有着纯天然大自然的纹路,大面积的红木装饰线条,提升了整个空间的档次,让客厅变的高贵。
墙面做了半圆形镂空的设计,中间用红木做成了隔板。平时收藏的瓷器花瓶、摆件都可以放在上面。对墙面起到了很好的装饰作用,同时也可以彰显身份。
地面和玄关处一样,全部采用白色的大理石铺贴,边上走了一圈拨打线,让地面更加富有层次感。
米白色的窗帘不会影响室内的采光,但能将刺眼的太阳光变得跟月光一样柔和柔和。让人的视觉感变得舒服。
石材背景墙的后面做了一个品茶区。半开放式的设计让它若隐若现,有一种朦胧的美感。

03楼梯
设计师将原本的转角楼梯改造成了旋转式的楼梯,减少了楼梯的占地面积,节约了空间。同时旋转式的楼梯更耐看,更能达到视觉上的美观。
楼梯的踏步选用了浅灰色的石材,每一步踏步上面都安装了感应灯带,走到哪亮到哪,让上楼梯都变成了一种艺术。踏步两边的墙上用红木做了护墙板,对楼梯起到了很好的装饰作用,同时也可以用作扶手来使用。

04主卧
主卧的装修带有浓郁的中国风气息,黑色的实木隔山做成了有坡度的吊顶,让吊顶变得更有氛围感了。
地面选用了红棕色的实木地板,实木的地板,脚感会非常舒服,赤脚走在上面也不会冰冷。红棕的颜色更方便打理。
面墙选用了灰色的护墙板,中间做了一幅山水画。就像王维描述的一样“远看山有色,近听水无声。春去花还在,人来鸟不惊。”
这画的两边做了两盏长条形壁灯,凸显了中式风格的对称性。床上用品也选择了白色和青色搭配,与床头的装饰画形成一体。

05书房
书房的装修让人一进去就有一种想学习的冲动。棕色的实木地板,端庄又大气,配上一块灰色的地毯,又多了些许温柔。一整面墙的浅灰色实木书柜,散发着书香四溢。中间圆形装饰画,让呆板的书柜多了几分艺术色彩。
方形的灰色书桌上面摆了砚台、毛笔。男主人经常坐在这儿练字、写诗,男主人说“练字的时候可以让整个人都放松下了,心平气和,有利于修身养性。”
书房还摆了几把浅绿色的休闲椅,男主人的朋友经常会来跟他一起鉴赏一些书法和绘画作品。

06儿童房
儿童房的装修就像童话故事里的童话屋一样。里面住满了各种各样的动物精灵。整个空间色彩搭配比较鲜亮,符合小朋友青春活力的年纪。
床头背景墙用硬包做了一幅睡梦中的月亮。弯弯的月亮已经进入了梦乡,一闪一闪的星星还在散发着光芒,说着悄悄话。
背景墙的边上用壁柜充当了小主人的书柜。绘本、漫画、课外书籍都可以放在这上面,避免了房间的凌乱。还做了一张小书桌,放学之后可以在这里写写作业、看看书。
