118㎡四室两厅,感受杏仁黄带来的满满温馨感
十六月设计工作室
2022-03-08

项目信息
项目地址 | 成都市高新区
面积 | 118㎡
风格 | 现代风格
户型 | 四室两厅
装修金额 | 约35w
设计与施工 | 十六月工作室
本期屋主是一位90后的女生,善于规划,有比较明确的需求,同时也很乐意接纳其他人的建议,整个设计和装修的过程中,她的亲友也时常参与其中。房子目前主要用于屋主个人居住,但是也需要考虑未来居住成员增加,以及亲友陪伴时所需要的空间规划。房屋的原始户型承重结构较多,好在户型比较方正,只需要进行简单的改动就能够满足业主的需求。我们主要对房间的布局情况进行了优化,增添了更多收纳的可能性和空间的趣味性。

▲原始户型图
屋主的需求:
1、希望入户厅和餐厅能够增大收纳空间,亲朋好友小聚时能够个岛台可以使用;
2、原始次卫生间私密性差,使用起来也不太方便,希望能够更好的私密性,做到干湿分离;
3、原始阳台稍大,希望能够合理分配空间,提高空间利用率。保留三个卧室和大一点的书房 ,因为工作的原因经常会在家里加班,所以希望有独立的书房。

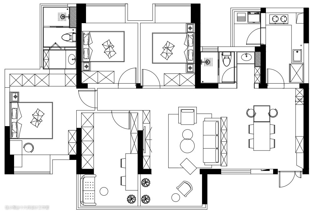
▲平面布局图
解决方案:
1、定制鞋柜、餐边柜、收纳柜为一体的储物空间,增设岛台来实现业主希望的西厨区域;
2、原始次卫的门对着客厅,开发商预留的马桶位置对着门,毫无私密性可言。将次卫门洞右移,改造成干湿分离的次卫。左边将淋浴区和马桶区分开,右边是次卫的洗漱区,同时提高了利用率;
3、原始阳台区域联通了客厅和书房,虽然大,但是利用率低。我们把阳台一分为二,分别给客厅做了延伸,给书房增加了空间。原本面积小的书房被扩大,不仅满足了工作区的需求,同时还可以放下沙发床,变成集休闲、休息和工作一体的功能区域。书房门向右移了40cm,留出门后的空间摆放成品书柜。右侧则利用墙体结构做了一个内嵌的大衣柜来增加储物空间。
# 餐厅

进门就是鞋柜和餐区,保留了原户型的通透感,定制的加入兼顾了鞋柜和餐边柜的功能。门口换鞋凳上方做了留白,可以增加挂钩放日常衣物和包袋。

餐边柜和鞋柜虽然有衔接,但是做了高低柜的组合设计,整体感强而且达到了分区效果。岛台作为西厨区以及餐桌的延伸,台面设计了20cm的延伸,这样平时可以作为吧台使用,舒适度也更好。

整体配色以杏仁黄为主,用黑色作为调剂,空间不会显得太过沉闷,简单搭配植物就能达到很好的视觉效果。
# 客厅

客餐区一体化,在硬装上不设限,整体更显开阔和通透,沙发的布置实现了软隔断,利用家具陈设对空间布局进行了优化。

客厅力求洁简,通过电视背景墙的设计来增添趣味性,张弛有度。

客厅采用了无主灯设计,在吊顶设计上做减法,弱化了造型对空间感受的影响,过道的石膏线造型虽然简单,但是增添了立体感和空间层次感。

电视墙做了格栅造型,线条明快简单,提升了层次感,同色系的搭配也与柜子的颜色进行了呼应。电视墙上方为投影幕布预留了暗槽,屋主有后续取消电视改换投影的想法。

客厅一隅。摇椅会给人一种天然的放松感,闲暇时候在这里感受时光也是不错的选择。
# 主卧

主卧室背景墙用了饱和度偏低的灰色和雾霾蓝做分色设计,简单但是具有视觉冲击力。

柜子和门都是定制的同色系,这样空间的整体性会更好。

利用飘窗定制了一个延伸的化妆台,抽屉用了反弹式的无拉手设计,同时兼具化妆台和床头柜的功能。
# 主卫

主卫内有一个转角窗户,采光很不错,设计上注入了黑色和金属的元素,整体风格得到了提升。
# 书房

阳台划分了一部分空间给书房,沙发可以作为休息或者和好友聊天的地方。“小细腿”的成品书桌,为多柜体的空间带来轻盈感。内嵌的定制柜子内部隔板都是可以活动的,业主能够根据自己的使用需求来调节内部结构。

书房一隅
# 次卧1

这个房间是作为儿童房预留,房间不大仅做定制衣柜,以后有需要再通过软装来改变。
# 次卧2

作为长辈房和客房备用。
# 厨房

厨房做了L型布局,尽可能多的增加了收纳空间,进门有外到内是洗-切-炒的使用动线规划,使用起来更加流畅。在采光一般的条件下,可以选择使用白色或浅色的橱柜,这样能让整个厨房看起来更明亮通透,视觉效果更佳。

厨房选择了集成灶,空出普通烟机的位置做了吊柜,功能性强也可以增加收纳。