装修找人报价,可以约几家公司同时来量房吗?
设计馆
2022-03-17
在逛网页的时候,发现这样一个有趣的问题——装修前能不能找三四家装修一起上门测量,对比之后再做最终选择?

其实,你这样的想法,已经有人做过比你更坑爹的事了——约了一屋子装修公司的人来量房,结果一屋子的设计师都端着手机在发朋友圈,感叹——简直是大型设计师海选现场!

▲某大型设计师海选现场。
作为消费者的角度,我挺能理解他这种迫切想要“货比三家”的想法,然而在装修报价这件事上,我是很不建议找好几个装修公司同时上门量房的操作的,因为这种行为容易被打,真的容易被打,不是开玩笑的!很多三流装修公司的从业人员,素质还真可能就脾气不太好。

至于被打的原因嘛,我给你科普一下!
1、为什么这样做容易被打?
①人多太挤,量不了房(浪费时间)
可能你会觉得你的时间很宝贵,就一次性约上好几家装修公司来量房;可是你想过没有——如果你的房子没有一千八百平米的话,这好几家装修公司,每家来2、3个人的话,90平的屋里一下子挤满十几二十个人,且不说量房,就是想要找个麻溜的站脚位置恐怕都是件困难的事了。一堆人挤进来,压根就量不了房,你这不是让人家白跑一趟吗?你说你是不是欠打?

▲量房要记录地面、墙面、梁柱、管道等结构的数据,要记录上百个数据,一般需要2个人同时配合作业1小时以上。
②小单人多,机会不大(浪费时间)
明面你都能找了一堆装修公司过来比价了,谁知道你背地里还会不会找几十家装修公司去比价呢?你又不是几千万或过亿的大项目,人家一看到你这般“汗颜无耻”的骚操作,估计只会顾着拍小视频感叹——“这业主真NB,约了一屋子的装修公司来报价!这是设计师海选现场吗?”,面对这样一个机会渺茫、利润微薄、竞争狗血的小单子,谁还有心思给你去量尺,甚至是后面的“免费设计”与报价呢?

▲这样的项目谁接?
做人别太自私,别光顾着你很忙,大家的时间都很宝贵好吧!
你约了一堆装修公司的人过来做无用功、浪费了人家的时间与油费(毕竟现在油费好贵啊~),你说遇到脾气差的是不是会打人啊?毕竟装修公司里的人可是鱼龙混杂,啥人都有啊!

▲因指出施工不规范,遭到私聊“问候”。
2、如何正确地装修比价?
①先多了解
不要轻易找装修公司报价,毕竟路边的装修游击队即便给你报价了,这种不知底细的施工队,再低的价格你也不敢要吧?在找对方报价之前,可以在网上、邻居、亲朋好友等渠道多打听一下这个装修公司是否靠谱,也可以看看他以往做过的项目,在了解过后觉得可以了,再让对方报价也不迟。

▲先仔细看,看着觉着可以再问对方报价。
②分开约
如果想要找多家装修公司做报价对比,要约对方来现场看看的话,也记得分开约,这样人家会觉得你有诚意,会更认真地给你做报价方案!如果你都约上好几家装修公司来现场“海选招标”,除非你是几千万的大项目,或者人家真是闲到没事干,但凡有点事做也不会搭理你。

▲你分开约,设计师来了好量房操作,双方也有机会聊聊,彼此做个简单的了解。
3、装修报价的准确性如何?
①报价纯靠猜
一般装修公司的免费报价,报价就是在你户型图的基础上做的,把家具堆到平面图上,然后就以这个“设计方案”来做报价了!这样草率的方案,在正规的室内设计方案里,连草案都算不上,在这样一个草案的基础上做的装修报价,准确性可想而知——纯属猜测,如果疏漏,纯属必然巧合!

▲只有一张平面图,装修报价全靠猜。
②报价越低越有戏
既然报价的基础仅仅是一份设计草案,所以报价不准确也是正常的,毕竟猜报价谁不会是吧?在这种情况下,一些没生意的装修公司,基本都会恶意地把报价做得极低去吸引客户付定金,因为报价越低才越有吸引力,然而这些低报价最终装修出来的实际造价基本都是翻倍的!

▲报价低→先付定金,剩下的后面满满加。
毕竟装修到一半的时候,装修公司问你一句——之前的报价不包括卫生间防水,要不要加钱做呢?所以就有了网上曝光的《报价8万,现在花20万了还没见底》之类的帖子。
4、如何避免被装修报价坑?
①不要贪图便宜
装修人工费、材料费都是固定的成本,如果普遍报价都是要20万,有一家给你报价才10万,如果你觉得这个10万报价很香就选了它,最终结果可能会令你失望,因为这种便宜的报价——一般都会有很深的套路,后面还有无数的坑等着你。当然,在报价差距不会太大的情况下,选择便宜点的无可厚非,但便宜到难以置信的时候就要警惕了!

②准备完整设计方案
在只有一张平面图的情况,报价就纯属靠猜、准确性很低,被坑在所难免,毕竟同样一个平面方案,里面内部的装修细节会有很大的差别!
- 同样一个平面方案,天花不做吊顶与做吊顶的造价是差很多的;
- 同样一个平面方案,开关插座数量多与少的造价是差很多的;
- 同样一个平面方案,墙面的装修可以用乳胶漆、瓷砖、大理石、木饰面、墙布等材料,不同材料的安装人工与材料费是差很多的;
- 同样一个平面方案,不同风格的装修造价也是差很多的......

▲平面摆设都一样,立面与天花造型、材质不同,造价截然不同。
因此想要对方报价准确,可以先找个专业的设计师做一套完整的设计方案,比如我做的设计方案里,一般会包括以下图纸:
>设计效果图

▲效果图可以看空间的设计风格。
>全屋施工图
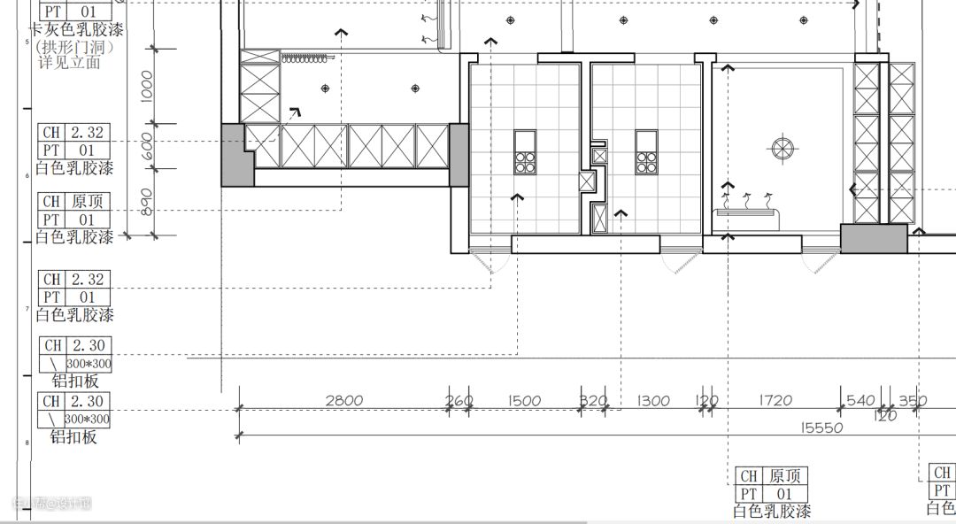
施工图保留拆墙砌墙图、地面铺贴图、天花吊顶图、水电图、每个空间的4个立面、细节施工大样等等,一般我的一套方案里的施工图会有40-60张;
▲这是我画的一套施工图。
施工图里会列举出全屋每个位置的施工材料;

▲施工图-标注出用什么材料、尺寸比例大小。
还会列举出一些特殊细节的大样与工艺参考;

▲施工图-特殊工艺大样参考。
>主材清单表
主材清单表会列举出每个空间里所用到的瓷砖、木地板、踢脚线、吊顶、石材、木材、乳胶漆等装修材料;
▲主材清单表。
有了如此详细的设计方案再去找人报价,对方看你准备如此充分(知道你是来真的),恐怕也不敢轻易糊弄,如此一来报价方案自然更加精准,你甚至可以要求对方签合同的时候注明“按该设计方案施工,最终造价不得超出合同金额的10%”类似的条款,然后把设计方案(效果图、施工图、主材清单等)作为附件加到合同去。
③找个懂行的人把关
拿到装修公司的报价后,里面密密麻麻的项目、金额与工艺说明,对于外行人来说恐怕也是难以看懂,最终也只能看个总价是否满意,如果里面有些遗漏或增项的话你也看不出来,这个时候就可以找一个稍微懂行的人来审核把关一下了,比如有朋友或亲戚做装修行业的,或者有请独立设计师做方案的,都可以找他们把关一下的。

▲我搭档给客户做报价审核。
对于多数人而言,装修是一辈子就一两次的人生大事,谨慎一点总不会错、想要做好一点也是必须的;但由于买完房后,钱包严重缺钱,想要省钱也无可厚非,但千万不要为了省钱而踩坑,导致自己要住一辈子的房子给糟蹋了!因此在装修报价阶段,一方面是不要轻易找人报价,了解过觉得靠谱再让人报价,免得被低价陷阱吸引;一方面是要做到精准报价,准备好详细设计方案,尽量避开增项漏项丰富的套路报价。