【设计师王驰】108㎡侘寂美学,一眼心动
居然乐屋
2022-03-29

/王驰·春荫园
本案设计师王驰是一位具有12年从业经验的室内设计师,设计师王驰擅长的风格较为多样,法式、现代、欧式古典、田园乡村等都是她擅长的,设计风格获得屋主们的一致好评。回归家的本真是设计师的目标,做有温度的设计,在精细化的设计中展现精细化设计动人的美。
本案设计风格 | 侘寂风
108㎡·侘寂美学

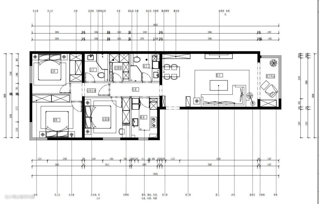
户型平面图

本案是一套有着三间卧室+一间客厅+一间餐厅+两间卫生间户型结构的家,整体色调较为柔和,彰显生活品质。设计以简洁舒适为主,能够让屋主在入住后,每每下班回到家都能处于放松的状态。
一起来看看设计师王驰针对客厅和餐厅做出的设计改造吧~




客厅主要以奶油色乳胶漆为主,搭配白色沙发,富有淡雅的韵味,尽显柔软之感,将极致淡雅的生活美学展现得淋漓尽致。
原木色的实木地板铺于地面,脚感舒适,保障了空间的自然感,同时多营造出了空间的轻快感。
为了让屋主的隐私更有保障,在客厅阳台处的小窗户选用了一道百叶帘,确保了家庭私密性,又可以作为一道装饰品展示使用,得当的软装设计为家增分不少!



就餐区选用的吊灯风格与客厅一致,打造了前后呼应的搭配效果,左侧是我们定制的一面收纳餐边柜。
这里足够容纳十人左右同时就餐,不论是亲朋上门还是在家聚餐,都能满足多种生活需求,给生活更多可能。
关于设计师

首席设计师·王驰
从业时间:12年
所获荣誉:
瑞丽家居家居作品优秀奖
中国建筑装饰协会高级室内建筑师
代表作品:
天资华府、莲馨嘉园、珠江帝景、颐园、居马连道中里、红居斜街、翠微北里、西提红山、建功北里、西豪逸景等