极简灯带+大面积黑色,打造利落敞亮的240㎡暗黑系空间~
上海东易日盛总部
2022-08-14
项目地址:光明云庐
案例面积:240㎡
案例风格:暗黑系
设计师:王梦娟
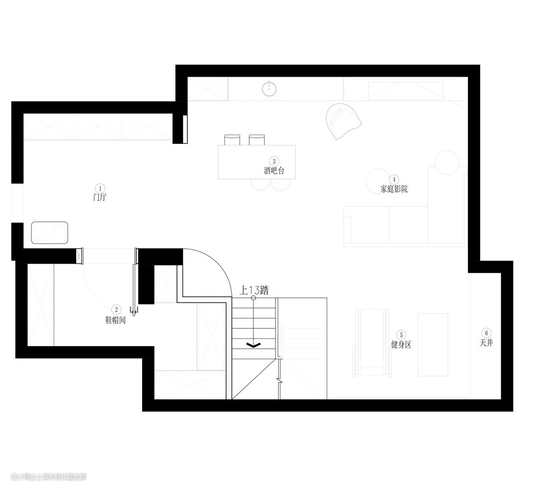
- 平面布局图

地下室主要做一家人的休闲区域使用,完美利用拐角空间,打造女主人专属的鞋帽间。门厅处侧墙也充分利用起来,增加整体橱柜,加强储物功能。酒吧台和家庭影院做开方式处理, 不管在哪个空间中都能够足够舒适自由。

二楼原本是三室的布局,其中一个次卧改造成书房和衣帽间,使用功能更加丰富。主卫空间也做了双洗手台的处理,完美提升空间利用率。阳台空间也充分利用起来,放置休闲椅和小茶几,打造业主专属的休闲之地。
- 吧台效果图

小吧台与餐桌相连,完美延展视觉空间感。利落的白色岩板桌面和极简造型的餐椅、吧椅,呈现一个简洁大方的视觉空间。吊灯选用了极简的几何造型,让空间更具美感。

- 客厅效果图

整体空间使用深灰色和黑色,通过大面积的冷色调呈现暗黑系的特色。沙发背景墙选用仿古岩板、黑色护墙板以及极简的线性灯带,打造现代感十足的空间。
- 地下室

地下室做了家庭影院,不规则造型的沙发,搭配极简的茶几,让业主一家随时可以在家中来一场荧幕盛宴。平面吊顶、内嵌式筒灯、简约配色,呈现舒适无压的空间。