四室一厅一厨2卫户型解析1
金螳螂家眉山店
2022-03-30
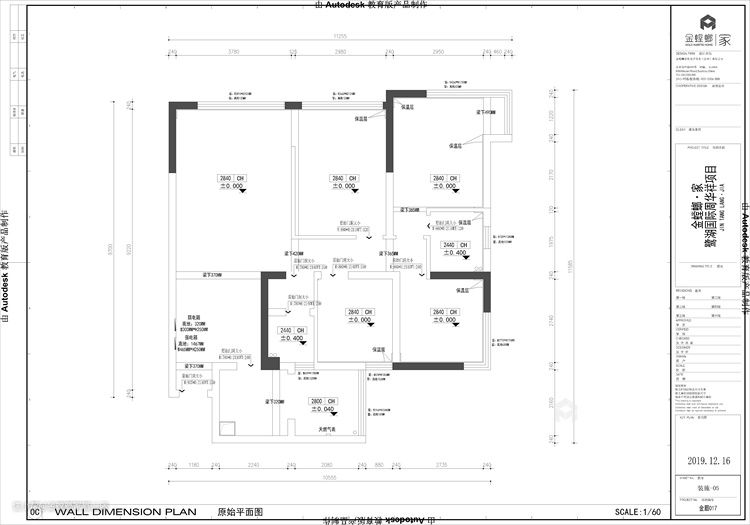
此房是一个套四平层,房屋采光较好,落地窗,客厅大阳台视野开阔。缺点:原始结构厨房较小,厨房门较小,冰箱位置摆放问题,主卧较紧凑,鞋柜摆放问题。

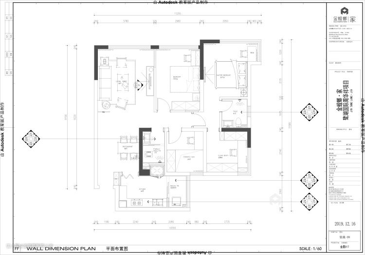
业主是年轻小两口,房屋的主要功能还一家人居住,经过沟通由于主卧较小,只保留3个房间,把其中一个房间作为衣帽架融入到主卧中,进门改造墙体留出鞋柜位置,厨房门加大做折叠门,将客厅大阳台隔断融入到儿童房里面,让儿童房的学习区域更舒适。

空间效果图

经过沟通确定房屋风格为轻奢风格,整体设计既有纵向的悠远,亦有横向的层次感。在材料的运用上,金属元素点缀,简单的线条勾勒、背景墙的光带引导,搭配一旁放置的艺术挂画,在素雅的空间内装点出情绪色彩,成就使用者在内部精神世界中得到追寻。

空间的选材来源于自然,在色彩上最大限度地保留原有材质的色彩与肌理,同时在铺陈上采用形制简约的家具,宛如设计师笔下的主人,在追求品质生活时更能理性面对,不盲目,不空虚,彰显的是恰到好处的精致。

设计以澄净清雅的大理石、极具简练线条感的定制家具,不同温度却品质承袭的灰色背景与软饰,结合光影意境做到明暗有度,生动而自然,使得静逸安适与现代简约艺术在空间中相交织,拉近空间与生活的距离