140㎡侘寂风,阳台变身小型茶室
长沙东易日盛装饰总部
2022-04-07
侘寂风

项目地址:山水国际
项目户型:平层
项目面积:140㎡
项目风格:侘寂风
设计师:龙乾
——
“ 客厅 ”

客厅墙面运用大块面的转折设计,让墙体视觉拉宽,会客厅的吊顶和门厅的吊顶形成呼应,让整个客厅和门厅部分界限不分明,具有空间增大的感觉。整体采用简约的艺术涂料进行装饰,特色画作的装饰,点缀了墙面单调的空间。

竹编质沙发配上浅色系柔软的沙发靠垫,简约又大气,自然纯朴。设计了金属质感的装饰灯,增添空间的现代质感。客厅阳台设计了一个小型茶桌,复古自然的石底木桌,自然气息十足。阳台两端设计隐藏式柜子,增加整体收纳功能。
“ 餐厅 ”

餐厅和厨房形成一体化设计,两个空间具有联动性,西餐或者中餐都信手拈来,最主要的是增大了空间,也让做菜就餐成为一种生活乐趣。七人座木质桌椅,做旧的设计,让这个小空间更显复古质感。
细心的在餐厅墙面设计了多功能餐边柜,上下收纳柜,可以满足日常生活需求,中间掏空的设计,可以摆放喜欢的装饰物和绿植。
“ 主卧 ”


天花板线条走向流畅,内设隐形线灯,配合筒灯,房间整体光源更加柔和有氛围感。
床头设计了一个木制收纳柜,收纳柜台面用陶瓷花瓶进行装饰,配合复古落地灯的设计,空间更显温馨舒适。
卧室飘窗一端设计了开放式收纳柜,可以摆放上自己喜欢的书籍。平时可以坐在飘窗上看看书,放松一下大脑。小型化妆桌的设计,满足女业数日常的生活需求。
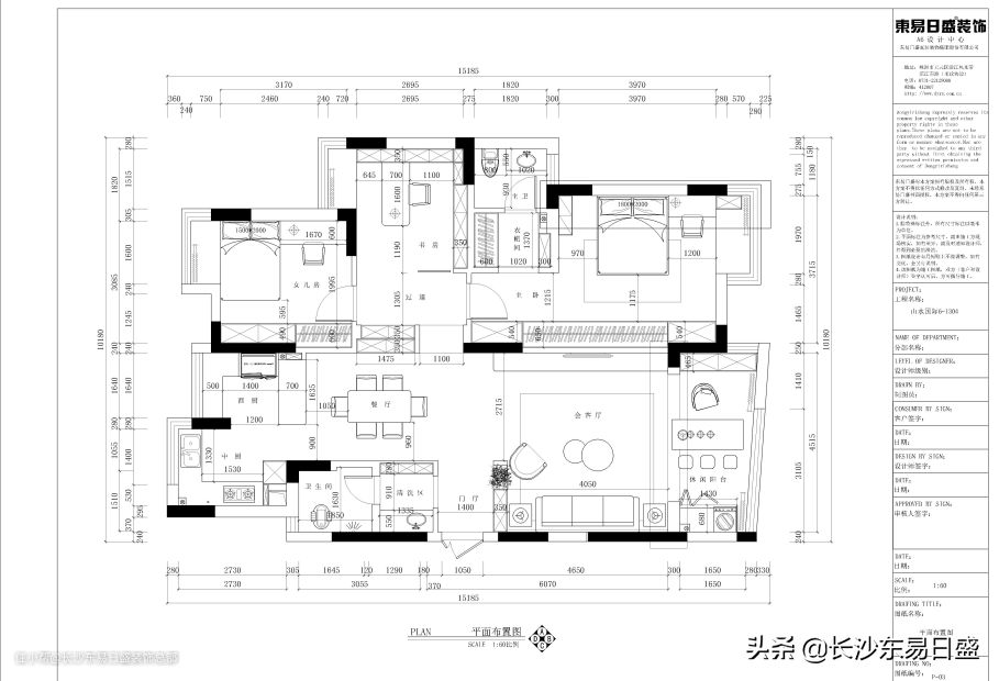
本案平面图:


本案设计师

设计师:龙乾
擅长风格:欧式古典、新中式、新古典、美式乡村
擅长户型:跃层、普通住宅、二居室、三居室
荣获奖项:
CIID中国建筑学会室内设计分会专业会员
国际室内设计师联盟会员
中国室内建筑师