120平现代北欧极简风格,温暖又舒适
本象设计
2022-04-05
温暖舒适的极简生活主义—福源公馆

设计风格:现代北欧极简风格
设计总监:陈尚峰
项目地址:青岛市福源公馆
客户诉求
本案业主是对近中年夫妻事业有成,是一套为了孩子上学改善型住房,男业主是做金融的比较忙常在外边,女业主是做贸易的性格比较浪漫,家中有一个十四岁的女孩正在上中学;比较喜欢北欧风格,朴质实用浅显清朗,希望能在工作之外的时间能置身繁华隐于浮翠怡然自得。
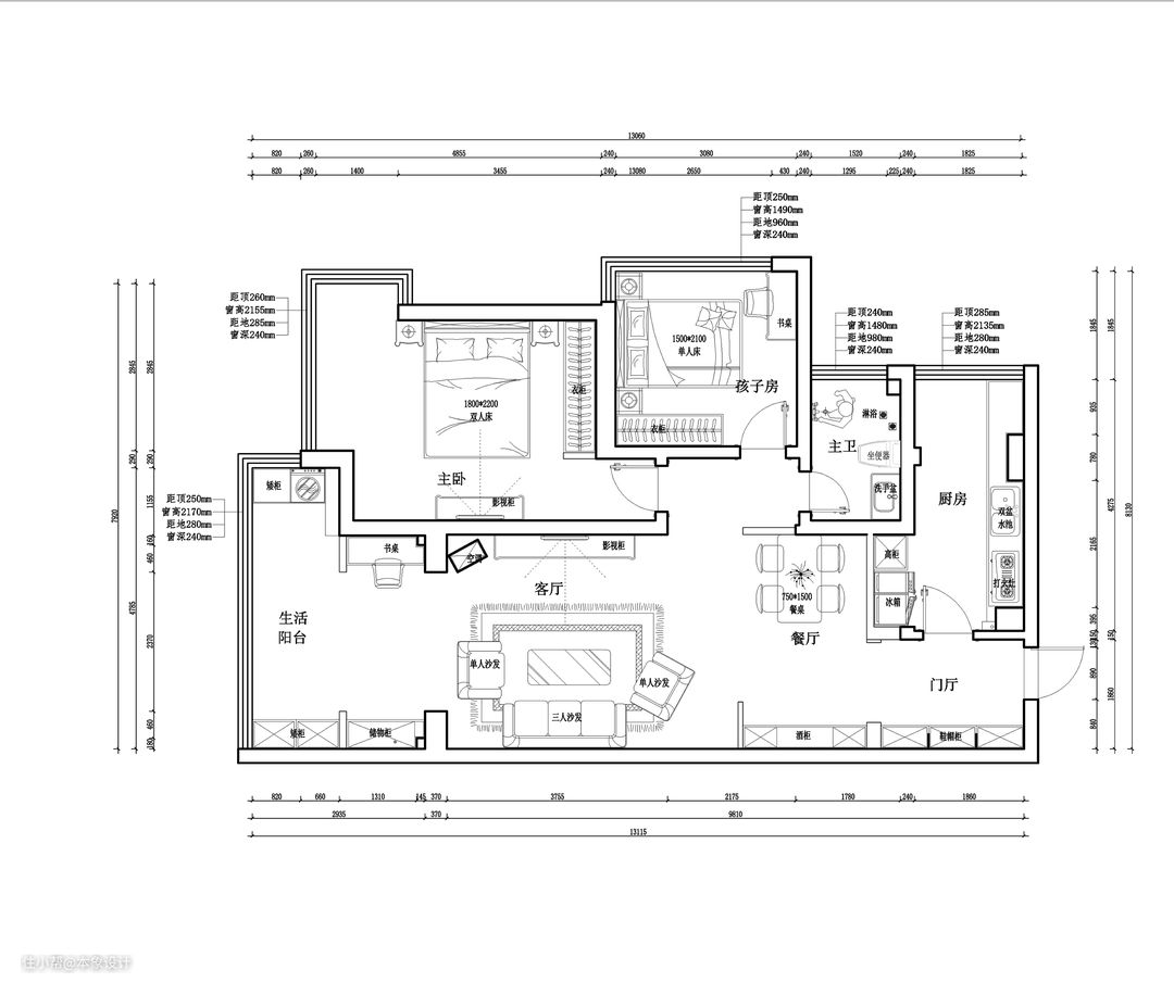
户型分析
原始结构图

这是一套套二户型二手房改造项目,建筑面积120平
- 本户型的缺点是阳台空间超大,功能上缺点是没有独立的学习空间;
- 餐厅空间和厨房门比较冲突,厨房空间偏小对于放置冰箱空间太小,使用极不合理;
- 卫生间偏小洗衣机放不进去;
- 打开入户门一眼望到底,缺少玄关门厅的隔离在客厅中使人没有安全感。
本案主要是从这几点来合理的进行户型改造,从而打造成一个舒适温暖轻松实用性与美观性兼顾的家。
改造后户型图

效果图展示
客厅

客餐厅以暖色墙面为主要背景基调,灰色布艺沙发呼应,原木实木电视柜与茶几同材质,与原木色地板一致。

粉色挂画、小花瓶与单人沙发和抱枕作为点缀,淡淡的慵懒的也很莫兰迪!饱和度低的基底,绿色的植物,像春风柔柔的拂过,又像冬日的暖阳洒下。
门厅

玄关中间厨房玻璃门是为了增加门厅的光线,另一部分墙面则用木饰面拼接,点缀纽扣挂饰,方便进门随手挂起来包包等物品。
鞋柜底部镂空15公分,装有灯带,可以方便换鞋,也可以放置扫地机器人的充电;中部镂空部位可以放置小物件。
玄关天花的灯具是感应的内嵌式筒灯,可以声控和红外控制,这样晚上回来打开门便会亮起来,是不是满满的仪式感呢!
餐厅

餐厅的墙面颜色基调与客厅颜色基调统一起来,并且挂画都客厅一个系列,这样都起到相互呼应的作用;
酒柜采用浅原木色与白色亚光烤漆结合,酒柜分为储物柜与展示酒柜部分。储物部分分成小件储物抽屉;杂物储物主要是放在柜门内不外漏;还有一部分是作为工具储物或者大件灵活储物,整块柜门。
卧室

主卧床头并没有复杂的背景墙造型,而是通过浅粉色乳胶漆来作为整个床头背景。

没做吊顶只是采用了叠级式挂镜线边顶,具有美观装饰性的同时,也不会降低整个空间的层高。
灰色窗帘和现代北欧装饰画做点缀,显示出一种简约的浪漫气息。
定制家具

现代北欧清新气息的浅木色和白色撞色搭配结构,家具使用原木色搭配灰色布艺及粉色家具,木纹呈现细腻又具有自然肌理。
强大得储物空间,顶天立地的整体定制,实现了储物收纳的功能性,也贴合了客户要求整体的设计氛围。