75㎡现代轻奢,让质感充盈着整个空间!
哈尔滨大树装饰公司
2022-04-12
▍案例说明
【楼盘名称】:爱达晶品
【面积户型】:75㎡
【所在区域】:南岗区
【房屋格局】:2室1卫
【装修风格】:现代轻奢风格
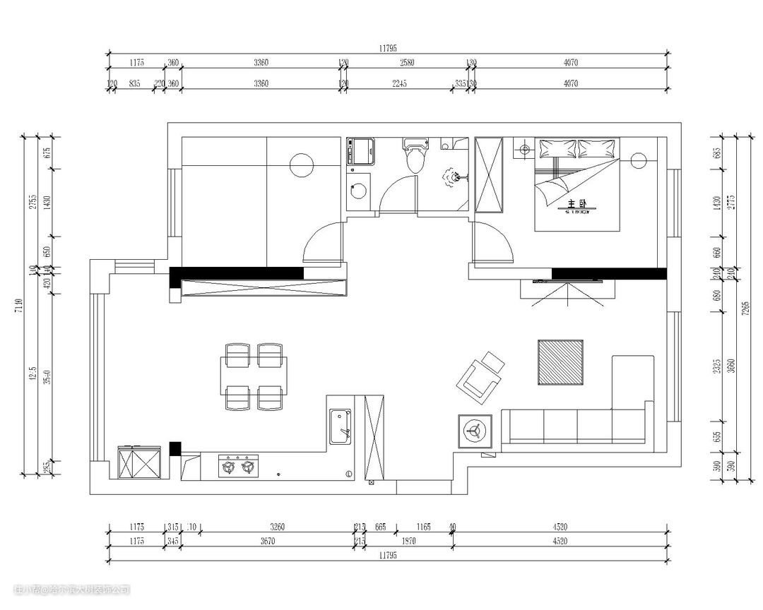
▍户型图

▍效果图
▼ |客厅-Living Room |



▼ | 餐厅-Dining Room |


▼ | 厨房-Kitchen |

▼ | 卧室-Bed Room |


▼ | 卫生间-Washroom |

哈尔滨大树装饰公司
2022-04-12
▍案例说明
【楼盘名称】:爱达晶品
【面积户型】:75㎡
【所在区域】:南岗区
【房屋格局】:2室1卫
【装修风格】:现代轻奢风格
▍户型图

▍效果图
▼ |客厅-Living Room |



▼ | 餐厅-Dining Room |


▼ | 厨房-Kitchen |

▼ | 卧室-Bed Room |


▼ | 卫生间-Washroom |
