看了这套135㎡顶复,才明白经典大气的新中式,是不挑面积的
合肥飞墨设计师
2022-04-12
说到中式风很多人都绝对是别墅和大平层的专属,100多平想装中式风,想都不敢想,但【滨河壹号】这套135㎡的新中式就就证明了值得尝试,中小户型装新中式一样能美到骨子里。

当然了,风格并不是这套房子的重点,户型拆改才是关键,全家一共住三代人,买顶层房带一层阁楼,全家人只住一楼,二楼用来办公娱乐,以及一个20㎡储物室,能隔热又能扩大空间,夏天人人嫌弃的阁楼还是大有用处的!

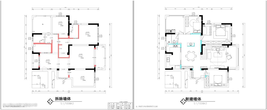
一楼户型前后对比↓

空间拆改展示图↓

原本入户空间够用但并不算宽敞,设计师将左侧墙壁往里移动,借用老人房的空间来扩大玄关,一个明亮宽敞且实用的玄关真的能成为一套房子的加分项。

改造前的客厅

改造前的阳台平时还行,一到下雨天就成了“水池”,天天日晒雨淋的,肯定要封起来的。

客厅效果图
①电视背景墙选择欧松板打底,铺设大理石,电视挂墙上,大理石上的水墨纹理加上绿植点缀,真的会有种空间古典的韵味。
②沙发背景墙选择木饰面,中间嵌入灯带,好看又有高级感。中间铺地毯,摆放茶几,沙发围合摆放,规整的设计倒也不呆板。
③毛坯房自带的钢架楼梯换成现浇,踏步铺设大理石,安装玻璃护栏,通透又安全。

客厅硬装图↓

餐厅效果图
①拆掉多余隔断,扩大餐厅空间,圆形餐桌可以容纳多人一起用餐,动线流畅,有种大气之感。
②侧边墙壁定制储物柜,半封闭式半玻璃酒柜,安装灯带后很有高级感,好看不落灰,否则天天后悔。
③餐桌侧边新建墙体做隔断,背面壁挂洗漱盆,不光饭前洗手方便,早上洗漱上厕所也不用排队。
④墙上设计圆形壁龛作为端景,跟餐桌相呼应拥有独特美感。

主卧效果图
①背景墙同样用欧松板打底,铺设墙咔,底部拼接木格栅,水墨花纹能让有种古色古香的悠远之美。
③浴室挪到主卧里,砌地台藏灯带,中间设计储物架做隔断,一边是床一边是浴缸,冬天晚上睡前泡个澡,一天的疲累都没了。

背景墙硬装图↓

儿童房效果图
①墙壁和家具都以粉色为主,很有少女心。
②高低床设计节省空间,侧边设计书桌,对面墙壁嵌入个2米长的大衣柜。

二楼是个斜顶阁楼,一来空间不好利用,二来没设计好,夏天就会变成大蒸炉,又闷又热,全家没人愿意待。
所以设计师做好防水隔热之后,将阁楼改成储物室、娱乐室、书房和临时客房,使用频率虽不高但增加了大量的储物空间以及功能区,夏天还能为一楼生活区隔热,一举两得啊!

这套房子半包花费大概18万,如果你家房子不大,想要选择新中式风格的话,切忌过多的元素堆砌,像这家一样适当点缀会更有诗情画意的美感!