【安德利花园】140㎡黑白灰现代简约风完工实景记录
烟台华杰东方装饰
2022-04-14
项目地址/安德利花园
Project address |An de li huayuan
建筑户型/平层
Project address | Leveling
施工面积/140平方米
Construction area | 140㎡
设计风格/现代简约风格
Design style |Modern simplicity
设计公司/华杰东方
Design company | Huajie Oriental
全案设计/邵群
Whole case design |Shao qun
说在前面
房主是时尚的一家三口,喜欢适合年轻人的黑白灰简约风格,男女主人性格爽朗干脆,钟爱干净简单的生活方式,不是往大房子堆积奢侈的精致感,而空间中秩序建立和生活的限度对于成长中的孩子也尤为重要。结构的洁净是空间质地,色彩上黑白灰的调性也促成空间利落的气质,在喧嚣中,设计师为他们布置出简明、洁净、有序的吉宅。

▲原始结构图。
本案户型面积140㎡,南北通透,户型相对方正,功能区域分配明确。
需要处理的地方:
1、入户鞋帽柜需要规划,以方便日常进出
2、140㎡大三居,厨房却由小厨房和储物间并排组成,空间狭小。
3、长厅形式空间未免浪费
4、房子墙面多角,如何处理到每个空间都方正。

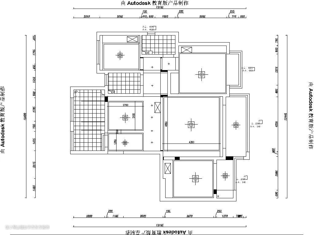
▲平面布置图


▲平面设计方案中,针对现有问题做了如下调整:
1、客餐厨通厅,在入户门左手边利用梁的位置做了鞋帽柜,方便日常进出的物品摆放及换鞋帽。
2、砸掉厨房与储物间的隔墙,将厨房做了大的延伸,包含原厨房及储物间。
3、餐厅处规划储物柜,将空间的利用率拉高,根据柜体厚度提前建墙做好空间划分。
4、南次卧原门的位置做了适当的偏移,因为电视墙的原因,做了隐形门,从视觉上延伸了电视墙尺度,移动的墙面正好和未来的衣柜柜体尺寸相当,视觉上更方正,避免了进门碰角的情况。
5、在原过道处也规划了收纳柜,一是增加了储物,二是提高了过道空间的利用率避免浪费,三是通过柜体的尺度延伸,与客餐厅间特意规划的门套衔接到一起,既解决了过道的利用又避免了门套出现的突兀(客餐厅之间加套是为了消除原建筑墙面多角的问题,通过不同材质及造型化解了冲)
6、所有的方案细节都是在力求空间利用的基础上,将每一个独立空间都方正处理,使用起来更舒适,视觉上也更美好

▲顶面布置图。吊顶的分布一目了然
完工实景
Live photos
| 客厅 |
Living room

▲客厅电视墙原始结构


▲客厅电视墙完工。背景墙简约的造型及对仗的工整,在视觉上就能够表达出真挚而诚实的舒适感。家具、软装、材料都回应着黑白灰的初衷,一切来的干脆,空间规划简洁有力。



▲在白色基调中客厅功能于视线中敞开,四米有余的大落地窗,格外适宜承载综合的客厅功能。面积足够,通透明亮,这些组合起来的每一点都显得尤为重要。


▲客厅的陈设遵循着减法原则,3+1组合的简洁款沙发,茶几、主灯、挂画无一不强调着简约的直线优雅。纯色系墙面带来了视觉上的宁静感。




▲超大的阳台是本案的亮点之一。灰色系的地砖造就的空间格外安定,阳台墙面延续客厅墙面色彩,阳台灯的选择让空间显得更加明亮,无论晴雨,都有好的体验。这里是绿植的归宿是绿色的海洋。
| 餐厅 |
restaurant

▲餐厅毛坯状态


▲餐厅完工。户型无玄关,考虑到入住舒适性,并未刻意增加玄关设计,入户即为餐厅,宽厅的缘故,入户也极为顺畅。餐厅家具及柜体的选择上也呼应客厅主题陈设。黄色的餐椅与深色系的搭配,赋予了餐厅更多种可能。

▲客厅视角餐厅



▲客厅视角餐厅完工。餐厅是日常家庭生活中主要活动区的一部分,与客厅共享开阔地带,为家中团聚、日常餐食架构起非常重要的位置,将人与人,空间与空间的关系以更放松、和睦的方式连结起来。


▲现代时钟在现代生活中更多时候承担的是装饰作用,时间的表达也可以很优雅。
| 厨房 |
kitchen

厨房毛坯

▲厨房完工。原有结构厨房较小,后将储物间并入厨房。改造后与厅同宽的厨房空间最大限度的引入北面光线,视觉和使用上也达到最佳。

▲原储物间

▲并入厨房的储物间部分成为了整体厨房的很重要很出彩的一部分。
| 卧室 |
bedroom

▲通往主卧及书房的走廊。走廊空间富裕,以储物柜的形式做了更合理的尺寸预留,通过柜体的规划将原本为化解梁和墙角的门套也串联了起来。空间得到了最大限度利用,户型也从视觉和使用上更舒适合理。

▲主卧原始状态





▲主卧完工。主卧作为静区,配备独立的卫生间。对于功能的输出可以恰如其分的融入生活里,无敌飘窗可以满足女主人的一切小情趣,侧面衣柜及床尾整面衣柜可以容纳春秋冬夏。靠窗边小巧的化妆区精致也优雅。

▲舒适且独立的儿童房。儿童房选择了延续本案主色调,少了可爱,但是多了宁静与自我。
本案设计师
Designer of this case
邵群

华杰东方设计师
毕业于烟台大学,
室内装饰行业从业17年以上,专属全案设计
理念 | Idea
设计以人为本,达到人与人的和谐,设计就是对生活的一种领悟。
案例 | Case
金地浅山艺境、安德利花园、滨湖万丽、雪玉凯瑞苑、融创迩海、龙海家园、百年万悦府、山之韵、华润中心、杏林苑、金象泰吉祥家园、东山名郡、万光中华城、万象城等。