【信鸿铜雀台】380㎡别墅信鸿铜雀台户型解析方案
东莞东易日盛
2022-04-14
户型解析资料
1、小区名称: 信鸿铜雀台别墅
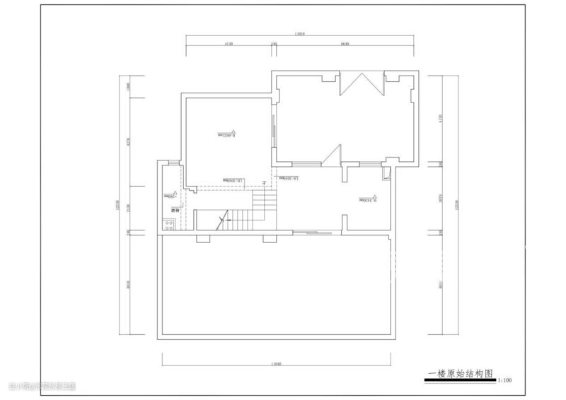
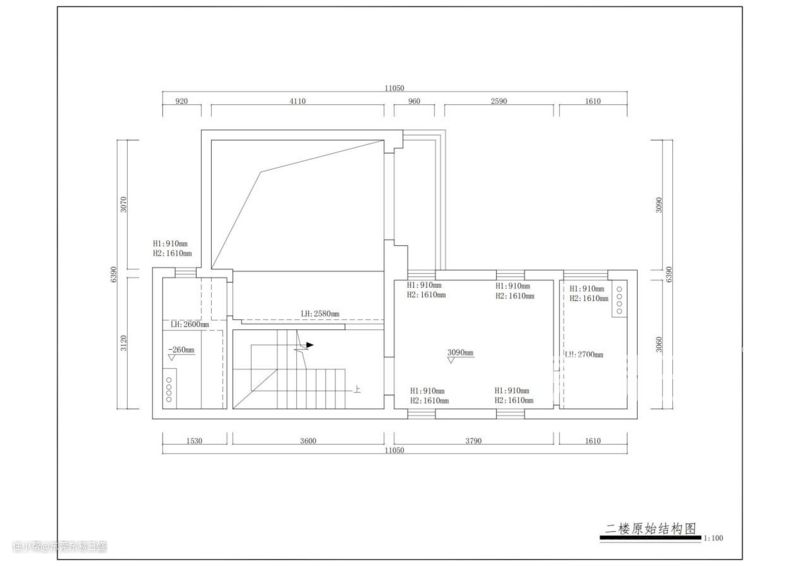
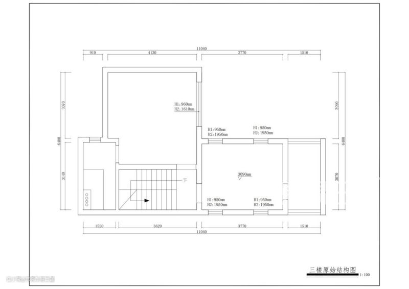
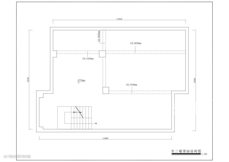
2、房子面积: 380平方
3、所属楼盘: 麻涌----碧桂园
4、所属户型: 别墅
5、风格: 新中式风格
6、案例说明
新中式装修提倡自然简洁和理性的规则,比例均匀、形式新颖,内部结构严密紧凑、空间穿插有序、围护体各界面要素的虚实构成非常的明显,另外通过虚实互换的空间形象,取得局部与整个空间的和谐。强调空间的完整性和高贵、典雅感。
新中式别墅布置的主要功能进行设计,根据我们中国人的习性,一般应具备一定的商务功能(会客、休闲)。在别墅的平面布局上,要有完整、大气,赋有贵族气质的体现,杜绝华而不实的装修,体现真正的”高品质建筑“和“高品位生活“。
庭院设计和室内装修可按家庭成员的爱好、兴趣等设定,做好是有一个主题的体现,这样采用更有逻辑性。
新中式别墅整体形式设计体现出了一种庄重、典雅、尊贵,完成古典和现代的交融,现代都市和中国宫廷的联系,建筑和环境的自然融合。
处处见景、处处是景,注重生活品质和细节,在装饰设计中所采用的任何一个小件(线条、图案等)都要求清晰明确,毫不含糊,做到”细节重于上帝“的设计原则。
新中式别墅设计因为文化内涵的不同,有具体的设计依据和设计要求,对空间处理讲究的整体和灵活性,风格的”纯粹“性、典型的地域性和深刻文化内涵。
按照中国人的习性,新中式别墅的装修一般应具备一定的会客功能。不仅如此,在布局上还要讲究大气、完整。在装修上要做到既富有贵族气质,又能体现低调。





8、户型的优点分析:
1)户型朝东南,客厅面阳自然通风。
2)卧室比较实用性空间。
3)
9、户型的缺点分析:
1)客厅空间比较小
2)地下室采光不是很好
3)厨房空间面积太






10、户型改造的建议:
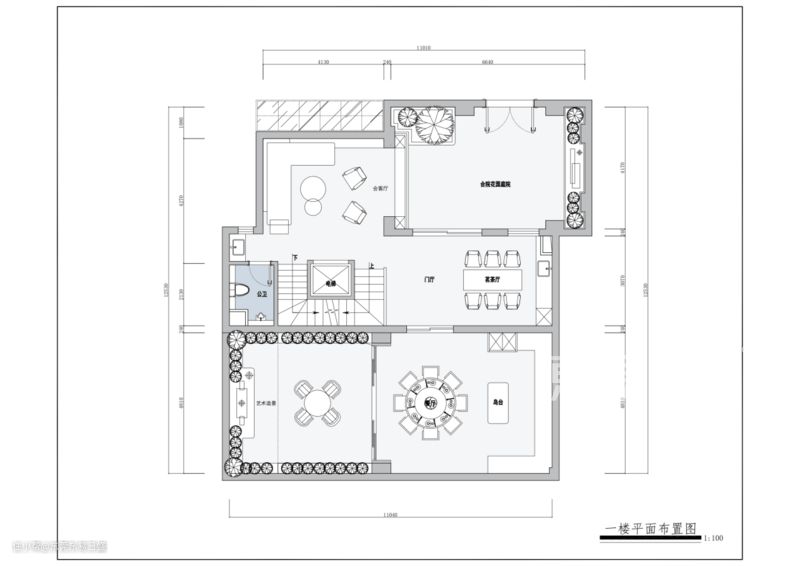
1)设计空间调整把原有的厨房餐厅改为茶厅,利用一楼后花园一半空间改造完厨房及餐厅功能增强了我们房子的品质。
11、四张效果图以上:

1)餐厅空间的布置的古色古香,极具中式特征的新中式吊灯,对应着暖色的木质餐椅,让整个空间呈现出古朴的特性,极其舒适。简约的木质餐桌上摆放着中式餐具和陶制花瓶,将中式传统的经典元素融入到了现代生活之中,在沉稳中又颇具温馨感。

、
2)餐厅与茶室之间也以竖向木格栅将空间分割,两个空间互不干扰,又有着光影效果,在丰富了空间层次感的同时,又完美地体现了中式风格独有的韵味。

3)简约线条的装饰给人带来硬朗之感。整个空间以新中式吊灯和简约稳重的茶几为轴线,保持了一种对称的美感:两张浅灰色现代布艺沙发、墙面圆形装饰画、沙发边几和台灯,都在这个空间中共存,碰撞出新中式的风采,也让整个空间呈现出一种宁静素雅的氛围。

4)主卧室延续了客厅的风格,以对称式布局,沿用了简洁硬朗的直线条,看起来颇为稳重,内敛。床头背景墙以木条装饰造型,墙面层次更加丰富。古朴木床搭配素雅的床品,让居者感到放松与惬意,营造出居室温暖的格调,也仿佛在低声诉说着古老的故事。