摩登法式设计,现代与传统的大胆融合
一度经纬空间设计
2022-04-18

摩登是一种创造,一种对新生活的美好创造
空间形成
一半是现代高级
一半是复古摩登

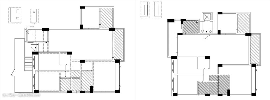
△一层与二层原始结构图

△一层平面方案图

本案业主夫妻俩均属90后,向往现代法式。设计师对于本案在不破坏传统元素的情况下更多融合现代元素,大空间的留白却不失高雅整洁,加入复古的家居和少许的金属元素,形成现代摩登的居家氛围。
「 Living Room 一层客厅 」

由于原始的一层光线偏暗,客厅中大面积的留白,摒弃传统的法式繁复和甜腻的色泽,利用淡雅的空间色调提亮空间,搭配复古摩登的陈设软装和大理石元素,在多元形态的碰撞下打造出一个法式现代主义的空间格调。

墨绿色的沙发古典又轻巧,搭配焦糖色抱枕和大理石茶几,立马复古氛围十足。


壁炉上的花纹设计与跳跃的火焰共同点亮了沉寂的空间,灵动而鲜活。


墙面的线条设计使空间更加开阔,细腻的肌理使材质也凸显高级。金属质感的灯具、边框与现代感的大理石壁炉结合,加入暗门的形式,空间在和谐统一的基础上更具有视觉层次感,也增添了些许生机与华丽。
「 Restaurant 一层餐厅 」

餐厅沿用了客厅的材质,组成了一个更加宽敞的空间。独特的雕花造型、浅色的线条和纹理性的大理石材质,局部白色的方块玻璃砖点缀其间,使得方正的岛台与空间和谐统一,让主人用餐时感受到高级的体验感。

餐椅则采用复古的丝绒坐垫与金属线条,在华丽的灯饰映衬下,凸显出整体空间非一般的奢华与亮丽,皮质柔软,坐在这张椅子上就餐,想必心情都会变得更加愉悦。
「Video Room 一层影音室 」

影音室与外面的空间则是截然不同的两个色调,深色与浅色系在空间内形成强烈的对比。天花运用了发射性的LED灯,后现代元素的沙发搭配,当投影布在大面积的灰色的墙体上往下沉,沉浸式影院油然而生。


由于业主喜欢喝酒,在影音室内设置了酒柜、钢琴,吧台与壁炉的结合。想象一下,居住者在此环境下品酒,在熊熊的火光中,浪漫又有情调,和家人朋友一起享受美好而悠闲的时光。

「 Stairway 楼梯」

楼梯采用弧型的楼梯设计,与整体统一的大理石材质,暗槽式的灯光营造出一种悬浮感与奢华。

「 Master Bedroom 二楼主卧」

设计师采用深色调的大理石与浅色墙面形成强烈的反差,用绿色作为点缀,别致的软装陈设与床品,绽放出居室古典的浪漫。

和爱的人在如此柔软温馨的卧室中进入梦乡是多么幸福的事情啊。

卧室里设有办公书桌和书架柜,便于办公学习,将卧室多功能化。


为女主人设置了漂亮雅致的梳妆台和圆形镜,每日在此描绘精致妆容。

衣帽间与外部区域采用的是两种颜色,衣帽间采用浅灰色调分割主卧跟衣帽间的空间区域,设计师利用平开门的设计,让居住者有种步入式的仪式感,收纳空间充足,可以满足主人衣物摆放的需求。
「 Secondary Bedroom 次卧」

墙板之间的线条后嵌入线性灯来增强空间层次感,墙面白色与绿色的拼接让空间增添了鲜明感与活力,现代感的床品在整体氛围中有种扑面而来的别样韵味。


次卧有一扇大大的窗户,每天可以肆意享受阳光的照拂,观赏窗外的风景。
「 Children's Room 儿童房」

儿童房与其他空间的设计色调亦然不同,以天空蓝的色调,建造一种轻松可爱的玩耍休憩区域。衣柜弧形的镂空造型与蓝白的色彩在灯光中烘托出温馨又舒适感觉。

墙面浮挂白色云朵,可爱灵动。

角落里堆放着大白玩偶和飞机玩具,可爱又有趣,为孩子打造专属的小小游乐园。