580㎡现代中式,雅致的茶室,蓝色椅子给人清新的感受
华浔品味装饰集团
2022-04-23
本期我们来看一套私人会所设计方案,业主是一位企业家,因为工作需要在市中心购买了这套江景房并决定将这套房子改造成私人会所,用来接待生意上的朋友和重要的客人。
作为一个高端的接待空间,业主希望能将新房设计得更加奢华以彰显业主不俗的经济实力。同时业主还希望在新房的装修中加入传统中式元素,让房屋内的文化底蕴更深厚,这样才能更好地契合客人们的品味。
基本信息
项目地址:江西南昌
面积:580㎡
风格:现代中式
主要材料:天然大理石、原木护墙板、哑光不锈钢、艺术漆
相比于家庭空间,私人会所需要承担更多娱乐、休闲任务,个性化的东西更多,因此在开始设计方案前,设计师详细咨询了业主的设计要求,并将这些要求整理如下:
- 以后客人们会在这里聚餐,根据需求业主要求至少设计一大一小两个餐厅。
- 业主本人爱好书法,也有很多书法界的朋友经常来找业主切磋交流,因此业主要求在房屋中要专门设计一间书法室供自己使用。
- 需要设置茶室、棋牌室、休息区等空间供客人娱乐、休息、会谈。
- 要在这里设计两个办公室,其中一间作为业主的总裁办公室,另一间供在会所中工作的办公人员使用。
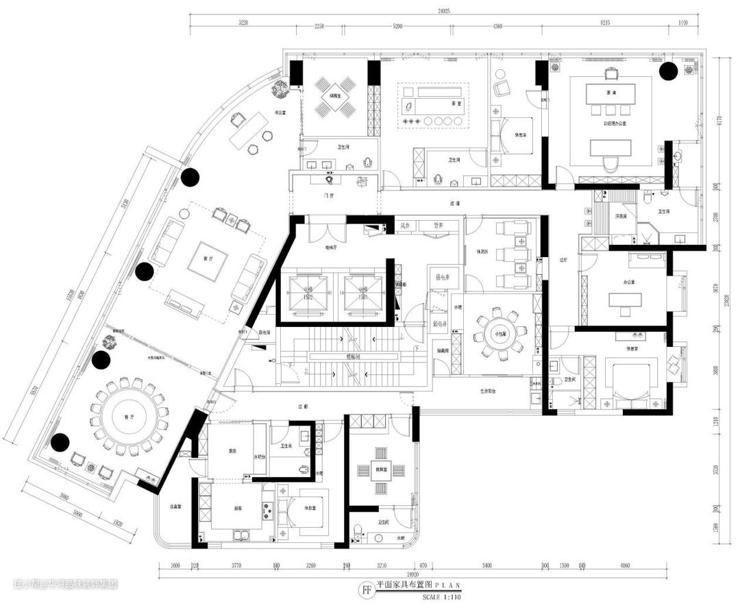
01平面布置图
设计师带着业主的具体装修要求对新房进行了实地测量,并在随后做出了如下的平面设计方案:

- 左侧倾斜走向的空间距离江景最近,将客厅、大餐厅和书法室设置在这里。
- 书法室右侧设置棋牌室,棋牌室右侧设置茶室,两个区域均设置独立卫生间供客人使用。
- 电梯厅右侧设置休息区和小包间供业主宴请少量客人时使用。
- 会所右侧设为办公区,其中右上角房间设为业主的总裁办公室。
- 厨房设置在大餐厅的右侧,两者仅隔着一道门,这样以来出餐更快更方便。
02玄关

玄关中间的石材花纹对称,组成山峰造型,显得奢华且稳重。在门厅中使用了大量的棕色实木护墙板,这一传统装饰中常用的色调让玄关空间拥有了中式古典庄重感。
03客厅

客厅选用新中式家具,这套家具虽然继承了传统家具的部分造型和样式,但是在制作材料上选用了现代的织物和填充物,既有文化底蕴,也有较高的舒适度。
客厅右侧巨大的窗户让客厅获得了宽阔的视野,从这里可以直接看到不远处的江景,这更加显示出会所的高端大气。
04餐厅

餐厅餐桌上用透明材质制作了群山造型,并且这组造型和吊顶中间灵动精致的吊灯相呼应,给人唯美的视觉感受。
餐厅和客厅之间使用屏风进行分隔,在隔绝空间的同时,屏风不会向墙体一样遮挡住光线,这样能让餐厅显得更宽阔,更明亮。
05书法室

书法室背后是圆弧状的曲线玻璃,相比于中规中矩的直线,这种曲线更能显得空间轻松灵动,非常符合书法的气质。
书法室的书案造型类似于传统书案,让这里拥有了更强烈的传统文化韵味。
06过道

过道使用白色墙壁和红棕色木线条进行搭配,在简洁中勾勒出沉稳的空间感受。
在过道的墙壁上悬挂了富有中式韵味的大幅画作,在美化空间的同时也为过道注入了深厚的中式文化底蕴。
07总裁办公室

总裁办公室中不仅设置了办公桌、书架等设施,还在靠近窗户的位置设置了茶室,让业主和来访的生意伙伴能够在轻松的环境氛围中边喝茶边谈生意。
08茶室

茶室宽大的茶桌上不仅摆放了喝茶的用具,还贴心地设计了一个微缩的山林景致,让客人在品茶的同时感受到更多的趣味。
茶室中选用了靠背为青色的椅子,这些青色和背景墙中的山景遥相呼应,仿佛是从画面中洒落出来的一般,能给人轻松、祥和的感受。
09小包厢

小包间面积小于餐厅,但空间环境更温馨,私密性也更好,更适合几个老朋友在一起聊天聚餐。
10休息室

休息室无论是地板还是护墙板都是用了暖色的实木材质,营造了奢华且温馨的休息空间。
床头背景墙上绘制了龙舟、古建筑等画面,为休息室增添了中式文化气息。
11休息室卫生间

休息室的卫生间中不仅有洗手池、马桶、浴室等常规设施,在最里面还设置了桑拿房,能为来到这里的客人获得更舒适的享受。
新中式风格融合了大量的传统文化,因此这种风格装修出来的空间文化底蕴十足,随着传统文化的复兴,这些年来越来越多的高端场所开始使用这种风格进行装修,也都获得了很好的装饰效果,打造出了既精致奢华又充满文化底蕴的空间环境。